Thiết kế biệt thự 2 tầng hiện đại - Chủ đầu tư: Anh Độ, Hà Nội
1. Phối cảnh 3D mặt tiền
Chủ đầu tư: Anh Độ
- Địa điểm xây dựng: Hà Nội
- Công năng sử dụng:
+ Tầng 1: Phòng khách và thờ + Phòng ăn + Bếp + WC
+ Tầng 2: Phòng SHC + 1 Phòng ngủ master + 2 Phòng ngủ + WC

Ngoại thất căn biệt thự phố 2 tầng gây ấn tượng trong lòng chủ đầu tư bởi cách tổ chức hình khối, các mảng trang trí lớn, thiết kế mạch lạc tạo nên một diện mạo lôi cuốn ngay từ cái nhìn đầu tiên. Với lối kiến trúc hiện đại sử dụng hệ mái bằng , ban công các tầng đua rộng kết hợp với khối giật trên tầng tạo nên một sân chơi vô cùng lý tưởng.
Với thiết kế 2 tầng nên căn biệt thự có thể tận dụng tốt ánh sáng tự nhiên và tầm nhìn thoáng đãng. Từ trên cao, tầm nhìn sẽ được mở rộng giúp cho gia chủ có được cảm giác thoải mái và dễ chịu. Đặc biệt nếu nhà được xây dựng ở vị trí đẹp thì tầm nhìn là yếu tố góp phần tạo nên không gian sống trọn vẹn.

2. Công năng sử dụng
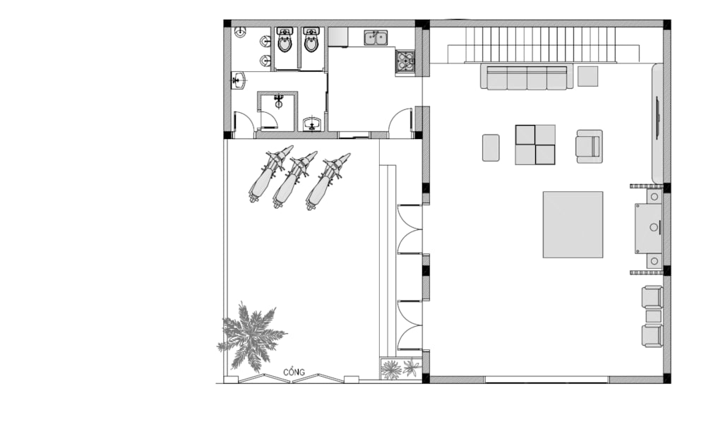
2.1. Tầng 1
Phòng khách và thờ + Phòng ăn + Bếp + WC
.png?104)
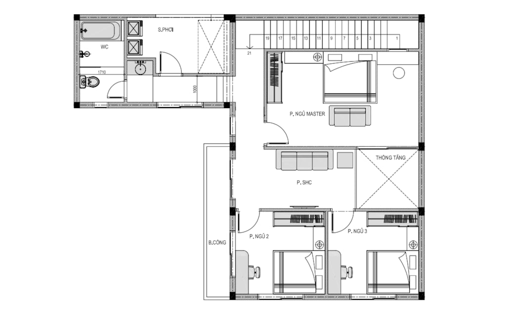
2.2. Tầng 2
Phòng SHC + 1 Phòng ngủ master + 2 Phòng ngủ + WC
.png?291)
3. Hình ảnh thi công thực tế
.png?812)
.png?551)
.png?270)
.png?709)
.png?176)
