Mẫu thiết kế nhà phố 2 tầng - Anh Hùng Sóc Sơn, Hà Nội
Khi lên ý tưởng thiết kế, anh Hùng có mong muốn một căn nhà hiện đại, có nét độc đáo và ban công tầng 2 để anh chị có thể trông cây xanh.
Dưới đây là bản thiết kế nhà anh Hùng được kiến trúc sư Việt Home lên ý tưởng và thiết kế.
1. Phối cảnh mặt tiền
Biệt phố của anh Hùng là sự kết hợp khéo léo giữa các khối hình vững chắc. Thiết kế độc đáo mang lại cho người nhìn từ phía ngoài nhà như 3 tầng, nhưng thực chất nhà của anh là 2 tầng.
Toàn bộ cửa nhà được sử dụng là cửa kính, giúp ngôi nhà đón sáng tự nhiên tối đa.

Diện tích đất khá rộng nên anh Hùng đã quyết định xây bếp ở ngoài nhà để tạo không gian thoáng cho phòng khách và tránh mùi khi nấu ăn.

2. Bố trí công năng
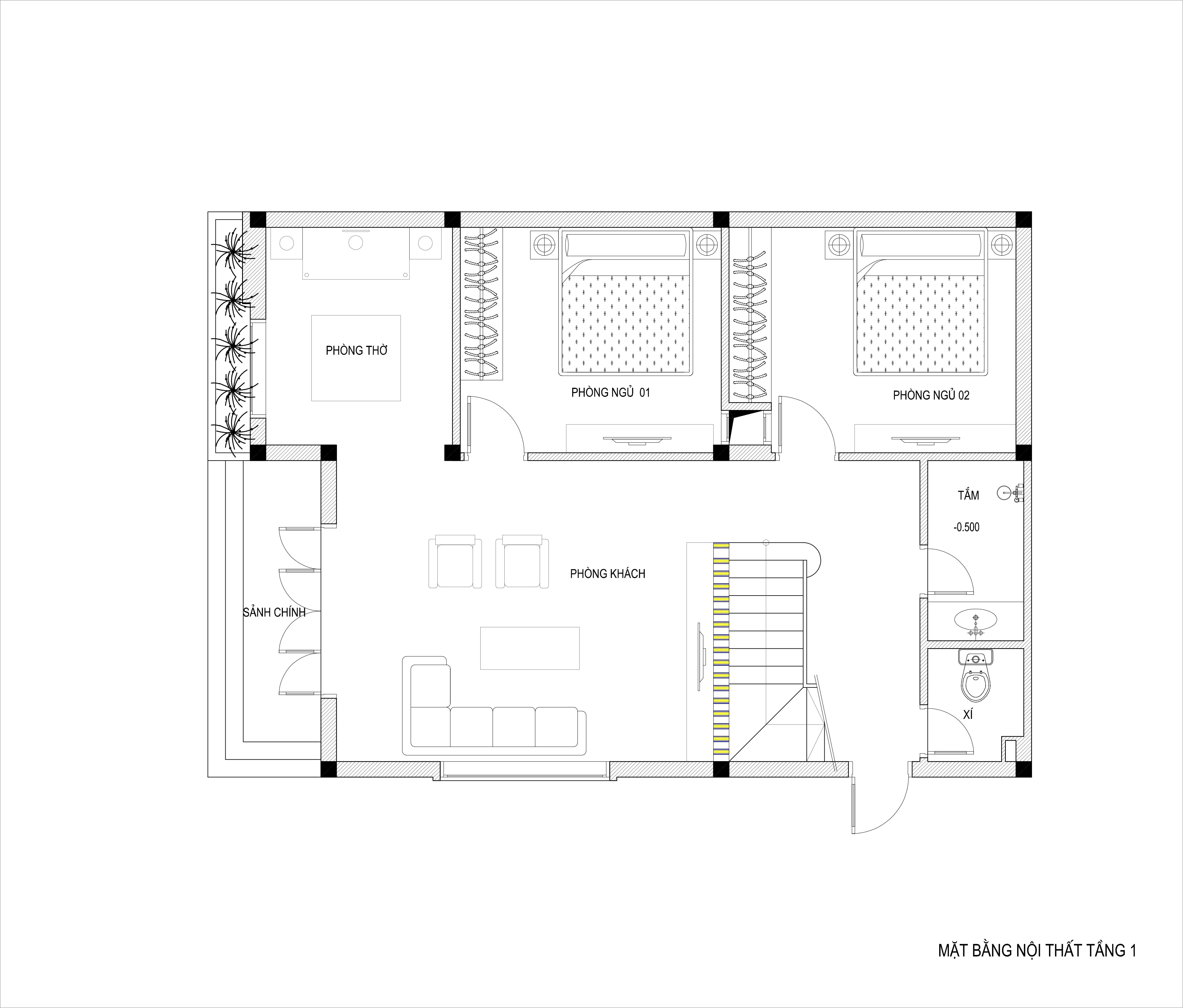
2.1. Sơ đồ công năng tầng 1
Phòng khách + Phòng thờ + 2 Phòng ngủ + 1 WC

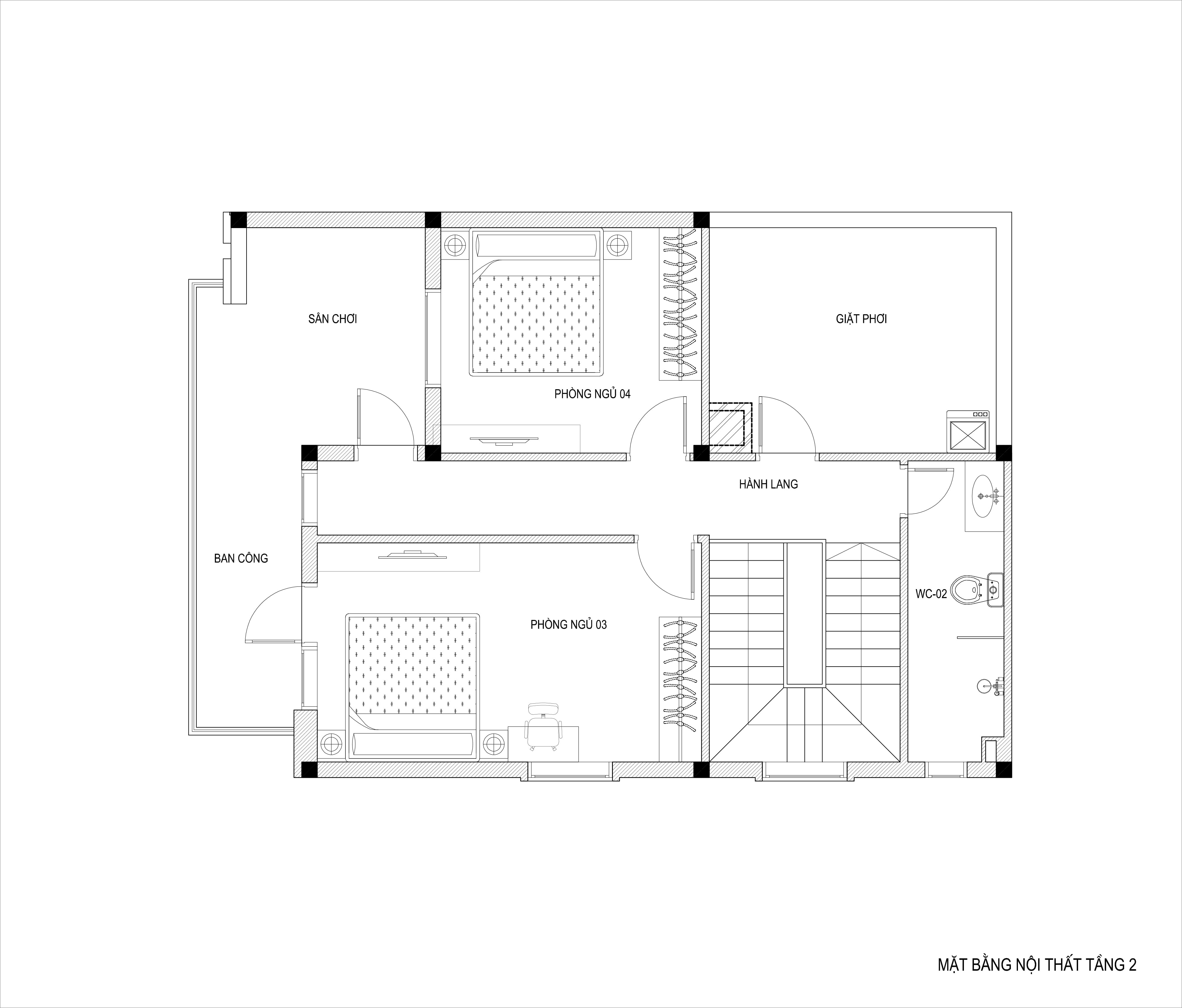
2.2. Sơ đồ bố trí công năng tầng 2
2 Phòng ngủ + Sân chơi + Sân phơi + Ban công + 1 WC

Thiết kế bản vẽ ngôi nhà là bước vô cùng quan trọng để bạn lên ý tưởng và hình dung ngôi nhà của mình 1 cách chính xác, phù hợp nhất. Liên hệ ngay để được kiến trúc sư Việt Home tư vấn mẫu nhà, bố trí công năng sử dụng và phong thủy phù hợp nhất.
