Ngắm nhìn mẫu nhà 2 tầng mái Nhật tinh tế và sang trọng - Chủ đầu tư: Anh Thiết, Quốc Oai
Ngôi nhà 2 tầng mái Nhật của anh Thiết ở Hà Nội nổi bật với thiết kế hiện đại và sang trọng. Mái Nhật tinh tế kết hợp hài hòa với kiến trúc tổng thể, tạo nên một không gian sống thanh thoát và đẳng cấp. Mặt tiền của ngôi nhà được trang trí với các chi tiết tinh xảo, làm nổi bật vẻ đẹp nổi bật trong từng đường nét. Nội thất bên trong được bố trí thông minh, tối ưu hóa sự tiện nghi và thoải mái cho gia đình. Cùng Việt Home ngắm nhìn phối cảnh 3D và khám phá công năng ngôi nhà nhé!
1. Phối cảnh 3D mặt tiền
Chủ đầu tư: Anh Thiết
- Địa điểm xây dựng: Hà Nội
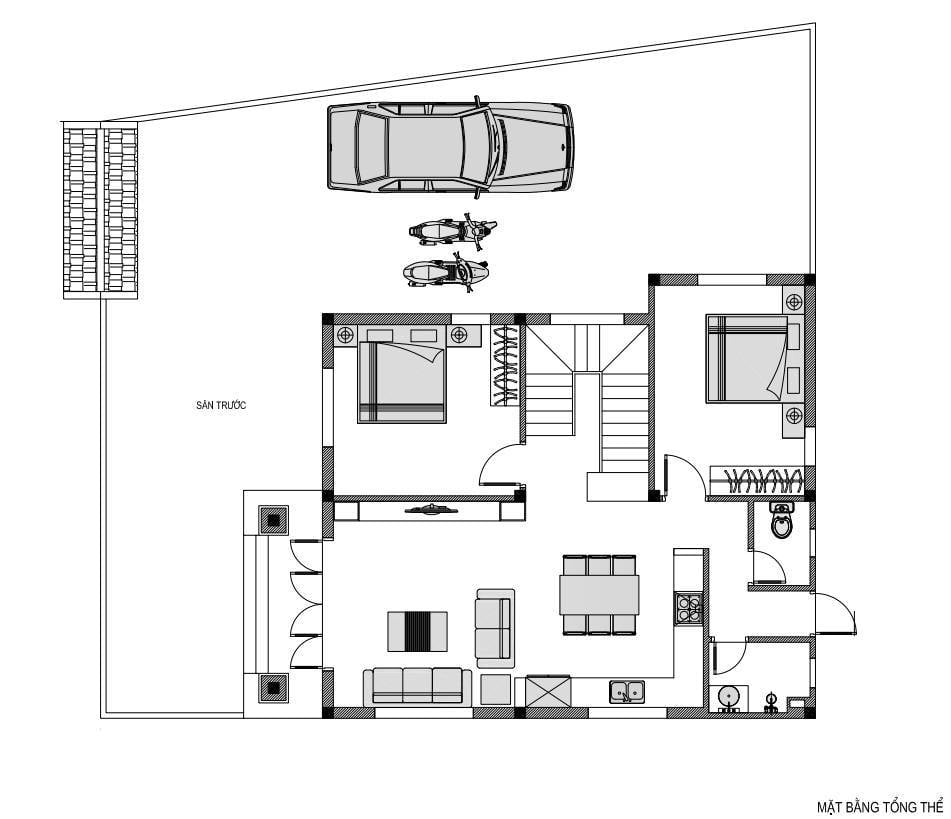
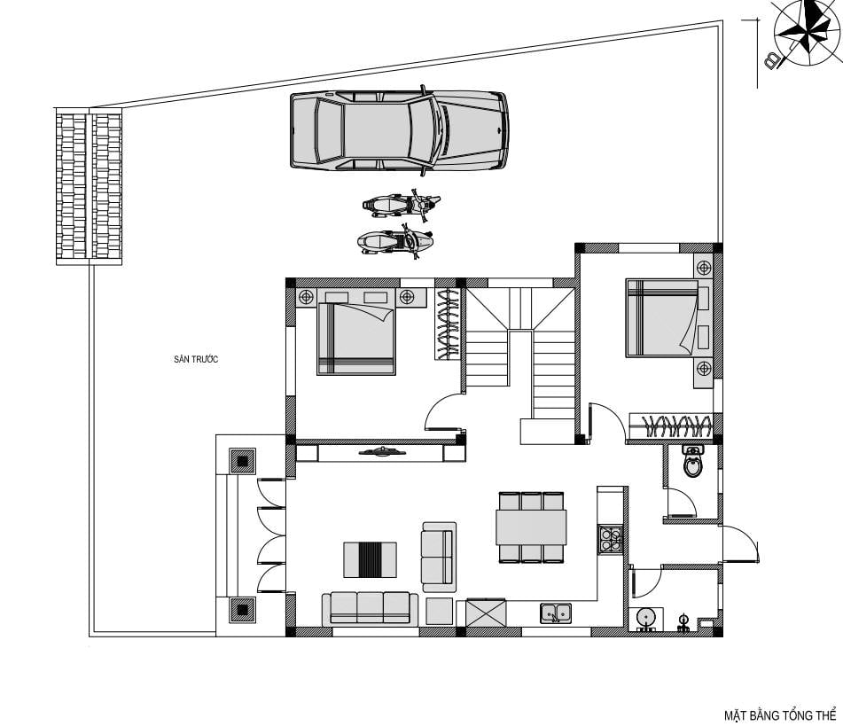
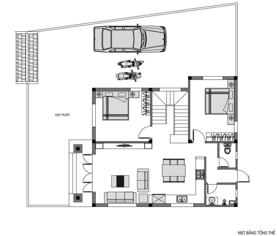
- Kích thước: 8,2m x 14,5m .
- Công năng sử dụng:
+ Tầng 1: Phòng khách + Bếp ăn + 2 Phòng ngủ + WC
+ Tầng 2 : Phòng thờ + 3 Phòng ngủ + WC

Bản vẽ nhà 2 tầng mái Nhật 5 phòng ngủ của gia đình anh Thiết có kiến trúc thiết kế hiện đại trẻ trung và khỏe khoắn. Với thiết kế hệ thống 2 cột trụ ở sảnh vuông vắn, tạo bề thế cho công trình.
Ngoại thất của ngôi nhà nổi bật với màu trắng kết hợp cùng xanh dương ở các diện tường, vị trí phân tầng và giáp mái giúp tăng nét đẹp của ngôi nhà có kiến trúc thiết kế hiện đại, thanh lịch. Những họa tiết trang trí đều sử dụng vật liệu bền đẹp, giá cả phù hợp như: cửa khung nhôm kính ở hệ thống cửa sổ và cửa tầng 2,… tạo điểm nhấn thu hút sự chú ý vào phần ngoại thất của ngôi nhà.

Cửa chính của ngôi nhà 2 tầng mái Nhật sử dụng chất liệu gỗ cao cấp màu sắc nâu đẹp mắt, sang trọng. Hệ thống cửa sổ lớn làm từ chất liệu kính cường lực trong suốt không chỉ giúp tận dụng tối đa ánh sáng tự nhiên mà còn mở ra tầm nhìn rộng lớn, kết nối không gian bên trong với khu vườn xanh mát bên ngoài.
Điểm nhấn đặc biệt của ngôi nhà chính là các đường nét trang trí nhẹ nhàng trên các cột trụ và đường kẻ chỉ tường. Không quá cầu kỳ nhưng đủ để tạo nên nét duyên dáng, tôn lên vẻ đẹp tinh tế của mẫu nhà đẹp. Cách sử dụng đá tự nhiên ốp tường ở phần chân nhà vừa tạo sự bền vững vừa thêm phần ấm cúng và gần gũi.

Mẫu biệt thự 2 tầng hiện đại nổi bật với ban công rộng rãi và thoáng mát, mang đến không gian lý tưởng để các thành viên trong gia đình thư giãn vào mỗi buổi sáng và tối. Đây là nơi hoàn hảo để hít thở không khí trong lành, tập thể dục nhẹ nhàng, và tận hưởng khoảnh khắc yên bình. Ban công không chỉ tạo điểm nhấn thẩm mỹ mà còn là giải pháp tuyệt vời cho việc thông gió, giúp không khí bên trong ngôi nhà luôn mát mẻ và trong lành.
2. Công năng sử dụng
2.1 Mặt bằng tổng thể
.jpg?22)

2.2 Tầng 1
2.3 Tầng 2
.jpg?645)
Đừng bỏ lỡ cơ hội sở hữu không gian sống lý tưởng - liên hệ ngay với Việt Home để biến ý tưởng thiết kế biệt thự 2 tầng của bạn thành hiện thực và tận hưởng sự sang trọng, tiện nghi đích thực.
