Đẳng cấp mẫu nhà 2 tầng mái Nhật quốc dân đẹp hiện đại - Chủ đầu tư: Anh Tưởng - Thanh Hóa
Ngôi nhà là tổ ấm dành cho mỗi gia đình, chính vì vậy, ai trong chúng ta cũng mong muốn có một không gian sống hoàn hảo và theo đúng ý thích của mình. Nhà mái Nhật 2 tầng tân cổ điển của nhà anh Tưởng tại Thanh Hóa mà Việt Home giới thiệu dưới đây sẽ là sự lựa chọn hoàn hảo cho một không gian sống thẩm mỹ, trang nhã và tiện nghi.
Các bác hãy cùng Việt Home ngắm nhìn ngôi nhà nhé!
1. Phối cảnh 3D mặt tiền
Chủ đầu tư: Anh Tưởng
Địa điểm xây dựng: Thanh Hóa
Kích Thước: 8.2x10.2m
Công năng sử dụng:
+ Tầng 1: Phòng Khách + 2 Phòng Ngủ.
+ Tầng 2: Phòng Thờ + 2 Phòng Ngủ + WC + Sân Phơi

Tone màu trắng được sử dụng xuyên suốt toàn bộ ngôi nhà. Phần mái Nhật màu xanh dương được thiết kế với độ dốc vừa phải, mở rộng về các phía, khiến tổng thể căn nhà trở nên thanh thoát, nhẹ nhàng hơn.
Thiết kế ban công vuông vức để tạo nên sự hiện đại, khỏe khoắn và tinh tế hơn mà vẫn đảm bảo sự sang trọng. Lan can sắt mỹ thuật đen điểm xuyến bằng những họa tiết vàng đồng làm cho các ban công thêm phần cầu kỳ. Cùng với thiết kế ngoại thất chỉn chu, tỉ mỉ trên mọi đường nét là điều gây dấu ấn mạnh mẽ cho các chủ đầu tư. Đây sẽ là lựa chọn được ưu tiên hàng đầu dành cho những ai yêu thích cuộc sống bình dị ở thôn quê.

Hệ thống cửa chính với khung gỗ tự nhiên cao cấp và chắc chắn. Hệ thống cửa sổ làm bằng khung nhôm xingfa và kính cường lực được thiết kế xung quanh nhà, giúp không gian thêm phần hiện đại, thoáng đẹp.
Hoa văn, chạm trổ hay chạm khắc trên tường, bề mặt của các ngôi nhà là một nét độc đáo của kiến trúc tân cổ điển. Sự mềm mại, tinh xảo của hoa văn thường mang vẻ đẹp cổ điển, lãng mạn đồng thời thể hiện sự tinh tế, sáng tạo của các kiến trúc sư. Ngoài ra, sân vườn với cây cối xanh tươi sẽ tạo không gian ấm cúng, gần gũi. Hệ thống đèn được thiết kế phù hợp với phong cách tân cổ điển, đồng thời tôn lên vẻ đẹp của kiến trúc.

2. Công năng sử dụng
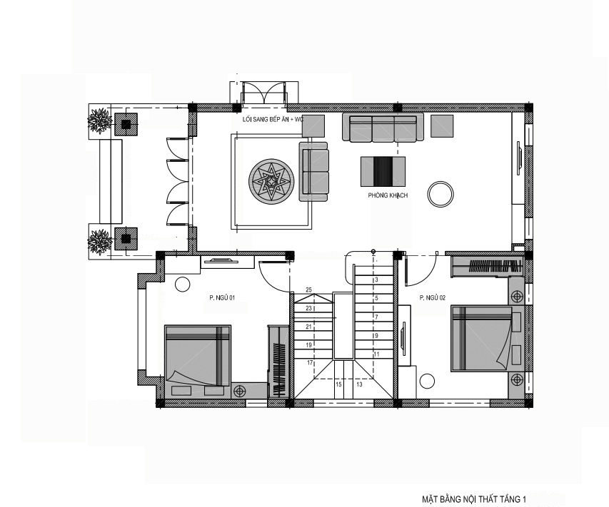
2.1. Tầng 1
Tầng 1: Phòng Khách + 2 Phòng Ngủ.

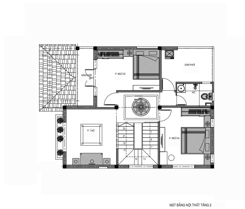
2.2. Tầng 2
Tầng 2: Phòng Thờ + 2 Phòng Ngủ + WC + Sân Phơi

Nếu các bác thích mẫu nhà 2 tầng mái Nhật với 4 phòng ngủ như bên em vừa giới thiệu thì hãy nhắn tin hoặc gọi điện thoại trực tiếp cho Việt Home để được tư vấn nhé!
