Chiêm ngưỡng mẫu biệt thự phố 3 tầng hiện đại của chủ đầu tư anh Đoan tại Quốc Oai, Hà Nội
1. Phối cảnh 3D mặt tiền
Chủ đầu tư: Anh Đoan
- Địa điểm xây dựng: Hà Nội
- Công năng sử dụng:
+ Tầng 1: Phòng khách + Phòng bếp + 1 Phòng ngủ + WC
+ Tầng 2: 3 Phòng ngủ + WC
+ Tầng 3: Phòng thờ + 1 Phòng ngủ + Sân phơi

Mẫu biệt thự được xây dựng tại Quốc Oai mang vẻ đẹp đầy lôi cuốn, hấp dẫn với kiến trúc hiện đại, trẻ trung, sang trọng, được thiết kế với những đường nét hoa văn đơn giản không cầu kỳ, phức tạp, rườm rà, nổi bật với nhiều tiểu cảnh được bố trí hợp lý mang lại không gian xanh và lý tưởng để thư giãn. Chiêm ngưỡng ngay kiến trúc biệt thự hiện đại quy mô 3 tầng của gia đình anh Đoan để cảm nhận nét đẹp tinh tế, được các KTS lựa chọn kỹ càng các nguyên vật liệu thi công cao cấp, có độ bền cao cùng thời gian. Ở mặt tiền ngôi biệt thự được thiết kế vô cùng tỉ mỉ, hút mắt, chắc chắn bất kì ai ghé ngang qua đây sẽ đều bị “đánh gục” bởi nét thanh lịch hiếm có này. Mặt tiền của mẫu biệt thự hiện đại 3 tầng mái thái sử dụng gạch ốp cao cấp màu gỗ kết hợp với màu sơn trắng sáng giúp không gian mặt tiền như được mở rộng ra, sáng bừng cả một khu phố sầm uất, tấp nập tại Quốc Oai, Hà Nội mà gia chủ sinh sống.

Với kiến trúc 3 tầng kiểu hiện đại, biệt thự đẹp này có thiết kế nhẹ nhàng, kiến trúc cân xứng và chắc chắn. Về mặt thẩm mỹ được đánh giá cao, các vật liệu sử dụng là cao cấp như đá ốp tường, sử dụng loại cửa chống ồn và chống nhiệt, ngôi nhà có nhiều mặt thoáng, cửa chính và cửa sổ được mở hợp lý và đúng hướng đón gió và ánh sáng. Thiết kế nhà thông minh, các góc cạnh thừa được bố trí các cây xanh giúp cho ngôi nhà có sự tươi mới đầy sức sống.
Những mảng kính lớn chia ô theo tỷ lệ, vách khung nhôm cao cấp, tạo thành những ô kính cửa kính, nhằm mở rộng tối đa tầm nhìn giữa các không gian, tăng sự kết nối giữa không gian bên trong với không gian bên ngoài, không gian sống trở nên mở và thoáng hơn. Các thiết kế lan can ban công cũng là vách kính cường lực trong suốt và chắc chắn, chịu được sức gió và va đập.
2. Công năng sử dụng
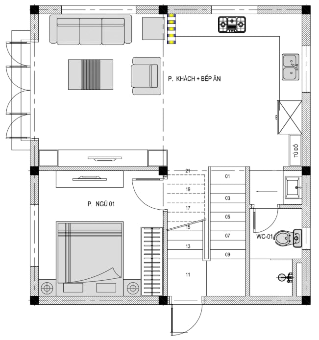
2.1. Tầng 1
+ Tầng 1: Phòng khách + Phòng bếp + 1 Phòng ngủ + WC
.png?668)
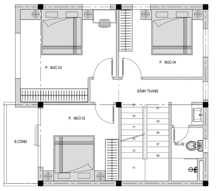
2.2. Tầng 2
+ Tầng 2: 3 Phòng ngủ + WC
.png?572)
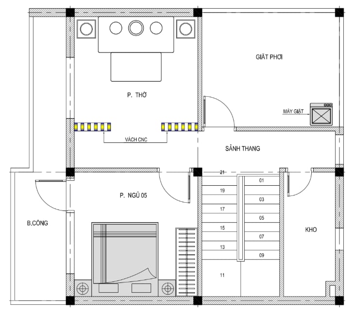
2.3. Tầng 3
+ Tầng 3: Phòng thờ + 1 Phòng ngủ + Sân phơi
.png?498)
