Xuýt xoa trước mẫu thiết kế nhà phố đẹp lạ và tinh tế của anh Cường - Thái Nguyên
Với gia chủ sở hữu lô đất mặt tiền nhỏ thì nhà phố chính là giải pháp thiết kế phù hợp nhất. Tuy nhiên, họ thường gặp rắc rối bởi làm nhà phố cao tầng thường không gian sẽ bí. Trong bài viết hôm nay, Việt Home sẽ giới thiệu đến bạn đọc mẫu nhà phố của anh Cường tại Thái Nguyên, nhà phố 2 tầng 1 tum kết hợp giếng trời.
1. Xúy xoa trước mẫu nhà phố đẹp lạ

Mẫu nhà phố là sự kết hợp hoàn hảo giữa các khối hình, vừa tạo sự vững chắc, khỏe khắn, vừa có sự tinh giản, không cầu kỳ.
Với những lô đất mặt tiền bé, đây là kiểu thiết kế phù hợp nhất, không chỉ có tính thẩm mĩ cao mà còn tiết kiệm kinh phí xây dựng.
Tuy nhiên, chính bởi tính đơn giản của nó mà các mẫu thiết kế thường khá giống nhau. Bởi vậy, khi nhận tư vấn của kiến trúc sư, anh Cường mong muốn thiết kế mặt tiền ngôi nhà có sự khác lạ nhưng vẫn đảm bảo tính duy mỹ, ấn tượng.
Khoác lên mình chiếc áo màu trắng, ngôi nhà trở nên nổi bật và tinh tế. Phía trước ban công tầng 2 là bồn trồng cây và hoa. Đây là không gian thiên nhiên lý tưởng giúp anh Cường và gia đình có không gian xanh, trồng hoa và cây cảnh.
2. Bố trí công năng sử dụng
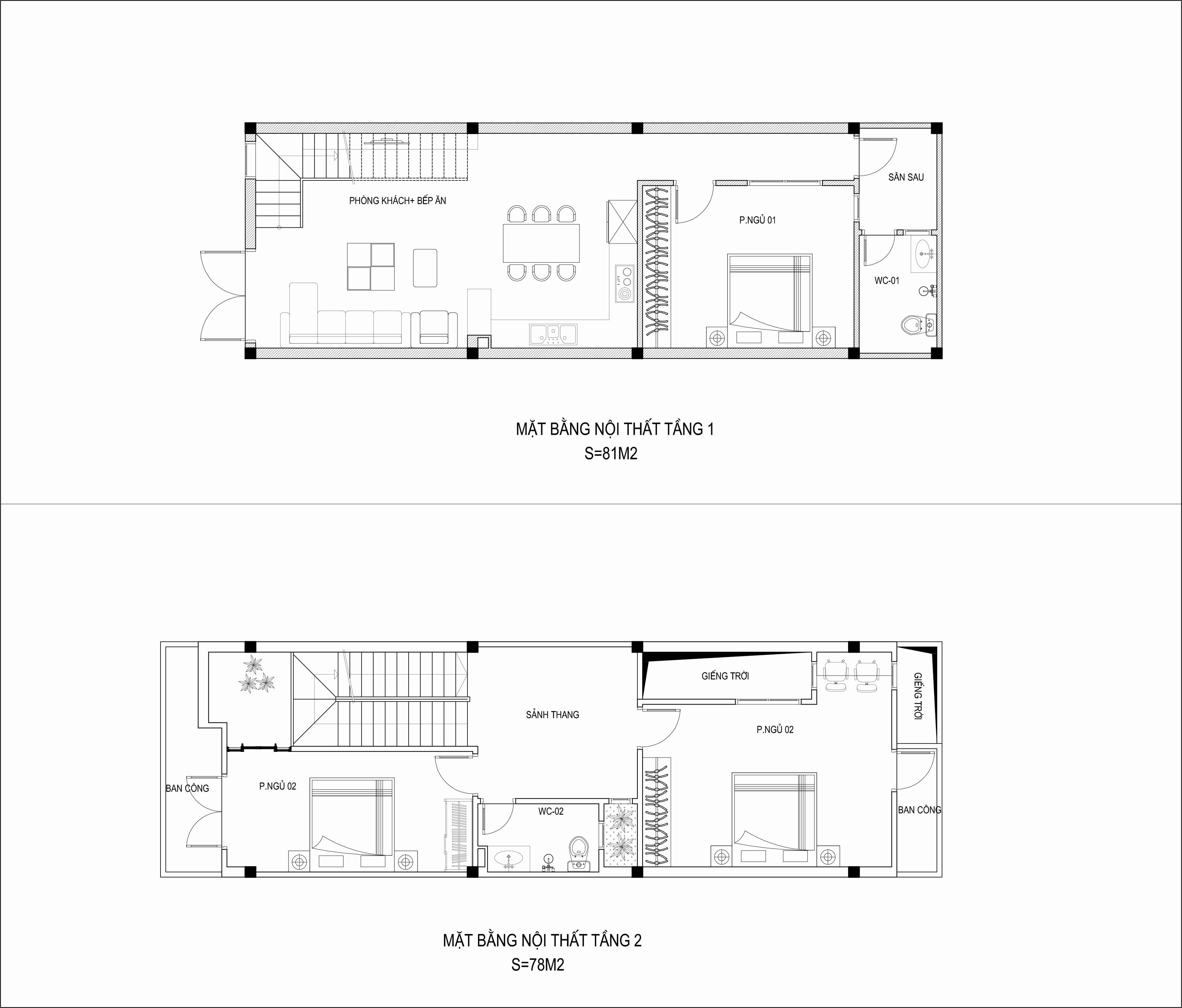
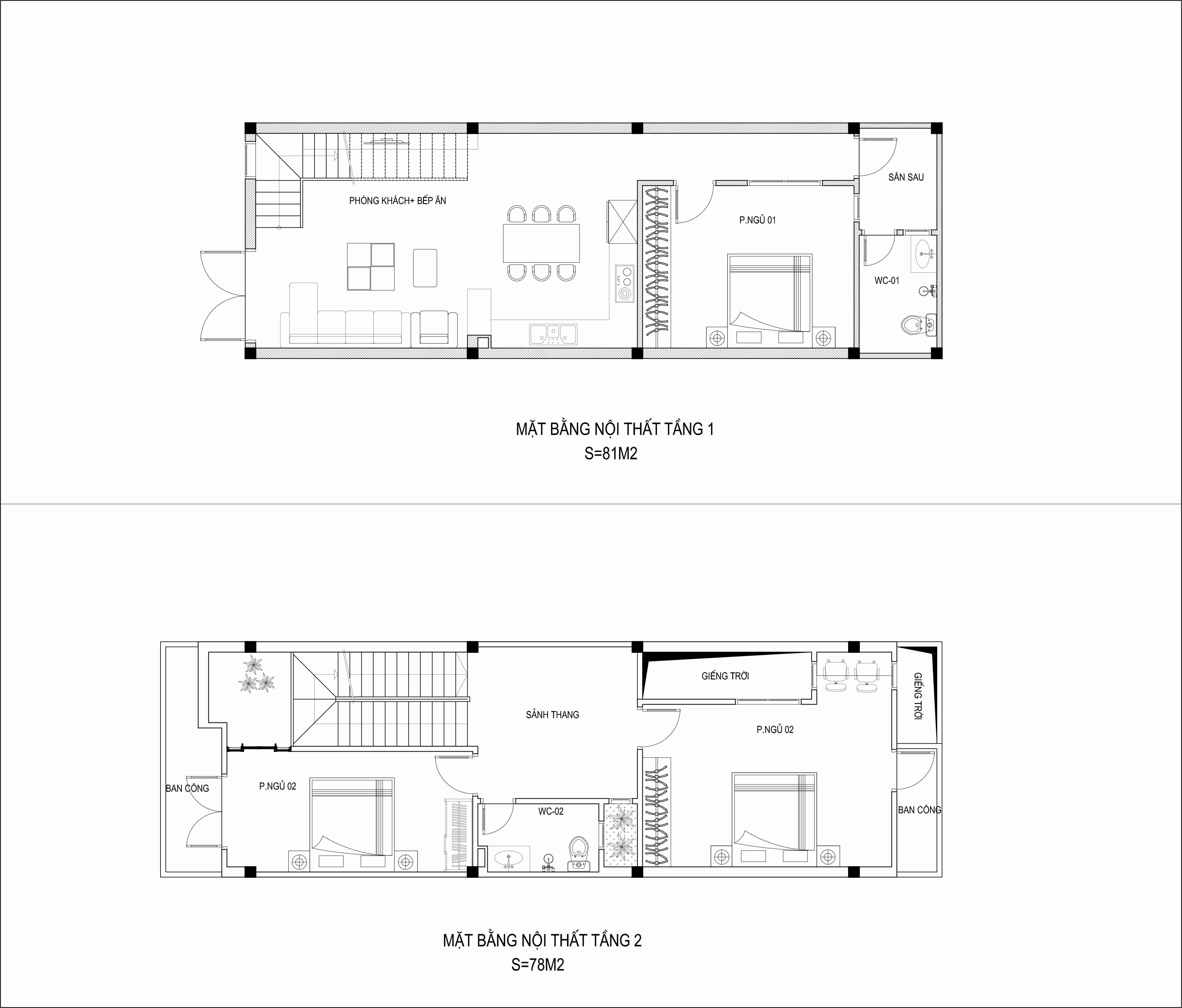
Bố trí tầng 1
Tầng 1: Phòng khách + Bếp, 1 phòng ngủ, 1 wc, sân sau

- Phòng khách luôn được bố trí gần cửa chính của mỗi ngôi nhà để giúp cho quá trình giao lưu, sum họp của các thành viên trong gia đình cũng như dễ dàng hơn. Căn phòng được bố trí nội thất gọn gàng, khoa học hợp lý.
- Cầu thang được bố trí dọc theo phòng khách trong nhà. Cầu thang như vậy giúp căn tối ưu diện tích sử dụng, phòng khách được thông thoáng hơn.
- Phòng bếp tiếp giáp ngay phòng khách, là không gian ấm cúng để gia đình quây quần bên nhau.
- Ngoài ra, tầng 1 còn bố trí thêm 1 sân ướt nhỏ. Đây là khu vực thuận tiện để gia đình sử dụng mỗi khi có cỗ bàn.
Bố trí công năng tầng 2
Tầng 2: 2 Phòng ngủ, 1 WC, ban công
- Ở tầng lầu này dành riêng cho việc nghỉ ngơi nhằm đảm bảo sự yên tĩnh nhất định. 2 Phòng ngủ đều được bố trí nội thất hợp lý khoa học cung cấp cho việc nghỉ ngơi được tốt nhất.
- Nhà vệ sinh được thiết kế bên ngoài dùng chung cho các thành viên nhằm tối ưu diện tích bên trong từ đó tạo ra nhiều khoảng trống thư giãn, học tập làm việc trong phòng ngủ hơn.
- Điểm đặc biệt trong mẫu thiết kế nhà anh Cường là phần giếng trời giúp tăng sự thông thoáng, đón gió và ánh sáng tự nhiên.
Bố trí công năng tầng tum
Tầng tum: Phòng thờ, khu giặt đồ
Thiết kế một góc sân thượng có thể tận dụng để thư giãn ngay tại nhà, tiếp đến là phòng thờ được bố trí trên tầng lầu cao nhằm đảm bảo sự yên tĩnh tôn nghiêm.

Có thể thấy việc kết hợp giếng trời là vô cùng cần thiết kế căn nhà phố trở nên thông thoáng và hợp lý. Bạn đang cần tư vấn thiết kế và thi công? Liên hệ ngay chúng tôi qua hotline: 0912301185 để nhận tư vấn miễn phí.
