Vẻ đẹp quyến rũ mẫu nhà vườn tân cổ điển mái thái - Anh Quân, Thái Nguyên
Bạn đang tìm kiếm mẫu nhà vườn đẹp? Hãy cùng tìm hiểu mẫu nhà 1 tầng mái thái phong cách tân cổ điển được Việt Home thiết kế cho nhà anh Quân tại Thái Nguyên.
1. Phối cảnh mặt tiền
Mặt tiền mẫu nhà 1 tầng tân cổ điển 170 m2 được thiết kế vô cùng hoàn mỹ.
Các kiến trúc sư đã sử dụng dạng cột tròn và cửa sổ vòm là đặc trưng cho phong cách tân cổ điển. Điều này giúp tổng thể ngôi nhà vô cùng mềm mại.
Phù điêu mái được thiết kế vô cùng tinh xảo nhưng không quá đồ sộ. Khi nhìn vào toàn bộ mặt tiền có thể thấy được sự tinh tế, tỉ mỉ của chính chủ nhân sống trong đó.

Chủ nhà vô cùng yên thích thiết kế bồn cây phía trước nhà. Không chỉ mang lại vẻ đẹp cân đối, bồn cây còn tăng không gian xanh, điểm xuyết hoa cỏ để cuộc sống thêm hòa hợp cùng thiên nhiên.
Màu sơn trắng và kem là màu đặc trưng trong phong cách tân cổ điển. Điều này giúp ngôi nhà như bừng sáng giữa không gian xanh xung quanh.
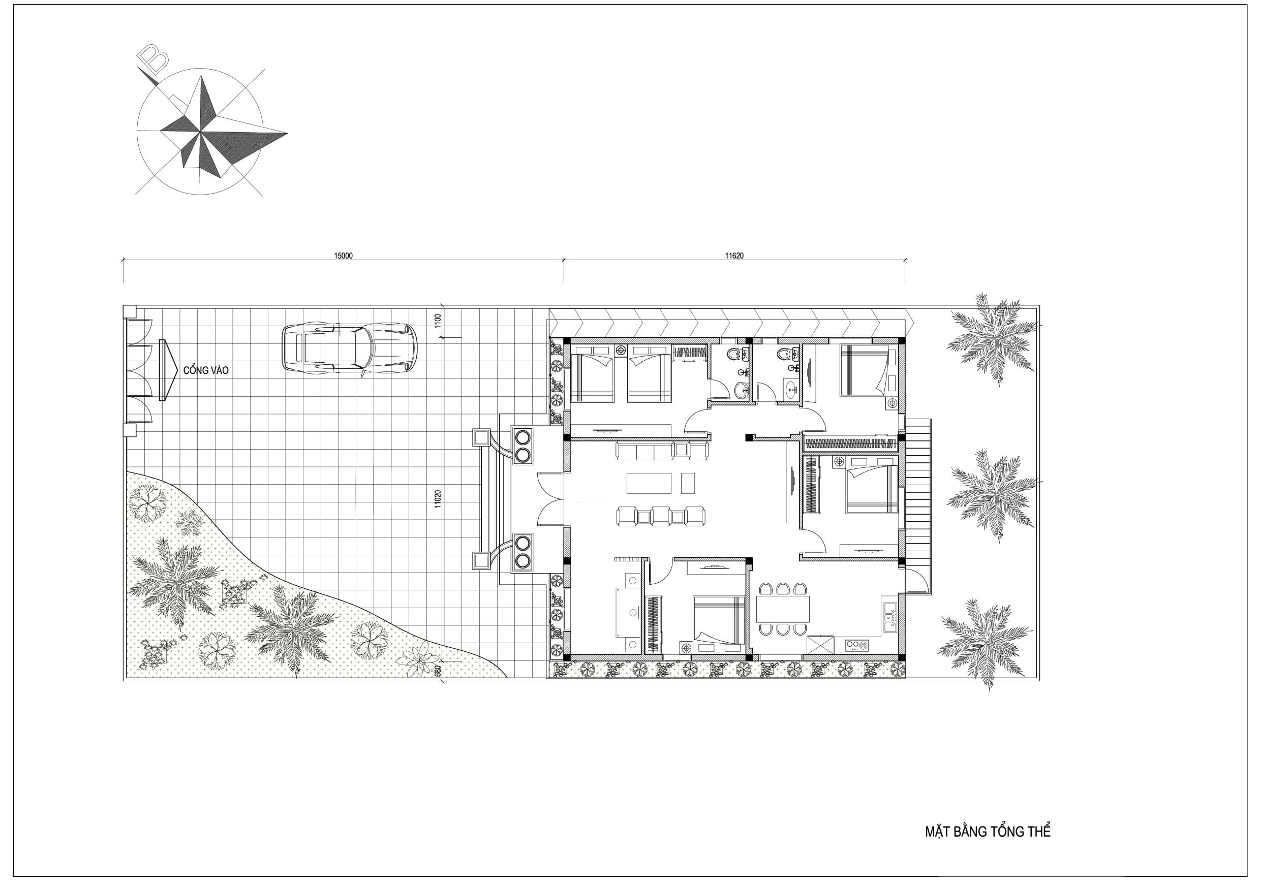
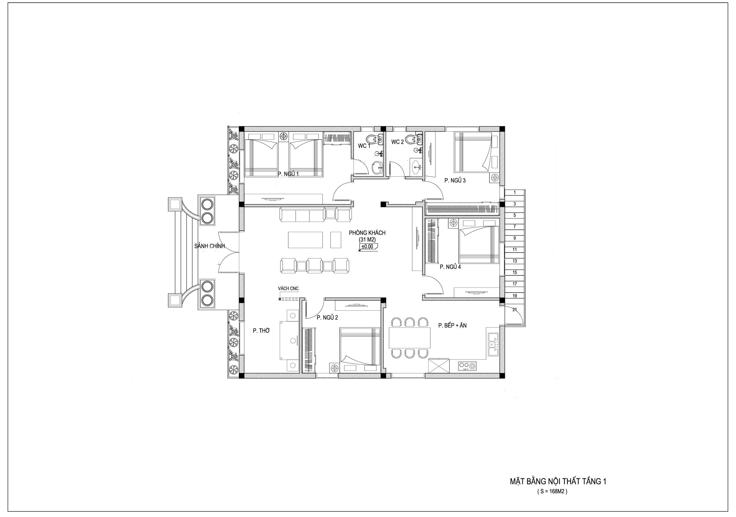
2. Bố trí công năng trong nhà
- Chủ đầu tư: Anh Quân
- Địa điểm xây dựng: Thái Nguyên
- Công năng sử dụng: Phòng khách + Phòng thờ + Phòng bếp + 4 Phòng ngủ + 2 WC

KTS Việt Home trong quá trình trao đổi và tư vấn và bố trí công năng bên trong ngôi nhà thân yêu. Việc bố trí dựa vào các hướng sinh khí của gia chủ giúp mọi thành viên luôn mạnh khỏe, làm ăn thăng tiến.
Các phòng được sắp xếp hợp lý, không có không gian thừa để việc sinh hoạt được thuận tiện. Đồng thời, các phòng đều được bố trí cửa sổ để lấy gió tạo sự thông thoáng tối đa vào nhà.
3. Hình ảnh thi công và hoàn thiện


Trên đây là mẫu nhà khách hàng anh Quân tại Thái Nguyên để bạn đọc tham khảo. Tuy nhiên, mỗi nhà sẽ có nhu cầu sử dụng và các hướng đẹp khác nhau. Bởi vậy, trước khi thiết kế, bạn đọc cần nghiên cứu kỹ lưỡng để xây dựng nên ngôi nhà đẹp và đảm bảo trong sinh hoạt. Liên hệ ngay Việt Home qua hotline: 0912301185 để được tư vấn mẫu phù hợp nhất.
