Toàn cảnh nhà phố 3 tầng hiện đại - Chủ đầu tư: Anh Hải, Lạng Sơn
1. Phối cảnh 3D mặt tiền
Chủ đầu tư: Anh Hải
- Địa điểm xây dựng: Lạng Sơn
- Công năng sử dụng:
Tầng 1: Phòng khách + Bếp + 1 Phòng ngủ + WC
Tầng 2: 3 Phòng ngủ master
Tầng 3: Phòng thờ + 1 Phòng ngủ thường + WC

Kiến trúc sử dụng đường nét vuông vắn kết hợp với các mảng cong mềm mại, tạo điểm nhấn độc đáo. Hệ thống cửa kính lớn giúp tối ưu ánh sáng tự nhiên, đồng thời mang lại cảm giác thông thoáng. Ban công xanh mát với cây cối và giàn hoa rực rỡ không chỉ tăng tính thẩm mỹ mà còn tạo không gian sống trong lành.

Nhà phố 3 tầng ấn tượng với những nguyên vật liệu hiện đại với tone trắng nhã nhặn, được tạo điểm nhấn bằng hệ lan can kính. Ngoài ra, không gian ngôi nhà có tính mở thông thoáng nên không thể không nhắc đến hệ thống cửa kính giúp đón sáng và gió thoáng vào nhà dễ dàng hơn, đồng thời mang đến tầm view đẹp cho không gian bên trong nhà.

2. Công năng sử dụng
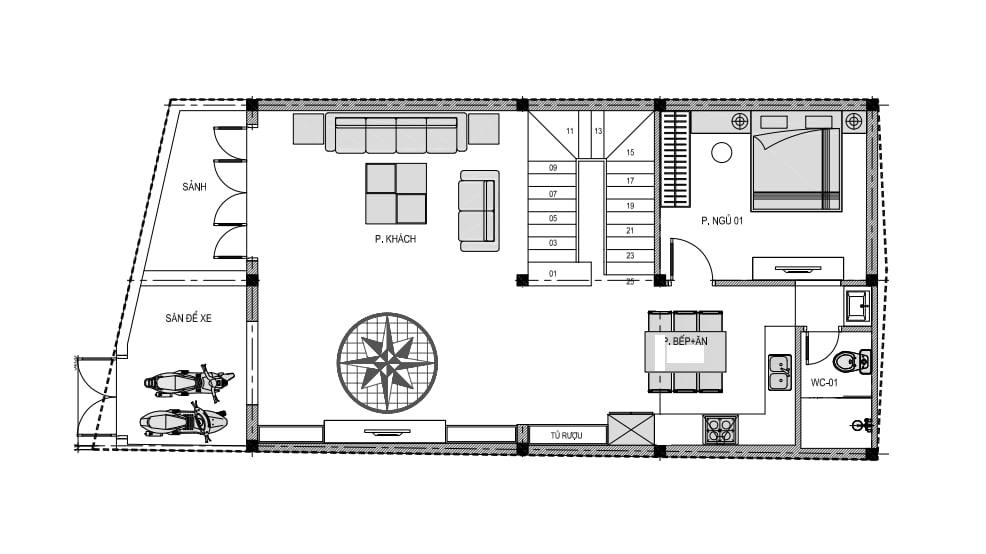
2.1. Tầng 1
Tầng 1: Phòng khách + Bếp + 1 Phòng ngủ + WC
.png?223)
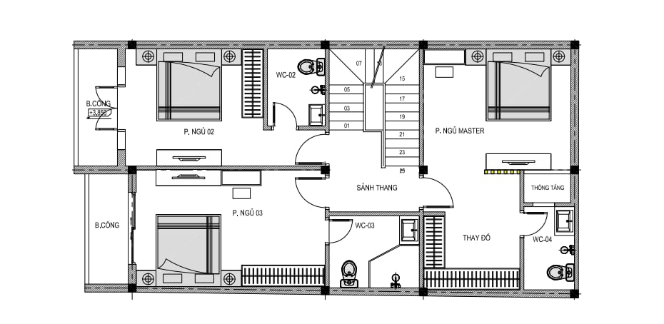
2.2. Tầng 2
Tầng 2: 3 Phòng ngủ master
.png?792)
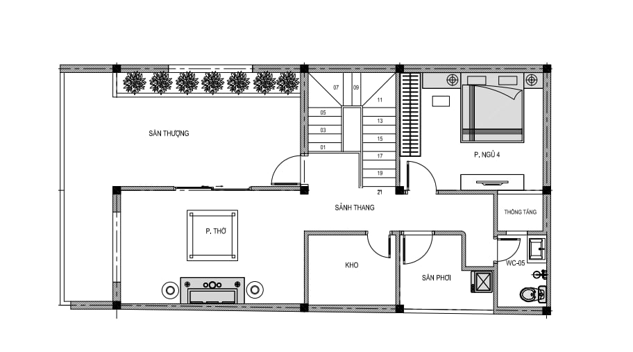
2.3. Tầng 3
Tầng 3: Phòng thờ + 1 Phòng ngủ thường + WC
.png?409)
