Toàn cảnh mẫu nhà vườn mái Nhật vạn người mê - Chủ đầu tư: Anh Quyền, Bắc Giang
1. Phối cảnh 3D mặt tiền
- Chủ đầu tư: Anh Quyền
- Địa điểm xây dựng: Bắc Giang
- Tên công trình: Nhà vườn 1 tầng mái Nhật
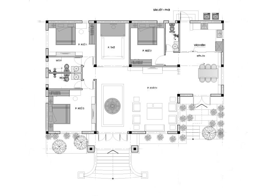
- Công năng: Phòng Thờ + Phòng khách + Bếp + 2 Phòng ngủ khép kín + 1 phòng ngủ thường + 1 WC

Mẫu nhà vườn mái Nhật lấy màu trắng làm chủ đạo. Màu trắng trong kiến trúc xây dựng tượng trưng cho sự đơn giản và sự khởi đầu mới. Tông màu trắng nhẹ nhàng, trong trẻo luôn mang đến cho người nhìn cảm giác thoải mái, an toàn. Đây là điều mà bất cứ một gia chủ nào đều mong muốn có trong ngôi nhà của mình.
Để cân bằng lại màu sắc, ánh sáng và tạo sự bền vững, chân tường, chân mái và cột kiến trúc sư sử dụng màu nâu đen làm điển nhấm, bên cạnh đó là màu đen huyền bí ở hệ khung nhôm kính và màu xanh than của hệ mái. Sự kết hợp này mang lại vẻ đẹp hiện đại và sang trọng cho thiết kế nhà vườn 3 phòng ngủ tại Bắc Giang
Phong cách hiện đại, phóng khoáng và trẻ trung, đặc biệt là màu trắng kết hợp với tông màu xanh dịu nhẹ của hệ mái không chỉ trông cân đối về mặt thị giác mà còn tăng thêm sự sang trọng, lịch lãm trong mắt người nhìn. Hệ thống mái Nhật xếp chồng lên nhau ở mặt tiền khiến ngôi nhà này càng trở nên độc đáo và thú vị hơn. Phần mái lộ thiên giúp bảo vệ hành lang, ban công khỏi nắng, mưa, đồng thời giúp không khí trong nhà mát hơn so với cái nóng gay gắt của trung tâm.

2. Công năng sử dụng
Phòng Thờ + Phòng khách + Bếp + 2 Phòng ngủ khép kín + 1 phòng ngủ thường + 1 WC
.png?920)

Các kiến trúc sư tại Việt Home với nhiều kinh nghiệm trong lĩnh vực thiết kế thi công nhà ở với kiến thức chuyên môn và gu thẩm mỹ nghệ thuật cao cam kết sẽ sáng tạo hết mình mang lại không gian sống lý tưởng nhất cho bạn và gia đình.
