Toàn cảnh mẫu nhà phố hiện đại tại Bắc Giang - Chủ đầu tư: Anh Ninh
Thiết kế nhà 2 tầng 1 tum là một xu thế mới cho nhiều gia đình trẻ. Và tối giản được không gian lô đất khi quá hạn hẹp. Điều này xây dựng lên một ngôi nhà 2 tầng 1 tum để tiết kiệm một phần không gian.
Một mẫu thiết kế nhà 2 tầng 1 tum được đánh giá cao trong xây dựng. Những ngôi nhà 2 tầng 1 tum luôn đầy đủ công năng nhất cho tất cả thành viên trong gia đình. Tạo được cuộc sống vui thoải mái nhất.

1. Phối cảnh 3D mặt tiền
- Chủ đầu tư: Anh Ninh
- Địa điểm xây dựng: Bắc Giang
- Tên công trình: Biệt thự phố 2 tầng 1 tum
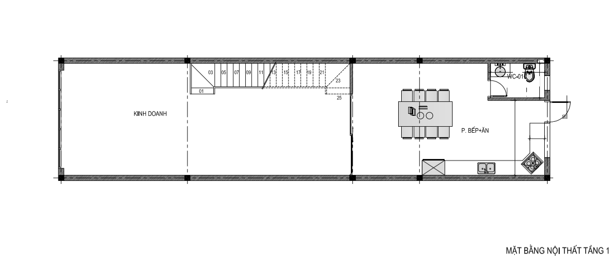
- Công năng sử dụng:
+ Tầng lửng :Kinh doanh + Bếp ăn + WC
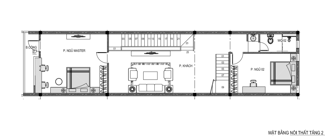
+ Tầng 2: Phòng khách + 2 Phòng ngủ thường + WC
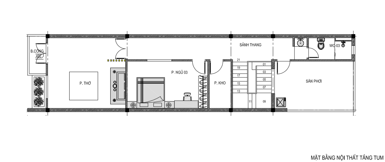
+ Tầng tum: Phòng thờ + Phòng ngủ thường + Phòng kho + Sân chơi + Sân phơi

Nét đẹp của mẫu nhà 2 tầng 1 tum luôn hướng đến một không gian sống tối ưu nhất. Thể hiện rõ cho gia đình mình một ngôi nhà hoàn chỉnh theo thời gian.
Mặt đứng phải tối giản không quá phức tạp như mặt cắt cong. Vẻ đẹp của ngôi nhà 2 tầng 1 tum đến từ những đường thẳng kết hợp với khả năng chi trả của thời hiện đại.
Với phong cách kiến trúc hiện đại, đơn giản mà tinh tế. Nhà 3 tầngđược thiết kế ngoại thất công trình hài hòa. Với công năng bên trong, đồng thời vẫn công năng sử dụng và mỹ quan công trình.
2. Bố trí công năng sử dụng
+ Tầng lửng :Kinh doanh + Bếp ăn + WC

+ Tầng 2: Phòng khách + 2 Phòng ngủ thường + WC

+ Tầng tum: Phòng thờ + Phòng ngủ thường + Phòng kho + Sân chơi + Sân phơi

