Toàn cảnh mẫu nhà phố 4 tầng hiện đại tại Hải Phòng - Chủ đầu tư: Anh Tùng
Số lượng mẫu nhà phố 3 - 5 tầng ngày càng tăng cao do diện tích đất tại các khu vực trung tập, khu đô thị tăng cao. Điều này đòi hỏi các kiến trúc sư phải khéo léo tận dụng không gian để diện tích sử dụng là lớn nhất, đáp ứng đủ công năng cho gia chủ mà vẫn phải khoa học, thẩm mỹ.
Sở hữu lô đất phố với diện tích khiêm tốn, anh Tùng tìm đến kiến trúc sư Việt Home để tư vấn giải pháp và đã được chúng tôi tư vấn mẫu nhà phố 4 tầng, với không gian hiện đại.
Tùng theo dõi bài viết về tìm hiểu về ý tưởng, mẫu hoàn thiện của gia đình anh Tùng tại Dương Kinh, Hải Phòng nhé!
1. Phối cảnh 3D mặt tiền
- Chủ đầu tư: Anh Tùng
- Địa điểm xây dựng: Dương Kinh, Hải Phòng
- Tên công trình: Nhà phố 4 tầng hiện đại
- Diện tích: 5x17m
- Công năng sử dụng:
+ Tầng 1: Sân để xe + Phòng khách + Không gian đọc + 1 WC + Bếp + Sân ướt
+ Tầng 2: 1 Phòng ngủ master + 1 Phòng ngủ thường + 1 WC
+ Tầng 3: Phòng thờ + 2 Phòng ngủ + 1 WC
+ Tầng 4: Sân thượng + Phòng SHC + Sân phơi

Vì không có quá nhiều diện tích chiều rộng nên luôn cần cân nhắc về kiến trúc cho căn nhà để đảm bảo sự cân đối, phù hợp. Nếu phong cách tân cổ điển phù hợp với những mảnh đất rộng thì phong cách hiện đại lại là phương án hoàn hảo cho những căn nhà phố 4 tầng diện tích hẹp. Theo đó thiết kế kiến trúc theo phong cách hiện đại cho những căn nhà phố sẽ toát lên sự sang trọng, tinh tế và vẫn đảm bảo sự tiện nghi, thoải mái.
Nhìn tổng quan, căn nhà 4 tầng này không quá lộng lẫy, rực rỡ, nhưng lại thu hút với tổng thể hài hòa, các chi tiết trang trí hiện đại, nhẹ nhàng. Kết hợp với việc đặt một vài chậu cây xanh đã tạo nên vẻ yên bình và hoàn mỹ cho căn nhà.
Nhìn vào mặt tiền bạn sẽ cảm nhận được sự thông thoáng, cân đối. Bằng cách sử dụng cửa kính nhìn thẳng ra ban công. Với chất liệu này, ngôi nhà phố 4 tầng trở nên sang trọng, ấn tượng và hút mắt hơn rất nhiều.
2. Bố trí công năng các tầng
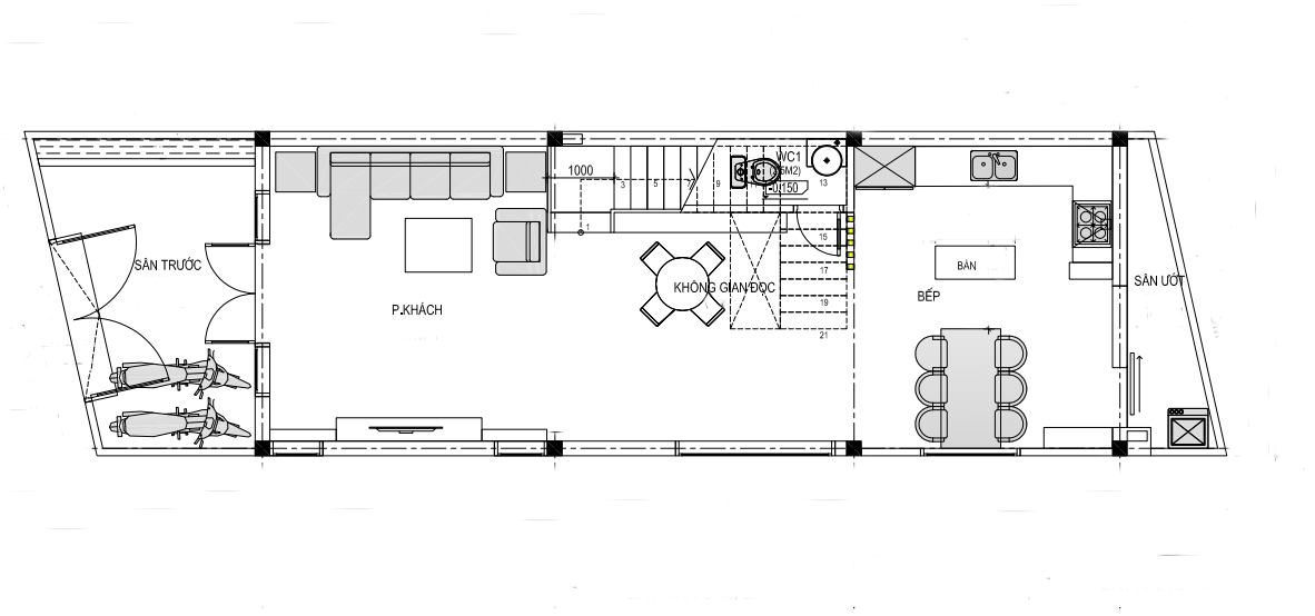
2.1. Bố trí công năng tầng 1
Sân để xe + Phòng khách + Không gian đọc + 1 WC + Bếp + Sân ướt

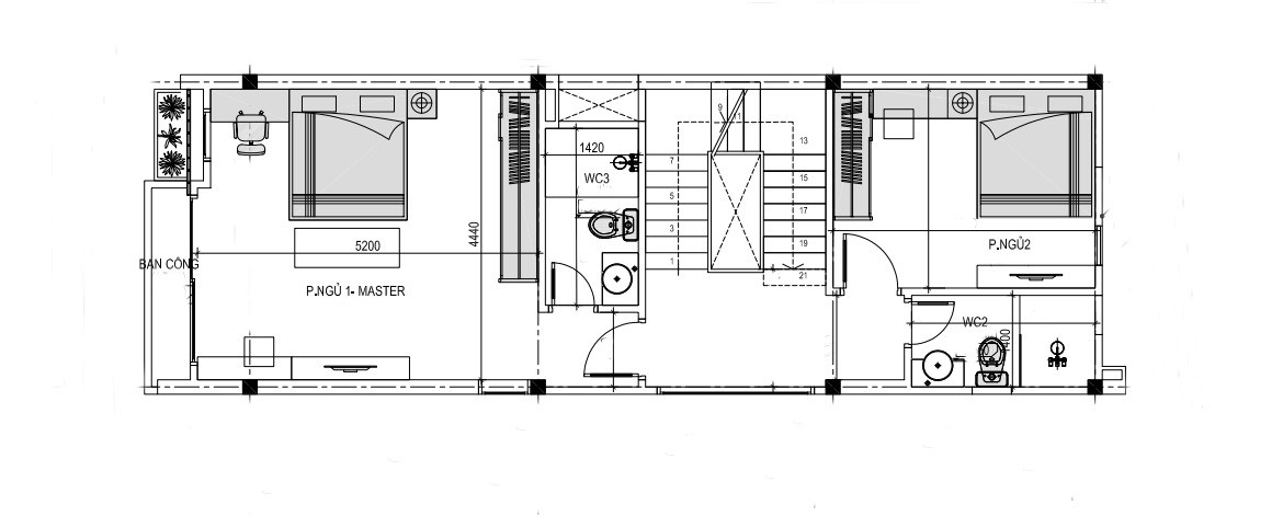
2.2. Bố trí công năng tầng 2
1 Phòng ngủ master + 1 Phòng ngủ thường + 1 WC

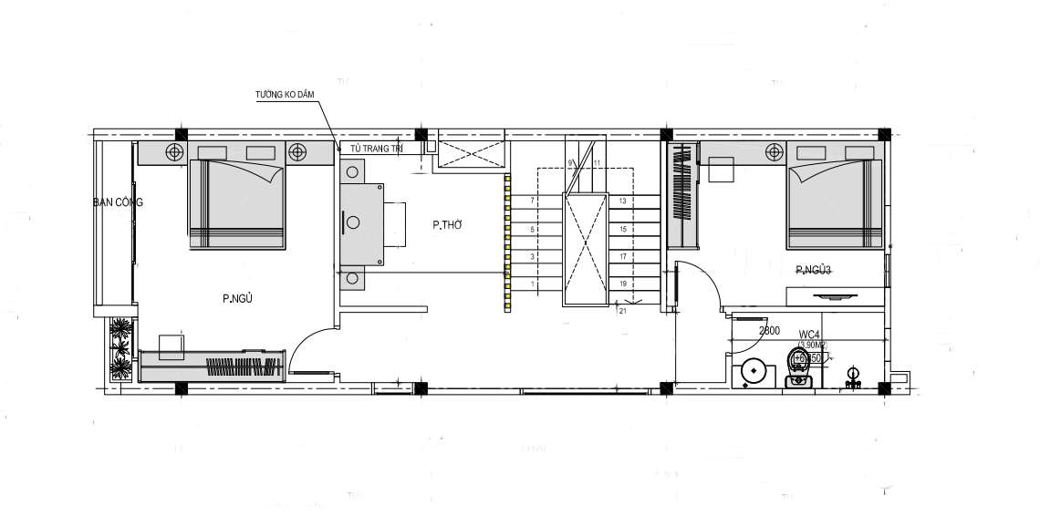
2.3. Bố trí công năng tầng 3
Phòng thờ + 2 Phòng ngủ + 1 WC

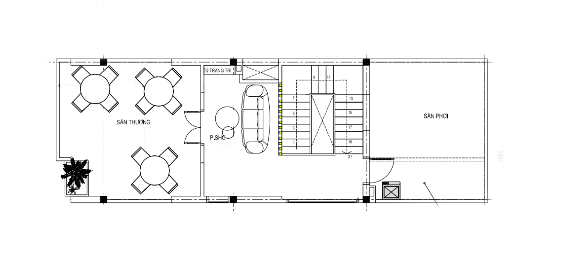
2.4. Bố trí công năng tầng 4
Sân thượng + Phòng SHC + Sân phơi

Bạn đang cần tìm đơn vị thiết kế và thi công một ngôi nhà đẹp, có thiết kế thanh lịch phù hợp với xu hướng hiện đại, hãy liên hệ ngay với chúng tôi để nhận được tư vấn và báo giá chính xác nhất.
