Toàn cảnh mẫu biệt thự 2 tầng mái Thái - Chủ đầu tư: Anh Quang, Thái Bình
1. Phối cảnh 3D mặt tiền
- Chủ đầu tư: Anh Quang
- Địa điểm xây dựng: Thái Bình
- Tên công trình: Biệt thự 2 tầng mái Thái
- Công năng sử dụng:
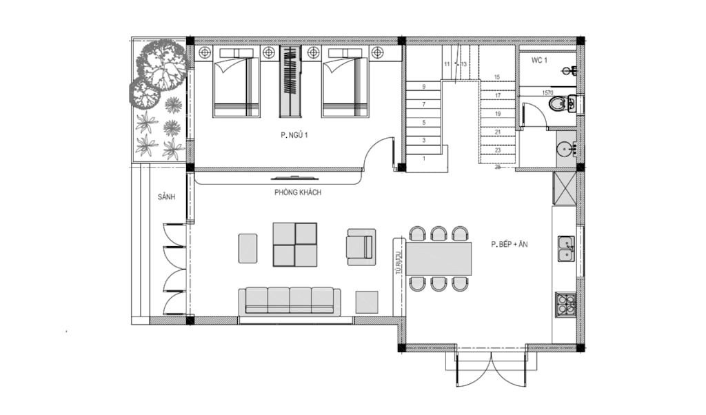
+ Tầng 1: Phòng khách + Phòng bếp + 1 Phòng ngủ + 1 WC
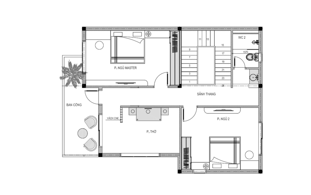
+ Tầng 2: Phòng thờ + 2 Phòng ngủ + 1 WC

Mẫu nhà gây ấn tượng bởi phong cách hiện đại phóng khoáng, hình khối mạnh mẽ, mảng tường phẳng và bố cục khoa học. Tông màu trắng – ghi – đen chủ đạo mang đến cảm giác cao cấp, rất hợp xu hướng kiến trúc hiện nay.
Hệ thống cửa sổ kính khung gỗ được bố trí dày đặc ở các vị trí giúp tận dụng tối đa không gian sống để lấy ánh sáng và gió tự nhiên từ ngoài vào. Hệ thống cửa chính được sử dụng chính bằng gỗ được tạo điểm nhấn bằng những ô kính nhỏ, Hệ thống lam trang trí ban công được sử dụng chất liệu nhôm đúc hình bán nguyệt điệu đà và uốn lượn đó là xu hướng sử dụng trong những mẫu thiết kế biệt thự tân cổ điển.
Mái Thái màu đen là lựa chọn hoàn hảo cho công trình vừa mang vẻ đẹp thanh thoát, tối giản lại tạo điểm nhấn cân đối cho kiến trúc tổng thể.

2. Bố trí công năng
2.1. Bố trí công năng tầng 1
Phòng khách + Phòng bếp + 1 Phòng ngủ + 1 WC

2.2. Bố trí công năng tầng 2
Phòng thờ + 2 Phòng ngủ + 1 WC

Mỗi căn nhà khi xây dựng, bố cục sắp xếp các phòng, hướng phục thuộc vào tuổi tác các thành viên trong gia đình cũng như hướng đất. Việc bố trí công năng phù hợp vô cùng quan trọng khi sinh hoạt và trong phong thủy làm ăn, sức khỏe hay hạnh phúc của gia chủ. Bởi vậy, nếu bạn đang có dự định xây nhà, đừng làm theo bản vẽ có sẵn trên mạng mà hãy liên hệ với Việt Home để được tư vấn bố trí và phong thủy sao cho phù hợp nhất.
