Thiết kế nhà phố 4 tầng hiện đại, tối ưu không gian sống - Chủ đầu tư: Anh Tuấn, Hà Nội
1. Phối cảnh 3D mặt tiền
Chủ đầu tư: Anh Tuấn
- Địa điểm xây dựng: Thanh Oai, Hà Nội
- Công năng sử dụng:
+ Tầng 1: Sân để xe + Phòng khách + Phòng bếp + WC
+ Tầng 2, 3: 2 Phòng ngủ + WC
+ Tầng 4: Phòng thờ + Kho + Sân phơi
Ngôi nhà ống 4 tầng gây ấn tượng mạnh với mặt tiền hiện đại, kết hợp hài hòa giữa kiến trúc vững chãi và những đường nét thiết kế dứt khoát, khỏe khoắn. Các chi tiết trang trí được tối giản, nhường chỗ cho vẻ đẹp tinh tế, sang trọng toát lên từ bố cục hình khối và chất liệu ngoại thất. Những mảng xanh bố trí hợp lý tại ban công từng tầng không chỉ góp phần cân bằng thẩm mỹ mà còn mang lại hơi thở thiên nhiên, giúp không gian sống trở nên thư thái, trong lành giữa lòng phố thị.
.jpg?950)
Ở mẫu thiết kế nhà đẹp này, kiến trúc sư đã khéo léo lựa chọn gam màu trắng và cam làm chủ đạo, tạo nên tổng thể hài hòa, thanh thoát và mang đậm phong cách hiện đại. Màu trắng tươi sáng giúp không gian như được mở rộng thị giác, trong khi sắc cam ấm làm nổi bật vẻ tươi mới, trẻ trung của công trình.
Thiết kế này không chỉ tối ưu hóa ánh sáng tự nhiên vào bên trong mà còn tăng cường sự kết nối giữa không gian nội thất và cảnh quan bên ngoài, góp phần tôn lên vẻ sang trọng, phóng khoáng của tổng thể kiến trúc.
2. Công năng sử dụng
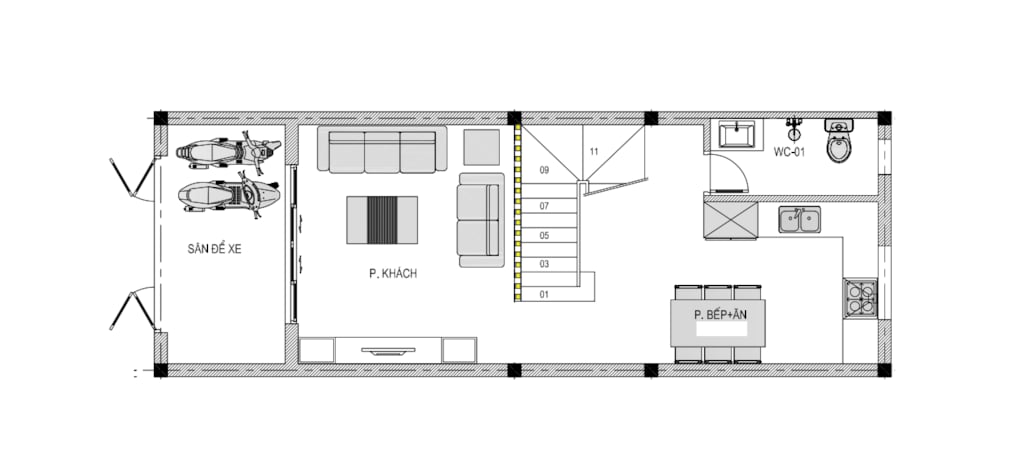
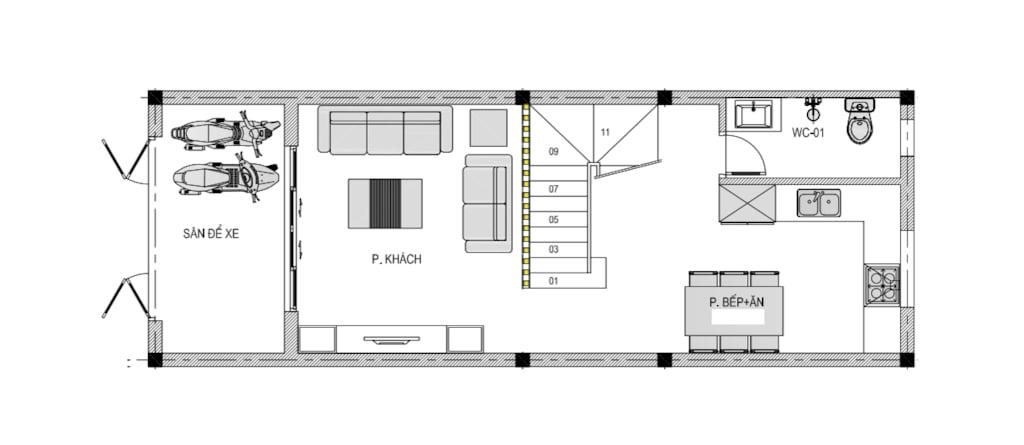
2.1. Tầng 1
Tầng 1: Sân để xe + Phòng khách + Phòng bếp + WC
.png?456)
.png?527)
2.2. Tầng 2,3
Tầng 2, 3: 2 Phòng ngủ + WC
.png?93)
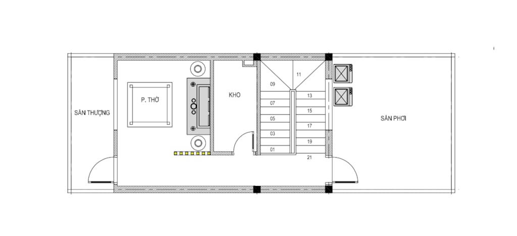
2.3. Tầng 4
Tầng 4: Phòng thờ + Kho + Sân phơi
.png?269)
