Thiết kế nhà phố 3 tầng hiện đại trẻ trung - Chủ đầu tư: Anh Thanh, Hưng Yên
1. Phối cảnh 3D mặt tiền
Chủ đầu tư: Anh Thanh
- Địa điểm xây dựng: Hưng Yên
- Công năng sử dụng:
+ Tầng 1: Gara + Phòng khách + Bếp + WC
+ Tầng 2: 2 Phòng ngủ khép kín
+ Tầng 3: Phòng thờ + 1 Phòng ngủ khép kín + Sân phơi

Gam màu trắng được chọn làm tông màu chủ đạo, mang đến vẻ ngoài tươi sáng, năng động và tràn đầy sức sống cho toàn bộ công trình. Kết hợp khéo léo cùng vật liệu hoàn thiện đã góp phần tôn lên cá tính riêng biệt cho ngôi nhà.
Vì là nhà phố nằm trong khu dân cư san sát, việc lấy sáng từ hai bên gần như không khả thi. Do đó, giải pháp lấy sáng tự nhiên chủ yếu đến từ mặt tiền. Toàn bộ hệ cửa và vách kính được sử dụng vật liệu kính cường lực khung nhôm Xingfa cao cấp, giúp ngôi nhà luôn tràn ngập ánh sáng ban ngày và tạo cảm giác không gian mở rộng rãi hơn.

Ban công tầng 2 và tầng tum được thiết kế khá rộng rãi, là nơi lý tưởng để gia chủ thư giãn, đọc sách hoặc thưởng trà. Lan can được làm từ sắt hộp sơn tĩnh điện chắc chắn, xung quanh là các bồn cây xanh mát, góp phần tạo nên không gian sống gần gũi với thiên nhiên và thư thái sau những giờ làm việc căng thẳng.

2. Công năng sử dụng
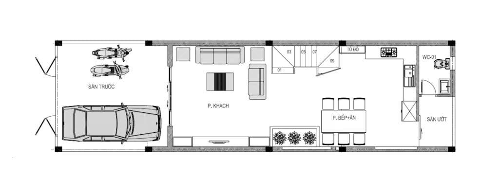
2.1. Tầng 1
Tầng 1: Sân để xe + Phòng khách + Phòng bếp + WC
.png?932)
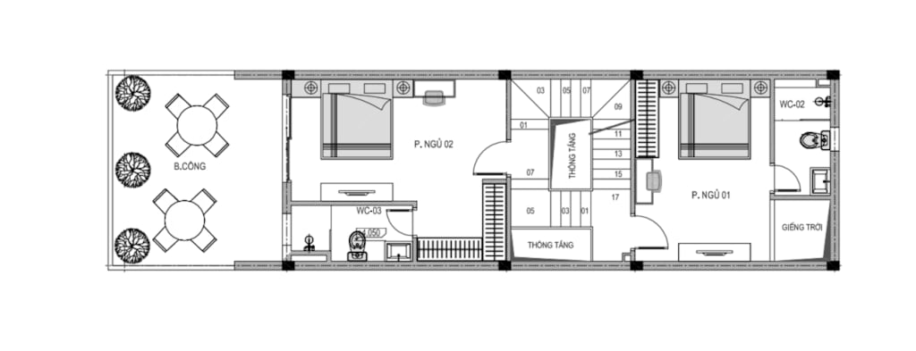
2.2. Tầng 2
Tầng 2: 2 Phòng ngủ khép kín
.png?274)
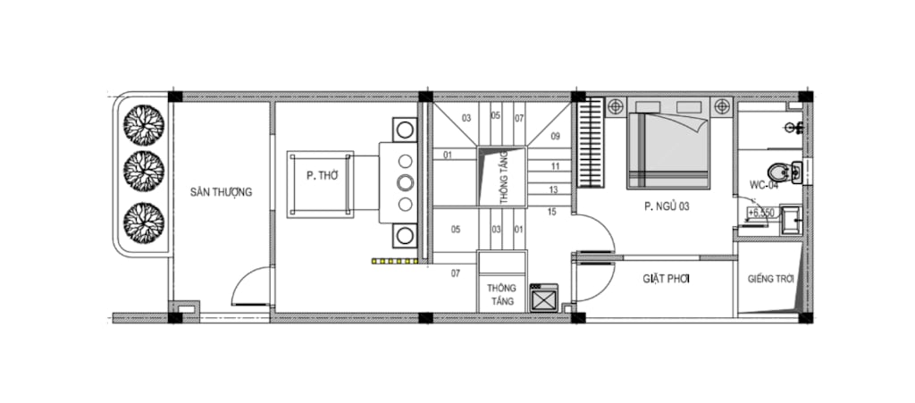
2.3. Tầng 3
Tầng 3: Phòng thờ + 1 Phòng ngủ khép kín + Sân phơi
.png?892)
