Thiết kế nhà nghỉ 5 tầng theo phong cách tân cổ điển của chủ đầu tư anh Ngọc tại Thái Nguyên
1. Phối cảnh 3D mặt tiền
Chủ đầu tư: Anh Ngọc
Địa điểm xây dựng: Thái Nguyên
Công năng sử dụng:
+ Tầng 1: Khu để xe + Sảnh tiếp đón + Bếp + 1 Phòng ngủ khép kín cho nhân viên + 1 Phòng khép kín
+ Tầng 2- 3: 5 Phòng khép kín
+ Tầng 4: 4 Phòng khép kín
+ Tầng 5: 2 Phòng khép kín + Sân giặt phơi

Mẫu nhà nghỉ hiện lên với đầy đủ đặc trưng của phong cách tân cổ điển. Đầu tiên là màu sơn trắng chủ đạo kết hợp với màu vàng vân đá ốp tầng 1 mang đến mặt tiền ấn tượng và sang trọng. Tiếp đó là cột nhà được đối xứng nhau qua một trục giữa đi qua phần kính mặt tiền chạy dọc từ tầng 2 đến tầng 5. Sự góp mặt của hệ thống cột được khắc nổi mang đến sự vững trãi, bề thế hơn cho nhà nghỉ. 5 tầng nhà nghỉ nhưng khi nhìn vào bạn sẽ thấy nó chẳng khác gì một khách sạn sang trọng.
Sự tiện nghi của nhà nghỉ được thể hiện ở phần thiết kế nội và ngoại thất nhà nghỉ. Phần ngoại thất được thể hiện ở phần cửa kính mang ánh sáng tự nhiên tới căn phòng và phần ban công giúp những vị khách có thể thưởng trà và tận hưởng nguồn không khí. Còn phần tiện nghi trong thiết kế nội thất, bạn cùng chúng tôi đến với thiết kế chi tiết từng tầng nhà để rõ hơn nhé.
.jpg?772)
2. Hình ảnh bố trí công năng
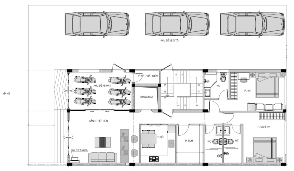
2.1. Tầng 1
+ Tầng 1: Khu để xe + Sảnh tiếp đón + Bếp + 1 Phòng ngủ khép kín cho nhân viên + 1 Phòng khép kín
.png?82)
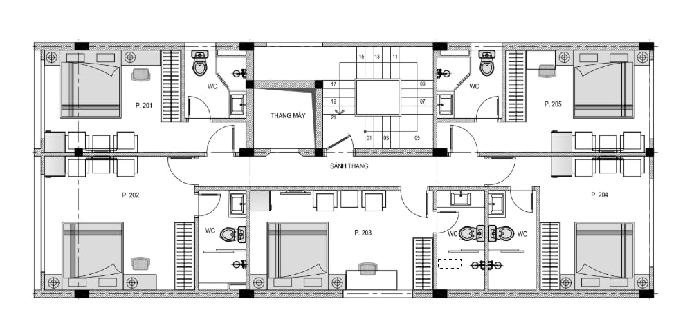
2.2. Tầng 2-3
+ Tầng 2- 3: 5 Phòng khép kín

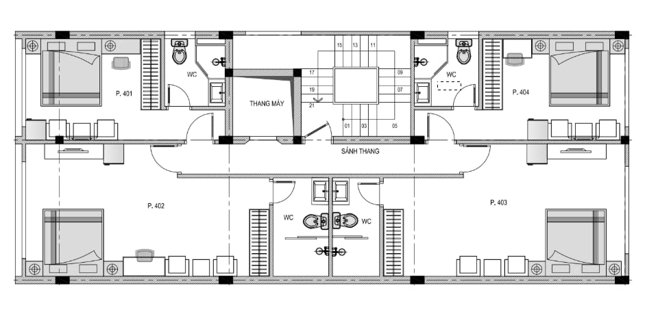
2.3. Tầng 4
+ Tầng 4: 4 Phòng khép kín
.png?387)
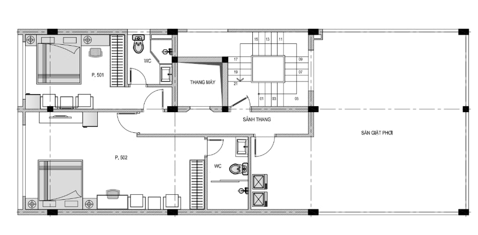
2.4. Tầng 5
+ Tầng 5: 2 Phòng khép kín + Sân giặt phơi
.png?336)
