Tham khảo mẫu 2 tầng mái nhật đẹp - Chủ đầu tư: Anh Quyền, Hưng Yên
1. Phối cảnh 3D mặt tiền
- Chủ đầu tư: Anh Quyền
- Địa điểm xây dựng: Hưng Yên
- Tên công trình: Biệt thự 2 tầng mái nhật
- Công năng sử dụng:
+ Tầng 1: Phòng khách + Phòng bếp ăn + 1 Phòng ngủ + 1 WC
+ Tầng 2: Phòng thờ + Phòng SHC + 1 Phòng ngủ khép kín + 1 phòng ngủ thường

Mặt tiền của ngôi biệt thự được thiết kế với hình khối khỏe khoắn, rõ ràng, mang đậm tinh thần hiện đại. Các mảng tường được bố trí theo chiều dọc và ngang một cách logic, tạo ra hiệu ứng thị giác chiều sâu, khiến ngôi nhà trở nên cao ráo và bề thế hơn.
Ngôi nhà sử dụng tường sơn màu trắng sứ chủ đạo. Hệ thống cửa đi và cửa sổ sử dụng vật liệu nhôm kính xingfa cao cấp, với kính cường lực trong suốt giúp tăng ánh sáng tự nhiên, tiết kiệm điện năng và kết nối không gian trong - ngoài một cách hài hòa.
Đặc biệt, hệ thống đèn led âm trần được lắp đặt ở phần mái hiên và các trục đứng tạo điểm nhấn vào ban đêm. Khi ánh đèn chiếu sáng, ngôi nhà trở nên lung linh, sang trọng và nổi bật giữa khu phố.
.jpg?68)
2. Hình ảnh bố trí công năng
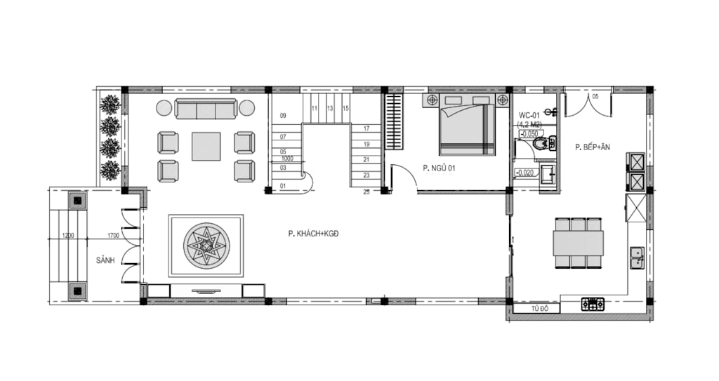
2.1. Tầng 1
Phòng khách + Phòng bếp ăn + 1 Phòng ngủ + 1 WC
.png?905)
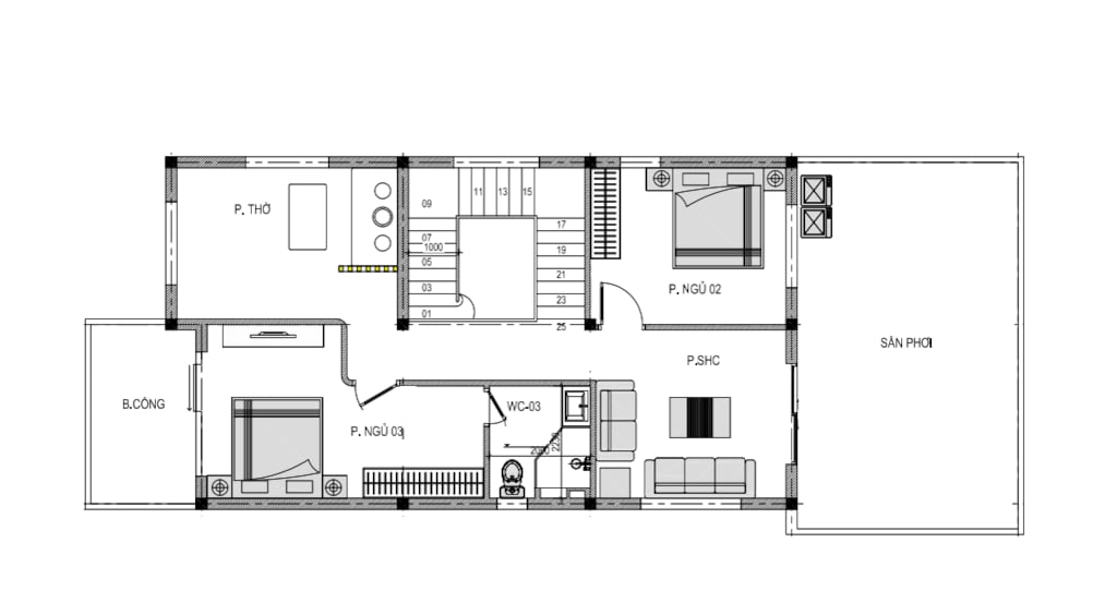
2.2. Tầng 2
Phòng thờ + Phòng SHC + 1 Phòng ngủ khép kín + 1 phòng ngủ thường
.png?85)
