Tận hưởng không gian sống thiên nhiên với mẫu nhà vườn mái nhật - Anh Kiên, Bắc Giang
Mẫu nhà vườn thích hợp xây dựng tại khu vực ngoại thành, nông thôn bởi diện tích xây dựng lớn. Đồng thời, kiến trúc nhà vườn đồng bộ với cảnh quan sân vườn tạo nên không gian sống thiên nhiên, lý tưởng và mơ ước của nhiều người.
Sau thời gian nghiên cứu kỹ lưỡng mẫu nhà và đơn vị triển khai, anh Kiên đã tin tưởng lựa chọn Việt Home để thiết kế mẫu nhà của anh. Cùng chiêm ngưỡng ngôi nhà tương lai của anh Kiên trong bài viết hôm nay nhé!
1. Phối cảnh 3D
- Chủ đầu tư: Anh Kiên
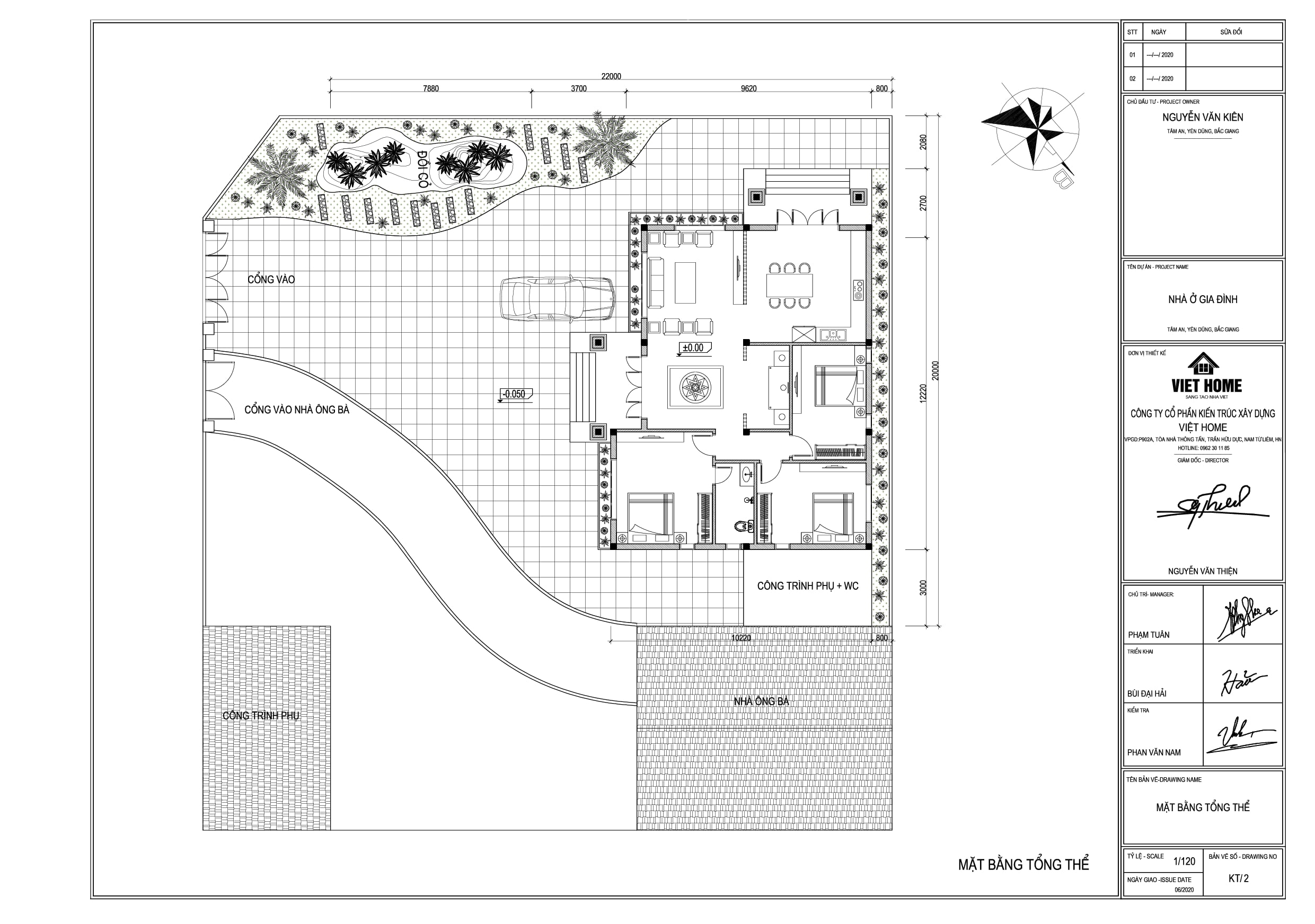
- Địa điểm xây dựng: Yên Thế, Bắc Gang
- Tên công trình: Nhà vườn mái nhật

- Thiết kế mái Nhật giúp ngôi nhà đảm bảo thoát nước tốt, phần mái tinh giản mà tiết kiệm chi phí xây.
- Cửa chính và cửa sổ được sử dụng nguyên liệu chính là kính. Điều này giúp căn nhà đón sáng tự nhiên tốt nhất.
- Với diện tích đất rộng rãi, anh Kiên đã lựa chọn xây kiểu nhà vườn 1 tầng. Như vậy, cả gia đình có thể cùng sinh hoạt chung trong cùng 1 mặt bằng.
- Hệ thống đèn led đảm bảo nhu cầu sinh hoạt, vừa giúp ngôi nhà mang vẻ đẹp hiện đại, trẻ trung.

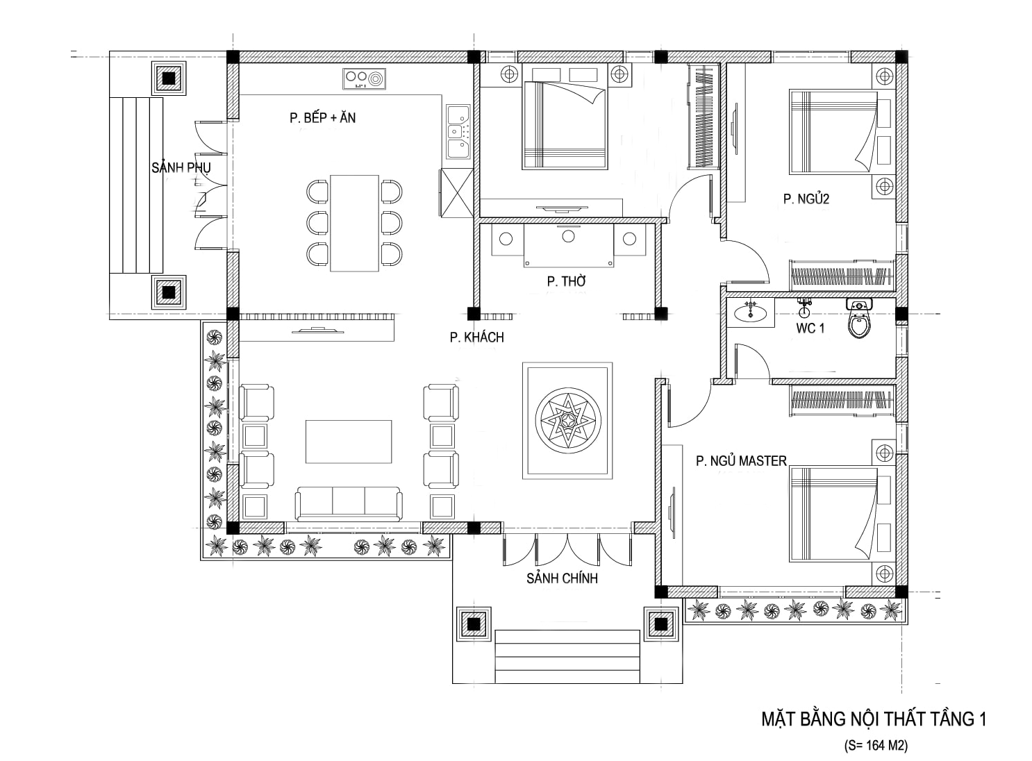
2. Bố trí công năng
Công năng sử dụng: Phòng khách + Phòng thờ + Bếp + 1 Phòng ngủ Master + 2 Phòng ngủ


3. Hình ảnh hoàn thiện




Bạn đang cần tư vấn xây thiết kế và thi công nhà ở? Vui lòng liên hệ hotline: 0912 30 11 85 để được kiến trúc sư Việt Home tư vấn phương án phù hợp nhất.
