Nhà phố hiện đại 3 tầng kết hợp kinh doanh - Không gan sống xanh giữa lòng Hà Nội - CĐT: Mr Thành - Thạch Thất, Hà Nội
1. Phối cảnh 3D mặt tiền
- Chủ đầu tư: Mr Thành
- Địa điểm xây dựng: Hà Nội
- Công năng sử dụng:
+ Tầng 1: Khu kinh doanh + Bếp ăn + WC
+ Tầng 2: Phòng khách + Phòng ngủ khép kín + phòng ngủ + WC
+ Tầng 3: Bếp ăn + Phòng ngủ + WC + sân thượng

Mặt tiền của mẫu nhà phố hiện đại 3 tầng kết hợp kinh doanh được thiết kế như một “bộ mặt thương hiệu” của công trình, thể hiện rõ sự chỉn chu, đẳng cấp và tính toán kỹ lưỡng trong từng chi tiết kiến trúc. Tổng thể công trình gây ấn tượng bởi bố cục hình khối mạnh mẽ, cân đối theo phương đứng, giúp ngôi nhà trông cao ráo và bề thế hơn so với diện tích thực. Các mảng tường phẳng được xử lý gọn gàng, kết hợp cùng những đường kẻ chỉ ngang dứt khoát, tạo nhịp điệu thị giác rõ ràng và mang đậm tinh thần kiến trúc hiện đại. Tầng 1 – khu vực kinh doanh – được ưu tiên thiết kế mở với hệ cửa kính cường lực khổ lớn, vừa tăng khả năng nhận diện, thu hút ánh nhìn từ ngoài đường, vừa giúp không gian bên trong luôn tràn ngập ánh sáng tự nhiên, tạo cảm giác rộng rãi, chuyên nghiệp và dễ dàng bố trí biển hiệu, trưng bày sản phẩm.
Các tầng phía trên được thiết kế lùi – tiến hợp lý, tạo chiều sâu cho mặt tiền và tránh cảm giác đơn điệu thường thấy ở nhà ống đô thị. Lan can kính trong suốt kết hợp khung kim loại sơn tĩnh điện giúp tổng thể trở nên thanh thoát, nhẹ nhàng nhưng vẫn đảm bảo an toàn và độ bền cao. Điểm nhấn nổi bật là hệ lam trang trí và mảng ốp vật liệu giả gỗ, vừa mang lại sự ấm áp về mặt thị giác, vừa tạo sự tương phản tinh tế với gam màu trung tính chủ đạo như trắng, xám và ghi. Xen kẽ giữa các tầng là những ban công xanh được bố trí cây cảnh, tiểu cảnh hợp lý, giúp mặt tiền trở nên sinh động, mềm mại hơn, đồng thời góp phần cải thiện vi khí hậu và giảm bớt cảm giác khô cứng của kiến trúc bê tông.

Trên cùng, khu vực sân thượng với mái kính hiện đại được thiết kế như một điểm kết thúc hoàn chỉnh cho mặt đứng công trình. Mái kính không chỉ giúp lấy sáng, che mưa nắng mà còn tạo nên vẻ ngoài cao cấp, thời thượng, phù hợp với xu hướng kiến trúc đô thị mới. Khi nhìn tổng thể, mặt tiền ngôi nhà là sự hòa quyện hài hòa giữa tính thẩm mỹ, công năng kinh doanh và không gian sống xanh, vừa đủ nổi bật để thu hút ánh nhìn giữa phố xá đông đúc, vừa đủ tinh tế để khẳng định gu thẩm mỹ và phong cách sống hiện đại của gia chủ.
2. Công năng sử dụng
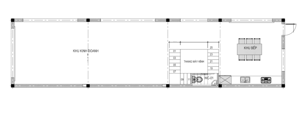
2.1. Tầng 1
+ Tầng 1: Khu kinh doanh + Bếp ăn + WC
.png?402)
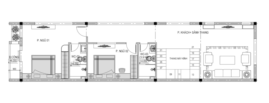
2.2. Tầng 2
+ Tầng 2: Phòng khách + Phòng ngủ khép kín + phòng ngủ + WC
.png?78)
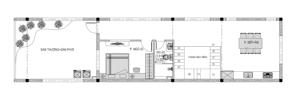
2.3. Tầng 3
.png?865)
