Nhà phố chữ L 3 tầng hiện đại mang phong cách khỏe khoắn - Chủ đầu tư: Anh Thái, Hải Dương
Nhà chữ L 3 tầng hiện đại với phong cách thiết kế đa dạng đang được nhiều gia chủ quan tâm và yêu thích. Hơn nữa, đây là kiểu thiết kế giúp bạn bố trí được nhiều phòng chức năng khác nhau để tận dụng tối đa không gian trong nhà.
Dưới đây là mẫu nhà của gia đình anh Thái tại Hải Dương, các bác hãy cùng Việt Home ngắm nhìn ngôi nhà nhé!
1. Phối cảnh 3D mặt tiền
Chủ đầu tư: Anh Thái
- Địa điểm xây dựng: Hải Dương.
- Công năng sử dụng:
+ Tầng 1: Phòng khách + Thờ, Phòng Bếp + Ăn, 1 Phòng ngủ Master, Sân ướt, 1 WC.
+ Tầng 2: 1 Phòng ngủ Master, 2 Phòng ngủ thường, Kho, 1 WC.
+ Tầng 3: 1 Phòng ngủ Master, 2 Phòng ngủ thường, 1 WC.

Mẫu nhà đẹp 3 tầng hình chữ L được thiết kế với những đường nét khỏe khoắn, trẻ trung phù hợp với không gian sống hiện đại ngày nay. Thiết kế hệ mái bằng thông minh mà tràn đầy sức sống. Cùng với tông màu trắng, nâu và xám được kết hợp hài hòa. Những đường thẳng kết hợp chất liệu kính, mảng tường tạo cảm giác thông thoáng, rộng rãi nhưng không hề đơn điệu.
Mặt tiền của ngôi nhà thiết kế ốp gạch nghệ thuật với những mảng màu và mảng khối. Bố cục ngôi nhà được thiết kế theo phong cách khỏe khoắn, càng toát lên sự tinh tế và cuốn hút của ngôi nhà.
Ban công màu đen với hệ thống sắt vô cùng vững chãi, và được trồng thêm nhiều cây xanh tạo cảm giác thoáng đãng, tươi trẻ, gần gũi với thiên nhiên. Từ đó tạo nên một ngôi nhà vô cùng đáng sống.
2. Công năng sử dụng
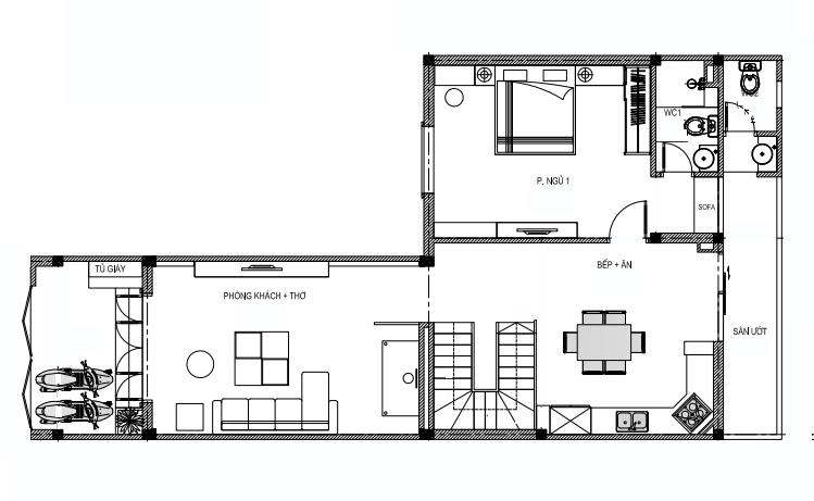
2.1. Tầng 1
Tầng 1: Phòng khách + Thờ, Phòng Bếp + Ăn, 1 Phòng ngủ Master, Sân ướt, 1 WC

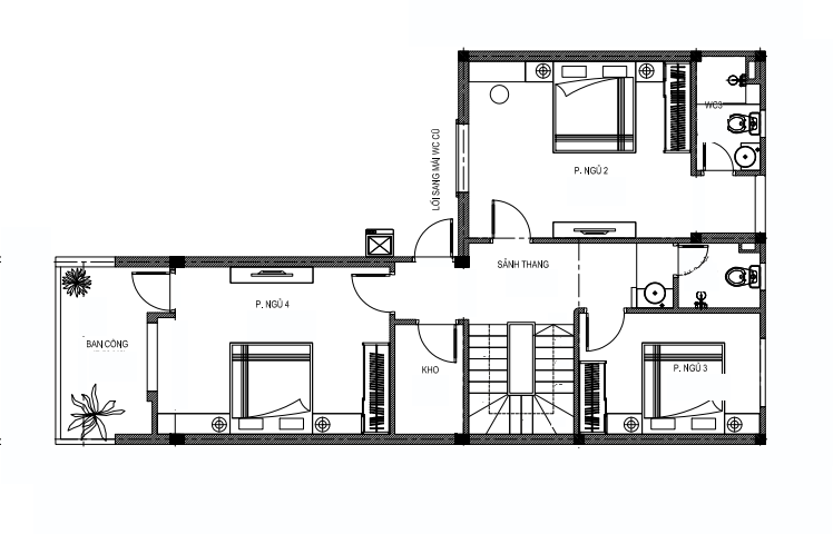
2.2. Tầng 2
Tầng 2: 1 Phòng ngủ Master, 2 Phòng ngủ thường, Kho, 1 WC.

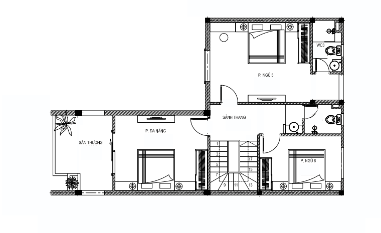
2.3. Tầng 3
Tầng 3: 1 Phòng ngủ Master, 2 Phòng ngủ thường, 1 WC.

3. Hình ảnh thi công thực tế
Mẫu nhà phố 3 tầng hiện đại của gia đình anh Thái đang được thi công:



Nếu các bác thích mẫu nhà phố như bên em vừa giới thiệu thì hãy nhắn tin hoặc gọi điện thoại trực tiếp cho Việt Home để được tư vấn nhé!
