Nhà phố 3 tầng hiện đại kết hợp kinh doanh - Chủ đầu tư: Anh Tịnh, Hà Nội
Nằm trong một khu vực đông dân cư của thành phố Hà Nội, dự án thiết kế nhà phố mặt tiền 5m được các KTS của Việt Home triển khai, biến một khu đất có nhiều hạn chế về không gian và các yếu tố bên ngoài thành một không gian sống xanh đầy tối ưu…
1. Phối cảnh 3D mặt tiền
- Chủ đầu tư: Anh Tịnh
- Địa điểm xây dựng: Chương Mỹ, Hà Nội
- Tên công trình: Nhà phố 3 tầng hiện đại
- Diện tích: 5x15,6M
- Công năng sử dụng:
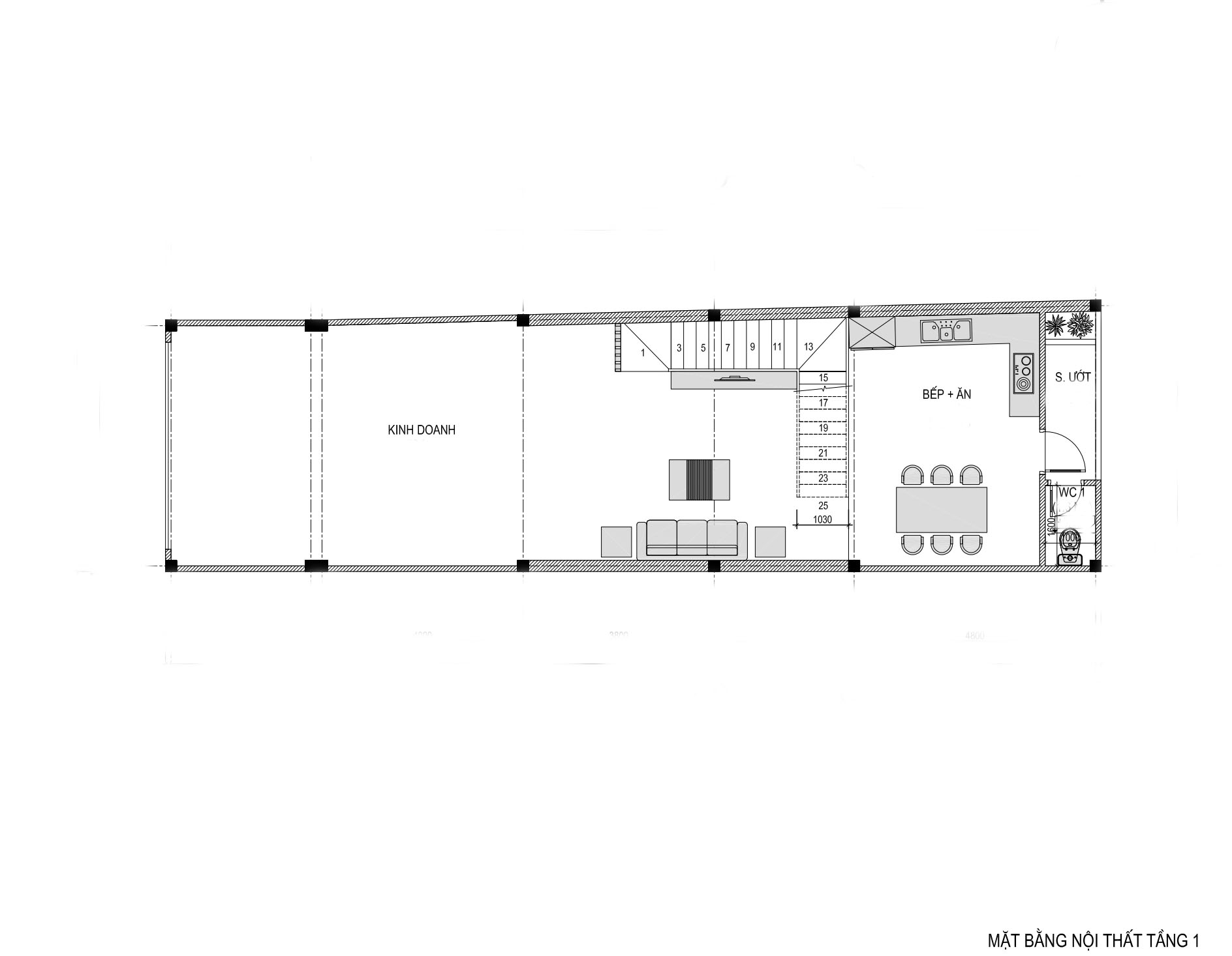
+ Tầng 1: Khu kinh doanh + Phòng khách + Phòng bếp ăn + Sân ướt + 1WC
+ Tầng 2: Phòng ngủ master + 2 Phòng ngủ thường + Sân chơi + 1WC
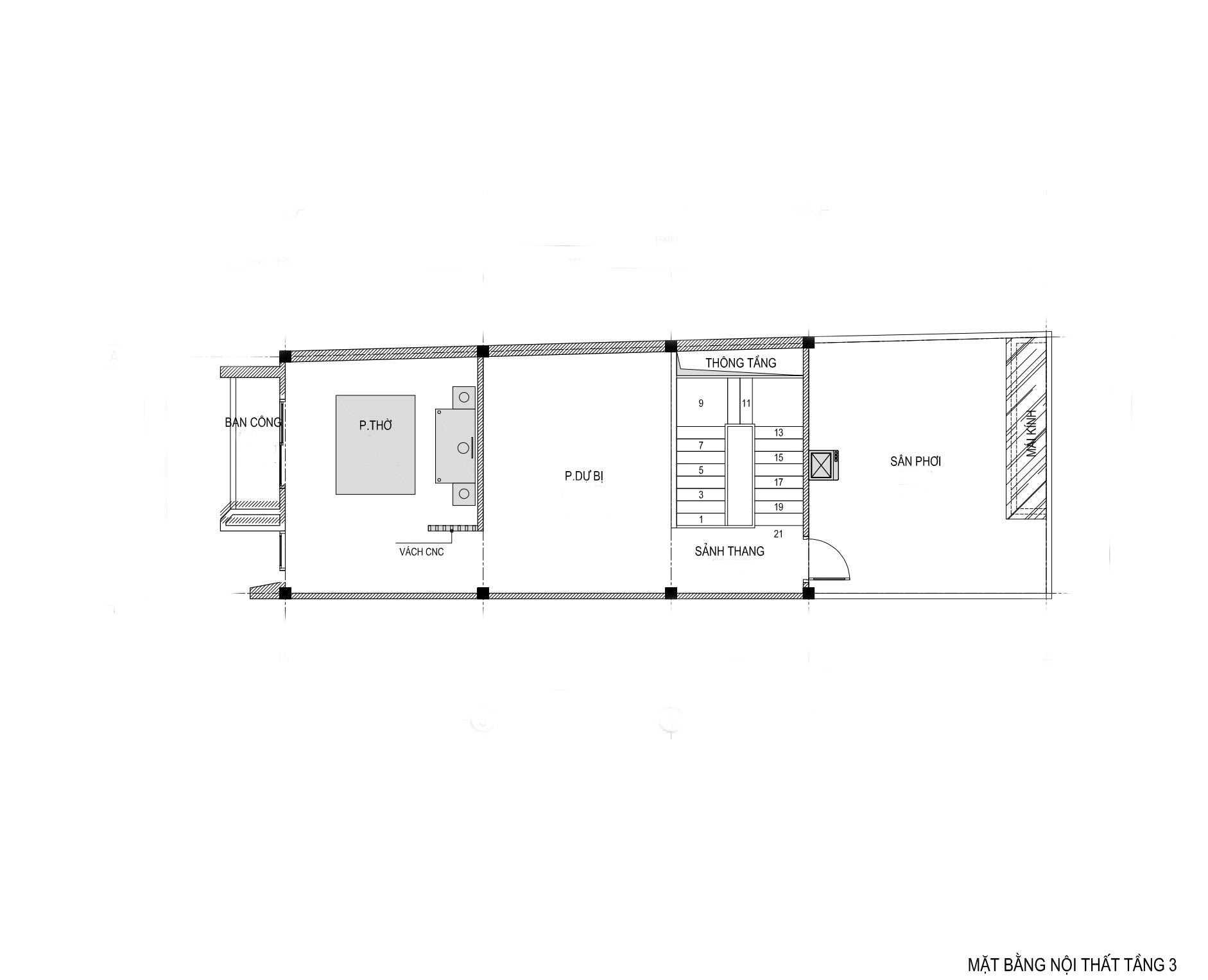
+ Tầng 3: Phòng thờ + Phòng dự bị + Sân phơi

Tận dụng lợi thế mặt phố, tầng 1 được bố trí làm khu kinh doanh nhỏ. Với mặt tiền nhỏ 5m, mặt tiền ngôi nhà được thiết kế nhiều cây xanh ở ban công tạo không khí thoáng mát.
Gam màu được lựa chọn là gam màu hơi trầm đúng theo phong cách hiện đại, tối giản nhưng không đơn điệu.
Tầng 1 mặt trước được KTS thiết kế lát đá trông sang trọng, lạ mắt.
Hệ thống cửa ban công được làm bằng kính cường lực giúp lấy sáng tốt cho không gian ngôi nhà.
2. Hình công bố trí công năng
2.1. Tầng 1

2.2. Tầng 2

2.3. Tầng 3

