Nhà phố 3 tầng hiện đại kết hợp kinh doanh - Anh Thông Thái Nguyên
Sở hữu lô đất mặt phố là ưu điểm vô cùng lớn để gia chủ có thể tận dụng kinh doanh, tăng thêm gia trị lô đất. Anh Thông cũng là 1 trong số những gia chủ may mắn đó khi có lô đất đẹp, nằm ở ngay mặt đường trung tâm thành phố Thái Nguyên. Anh đã quyết định xây dựng nhà ở và kết hợp kinh doanh cafe ở tầng 1. Nắm bắt được điều này, KTS Việt Home nghiên cứu để lên thiết kế và bố trí công năng các tầng sao cho phù hợp nhất.
1. Phối cảnh mặt tiền
Mẫu nhà được thiết kế theo phong cách hiện đại, mang đến sự trẻ trung, hiện đại và phóng khoáng.

2. Bố trí công năng các tầng
2.1. Bố trí tầng 1
Tầng 1: Khu kinh doanh Cafe + Quầy Bar + Sân khấu, Bếp, WC
Sảnh tầng 1 bố trí khu kinh doanh cafe. Với mặt tiền 4,5m, phía trong sắp xếp 2 bộ bạn ghế vừa xinh và bên trong là khu sân khấu dành cho những khán giả yêu thích ca hát hoặc phục vụ quán tổ chức đêm nhạc. Đối diện là khu pha chế đồ cho khách.
Ngăn cách bởi ô cầu thang bên trong là phòng bếp. Khu bếp vừa để đồ cho quán, vừa là phòng bếp nấu nướng của gia đình.

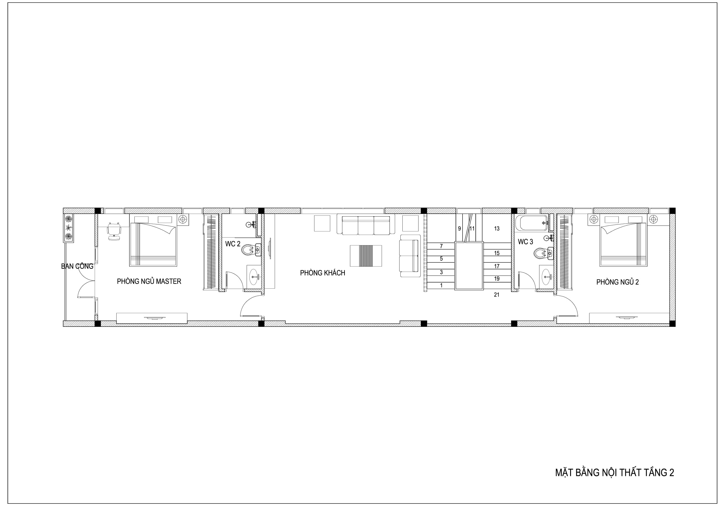
2.2. Bố trí tầng 2
Tầng 2: Phòng khách, 2 Phòng ngủ, 2 WC
Di chuyển từ tầng 1 lên là phòng khách. Phòng khách được bố trí cạnh cầu thang thuận tiện cho việc đón tiếp khách khứa.
Tầng 2 có 2 phòng ngủ, trong đó có 1 phòng master khép kín dành cho vợ chồng anh Thông.
Ngoài ra, tầng 2 còn được bố trí thêm 1 wc phù hợp cho sinh hoạt trong gia đình và dành cho khách.

2.3. Bố trí công năng tầng 3
Tầng 3: Phòng làm việc, Phòng thờ, 1 Phòng ngủ, Sân phơi, Sân chơi

3. Hình ảnh thi công thực tế



