Nhà Phố 3 Tầng 1 Tum - Khi Kiến Trúc Hiện Đại Hòa Quyện Cùng Thiên Nhiên - CĐT: Mr Sâm - Hải Phòng
1. Phối cảnh 3D mặt tiền
- Chủ đầu tư: Mr Sâm
- Địa điểm xây dựng: Hải Phòng
- Công năng sử dụng:
+ Tầng 1: Gara + Phòng khách + Bếp ăn + WC
+ Tầng 2: Phòng ngủ khép kín + 2 phòng ngủ + WC
+ Tầng 3: Phòng thờ + Phòng ngủ + WC + sân phơi
+ Tầng tum: phòng tiện ích + Kho + Sân thượng

Mặt tiền ngôi nhà phố 3 tầng 1 tum được chăm chút kỹ lưỡng trong từng đường nét, thể hiện rõ tinh thần kiến trúc hiện đại kết hợp xu hướng sống xanh giữa đô thị. Tổng thể công trình nổi bật với hình khối bất đối xứng, các mảng tường được tạo hình uốn cong mềm mại, giúp giảm cảm giác khô cứng và mang lại sự uyển chuyển, nhẹ nhàng cho mặt đứng. Gam màu trắng sáng được sử dụng làm chủ đạo, đóng vai trò nền hoàn hảo để tôn lên các chi tiết ốp đá và vật liệu hoàn thiện màu tối, tạo nên sự tương phản thị giác rõ ràng, sang trọng nhưng không phô trương. Hệ ban công được thiết kế vươn nhẹ ra phía trước, sử dụng lan can kính cường lực trong suốt kết hợp khung kim loại mảnh, vừa đảm bảo an toàn vừa giúp mặt tiền trở nên thoáng đãng, hiện đại và mở rộng tối đa tầm nhìn

Các tầng được phân chia bằng những đường gờ ngang tinh tế, giúp công trình có tỷ lệ cân đối và chiều cao được nhấn mạnh một cách hài hòa. Điểm nhấn nổi bật nhất của mặt tiền chính là hệ thống cây xanh được bố trí đan xen tại các ban công và tầng thượng, với nhiều chủng loại cây khác nhau, tạo nên lớp “mặt tiền xanh” sinh động, giúp làm mềm các mảng bê tông và mang thiên nhiên hòa vào kiến trúc. Tầng thượng được thiết kế như một khu vườn trên cao với bồn cây lớn, kết hợp hệ lam và mái che nhẹ, không chỉ tăng giá trị thẩm mỹ mà còn góp phần che nắng, giảm nhiệt cho toàn bộ ngôi nhà. Hệ cửa kính lớn bố trí dọc mặt tiền giúp tận dụng tối đa ánh sáng tự nhiên, đồng thời tạo sự kết nối liền mạch giữa không gian nội thất và cảnh quan bên ngoài. Tất cả các yếu tố từ hình khối, màu sắc, vật liệu đến cây xanh đều được kết hợp hài hòa, tạo nên một mặt tiền nhà phố 3 tầng 1 tum hiện đại, tinh tế, giàu chiều sâu và thể hiện rõ phong cách sống đẳng cấp của gia chủ.
2. Công năng sử dụng
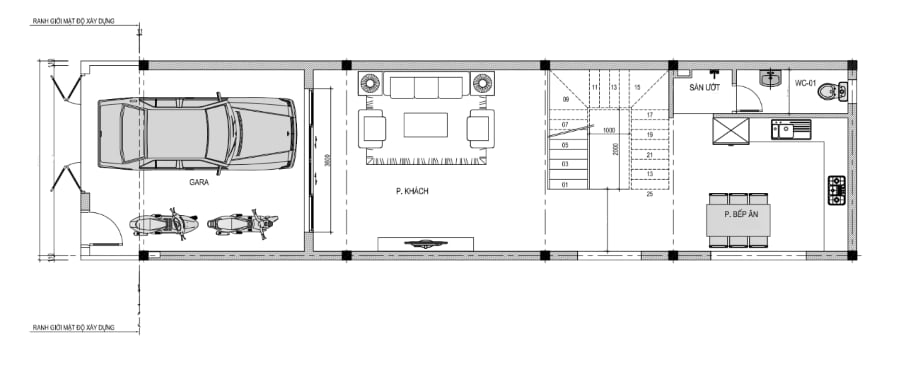
2.1. Tầng 1
+ Tầng 1: Gara + Phòng khách + Bếp ăn + WC
.png?880)
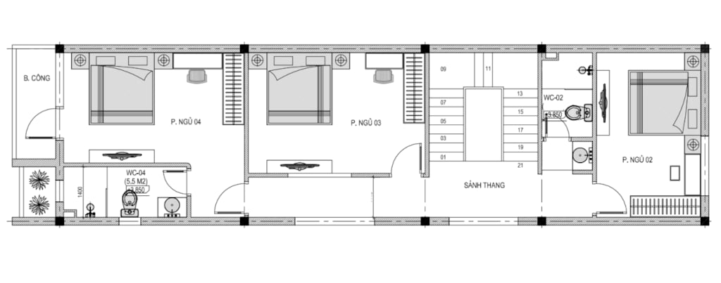
2.2. Tầng 2
+ Tầng 2: Phòng ngủ khép kín + 2 phòng ngủ + WC
.png?508)
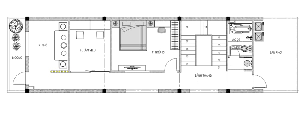
2.3. Tầng 3
+ Tầng 3: Phòng thờ + Phòng ngủ + WC + sân phơi
.png?153)
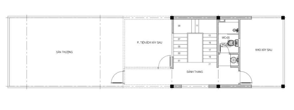
2.4. Tầng tum
+ Tầng tum: phòng tiện ích + Kho + Sân thượng
.png?270)
