Nhà Phố 2 Tầng Hiện Đại, Mặt Tiền Đẹp Từng Đường Cong - Chủ đầu tư: Anh Quang, Hòa Bình
1. Phối cảnh 3D mặt tiền
Chủ đầu tư: Anh Quang
Địa điểm xây dựng: Hòa Bình
Công năng sử dụng:
+ Tầng 1: Phòng khách + Phòng bếp + 1 Phòng ngủ + wc
+ Tầng 2: Phòng thờ + 1 Phòng ngủ master + 2Phòng ngủ thường + 1 WC
.jpg?110)
Ngôi nhà được thiết kế với các đường nét mềm mại, tạo điểm nhấn khác biệt so với những mẫu nhà phố thông thường. Gam màu trắng chủ đạo kết hợp cùng các chi tiết trang trí tinh tế giúp tổng thể công trình trở nên nổi bật và thanh lịch.
Điểm nổi bật của mẫu nhà này chính là thiết kế mặt tiền mềm mại với các đường cong độc đáo. Kiến trúc sư đã khéo léo kết hợp giữa hình khối hiện đại và các chi tiết trang trí nhẹ nhàng để tạo nên một tổng thể hài hòa. Ban công tầng 2 được thiết kế rộng rãi với lan can kính cường lực, vừa đảm bảo tính thẩm mỹ vừa giúp không gian trở nên thoáng đãng hơn.
Khu vực ban công còn được bố trí thêm cây xanh, mang lại cảm giác gần gũi với thiên nhiên và tạo điểm nhấn sinh động cho mặt tiền ngôi nhà. Phần mái hiên được thiết kế với hệ trần gỗ kết hợp đèn trang trí, giúp tăng thêm sự sang trọng và ấm cúng cho không gian ngoại thất.

2. Hình ảnh bố trí công năng
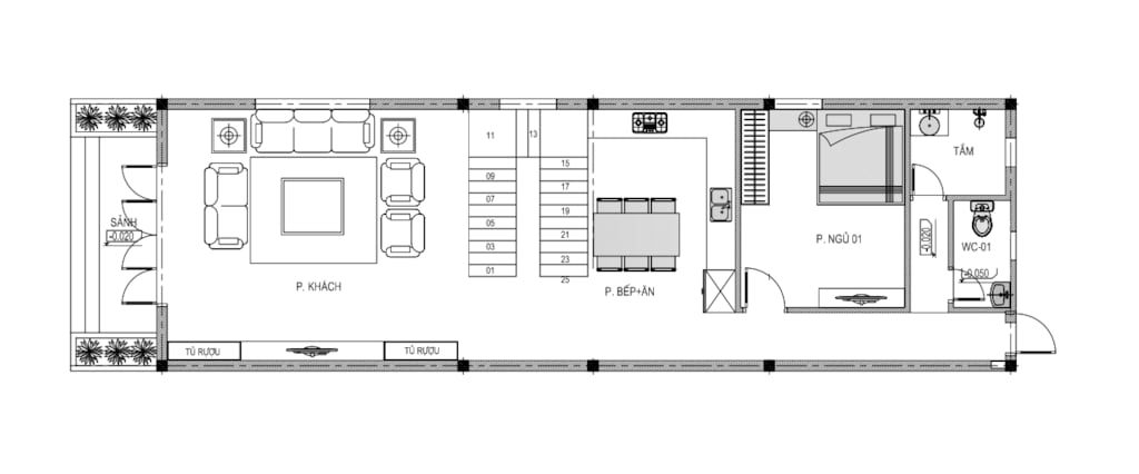
2.1. Tầng 1
Phòng khách + Phòng bếp + 1 Phòng ngủ + wc
.png?461)
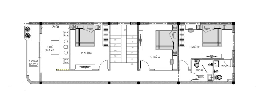
2.2. Tầng 2
+ Tầng 2: Phòng thờ + 1 Phòng ngủ master + 2Phòng ngủ thường + 1 WC
.png?628)
3. Hình ảnh thi công thực tế
.png?807)
.png?999)
