Nhà đẹp hiện đại khiến bao người vấn vương - Chủ nhân anh Thắng, Hải Dương
Nhà 2 mặt tiền có giá trị lớn không chỉ về kinh doanh mà còn mang lại sự thông thoáng, lưu thông gió, sinh khí cho căn nhà. Sở hữu mảnh đất lô góc, anh Thắng mong muốn tìm kiếm đơn vị thiết kế cho căn nhà của mình sao cho nổi bật, ấn tượng và đảm bảo đủ công năng cho các thành viên trong gia đình.
Cùng tim hiểu mẫu nhà anh Thắng tại Hải Dương trong bài viết ngày hôm nay nhé!
1. Phối cảnh mặt tiền
Nhà phố được tạo nên bởi các hình khối đơn giản, vuông vức. Bởi vậy, khi lên tổng thể căn nhà sẽ đơn giản, không cần kì, rườm rà mà vẫn thể hiện được sự chắc chắn, kiên cố.

Nhà anh Thắng xây dựng theo phong cách hiện đại. Bởi vậy, toàn hộ hệ cửa được làm bằng kính. Cửa chính sử dụng 2 lớp, trong có là 1 lớp cửa cuốn chống trộm nên đảm bảo tối đa sự an toàn cho gia đình.
Nếu như các căn nhà phố thông thường khi vào nhà sẽ bị bí bách thì nhà anh Thắng vẫn sẽ thông thoáng bởi cả 2 mặt tiền đều được thiết kế cửa sổ.
Anh Thắng lựa chọn màu sơn trắng là màu sắc nhẹ nhàng. Không chỉ mang lại vẻ đẹp tinh tế mà còn vô cùng hiện đại, trẻ trung.


2. Bố trí công năng sử dụng
2.1. Bố trí công năng tầng 1
Gara + Phòng khách + Bếp ăn + 1 WC

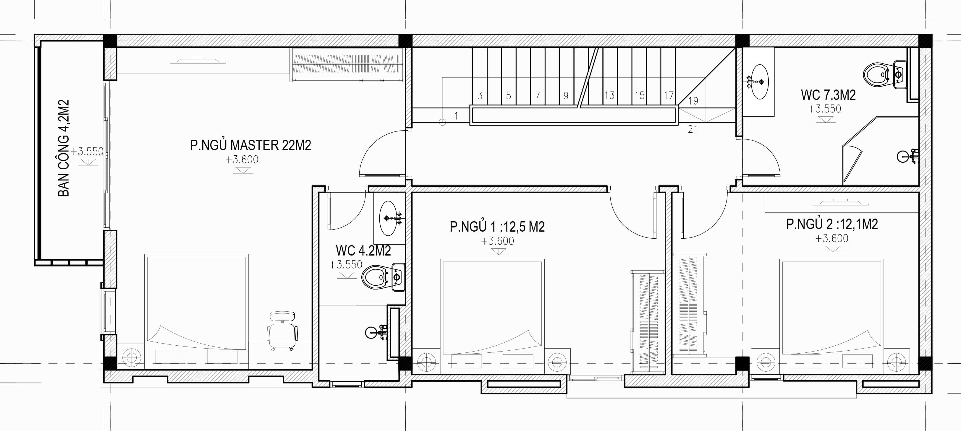
2.2. Bố trí công năng tầng 2
3 Phòng ngủ + 2 WC + Ban công

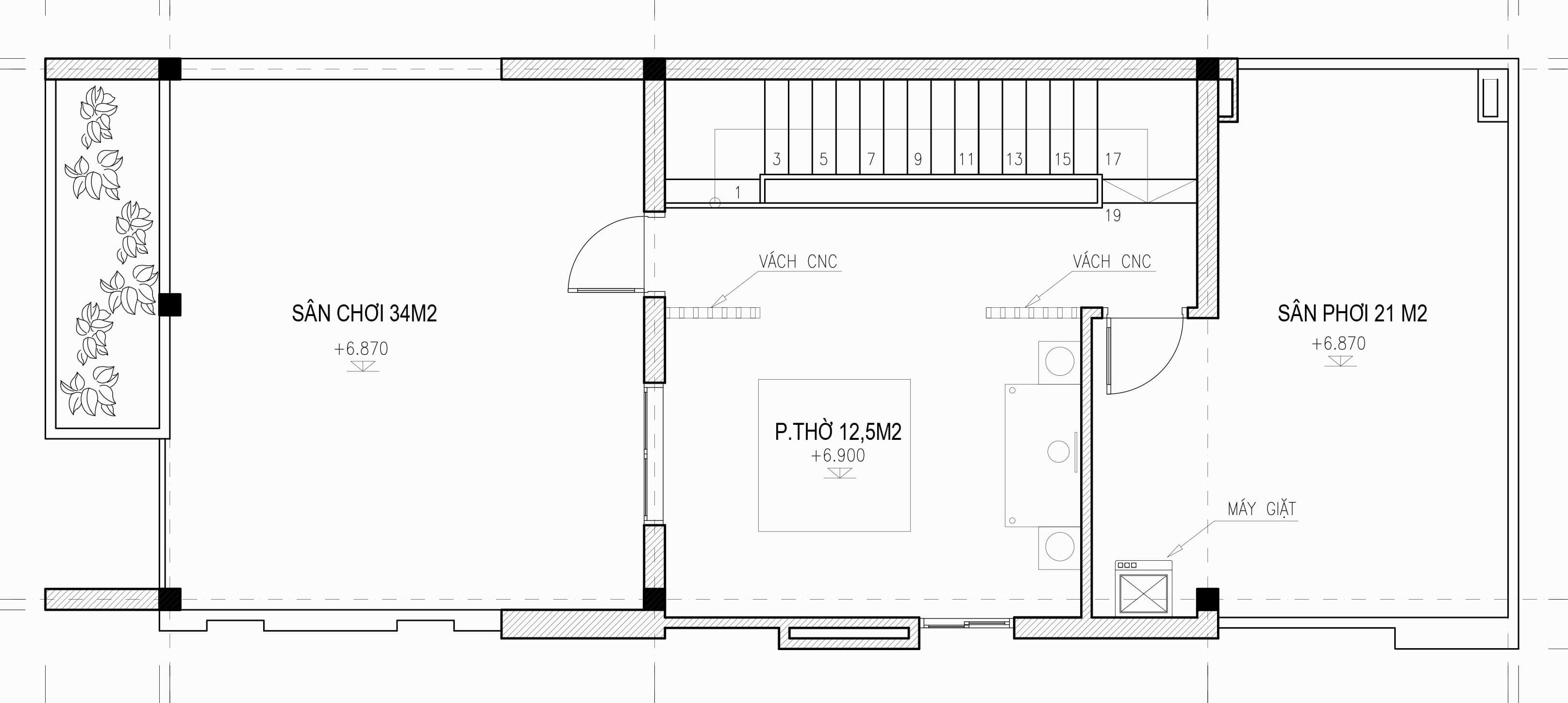
2.3. Bố trí công năng tầng 3
Phòng thờ + Sân chơi + Sân phơi

📌📌📌#VIET_HOME THIẾT KẾ THI CÔNG TRỌN GÓI ƯU ĐÃI LỚN
🎁 Miễn phí 💯 chi phí thiết kế khi thi công trọn gói
🎁 Miễn phí 💯 tư vấn & Phong thủy
🎁 Sau khi thiết kế và thi công trọn gói, khách hàng được tặng kèm: Điều hòa, tủ lạnh, bếp từ....
👩💻Lên phương án mặt bằng & phối cảnh cho đến khi nào khách hàng hài lòng
👩💻 Hồ sơ kỹ thuật đầy đủ, dễ hiểu, dễ thi công xây dựng
🏆 Cam kết tiến độ và chất lượng công trình
🏆🏆🏆 Đã triển khai thực tế nhiều công trình trên toàn quốc: Hà Nội, Nam Định, Yên Bái, Thái Bình...Giám sát tư vấn đến khi hoàn thiện công trình
👉👉 ĐỂ LẠI THÔNG TIN ĐỂ ĐƯỢC TƯ VẤN MIỄN PHÍ!!!
☎️ 0912 30 11 85
