Ngôi nhà 3 tầng hiện đại mang vẻ đẹp mềm mại và đầy cảm xúc của chủ đầu tư anh Hợp tại Bắc Ninh
1. Phối cảnh 3D mặt tiền
Chủ đầu tư: Anh Hợp
- Địa điểm xây dựng: Bắc Ninh
- Công năng sử dụng:
Tầng 1: Gara + Phòng khách + Bếp + 1 Phòng ngủ + WC
Tầng 2: Phóng SHC + 2 Phòng ngủ + Phòng ngủ master + WC
Tầng 3: Phòng thờ + Phòng học + Kho + WC

Ngôi nhà của gia đình anh Hợp là công trình nhà phố 3 tầng, được thiết kế theo tinh thần hiện đại, kết hợp giữa các hình khối vuông vức quen thuộc và một đường cong uốn lượn tại ban công tầng 2 một chi tiết tuy nhỏ nhưng đủ để khiến công trình nổi bật và giàu cảm xúc hơn. Chính sự mềm mại bất ngờ này đã phá vỡ sự đơn điệu của mặt tiền hình hộp thông thường, đồng thời gợi nên một cảm giác gần gũi, duyên dáng cho tổng thể công trình.
Điểm nhấn này không chỉ mang giá trị thẩm mỹ mà còn thể hiện rõ tinh thần “cá nhân hóa” nơi kiến trúc không rập khuôn mà phản ánh đúng gu thẩm mỹ riêng biệt của gia chủ. Mặt tiền ngôi nhà còn ghi điểm nhờ sự phối hợp hài hòa giữa các vật liệu hiện đại: kính, sơn nước và lam chắn nắng. Tổng thể tạo nên một diện mạo sang trọng nhưng vẫn giữ được sự cân bằng và tinh tế.

Một trong những giá trị nổi bật của ngôi nhà phố 3 tầng chính là sự thoáng sáng điều kiện sống lý tưởng trong bối cảnh nhà phố hiện đại. Công trình ứng dụng thiết kế mở với các hệ cửa kính lớn, ban công rộng và ô thông tầng được tính toán kỹ lưỡng để đón nắng, đón gió tự nhiên.
Ban ngày, ánh sáng tràn ngập các khu vực chức năng chính, hạn chế tối đa nhu cầu dùng đèn điện. Gió được luân chuyển theo chiều dọc thông tầng và theo chiều ngang qua các hệ cửa, tạo ra môi trường sống dễ chịu quanh năm
Bên cạnh đó, các khu vực ban công, sân thượng đều được trồng thêm cây xanh để mang thiên nhiên len lỏi vào từng góc nhà. Sự hiện diện của mảng xanh dù chỉ là một bụi cây nhỏ, một chậu hoa đặt cạnh cửa cũng đủ để cân bằng cảm xúc, giúp ngôi nhà không chỉ là nơi ở mà là nơi thư giãn, nghỉ ngơi và tái tạo năng lượng.

Ngôi nhà phố 3 tầng của gia đình anh Hợp là minh chứng rõ ràng cho việc một công trình nhà phố hiện đại có thể dung hòa được giữa công năng sử dụng, cảm xúc sống và dấu ấn cá nhân. Từ hình khối kiến trúc đến chi tiết nội thất, tất cả đều góp phần tạo nên một tổ ấm thực sự đáng sống.
2. Công năng sử dụng
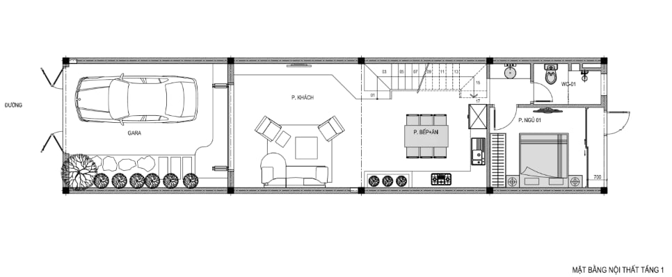
2.1. Tầng 1
Tầng 1: Gara + Phòng khách + Bếp + 1 Phòng ngủ + WC
.png?38)
2.2. Tầng 2
Tầng 2: Phóng SHC + 2 Phòng ngủ + Phòng ngủ master + WC
.png?511)
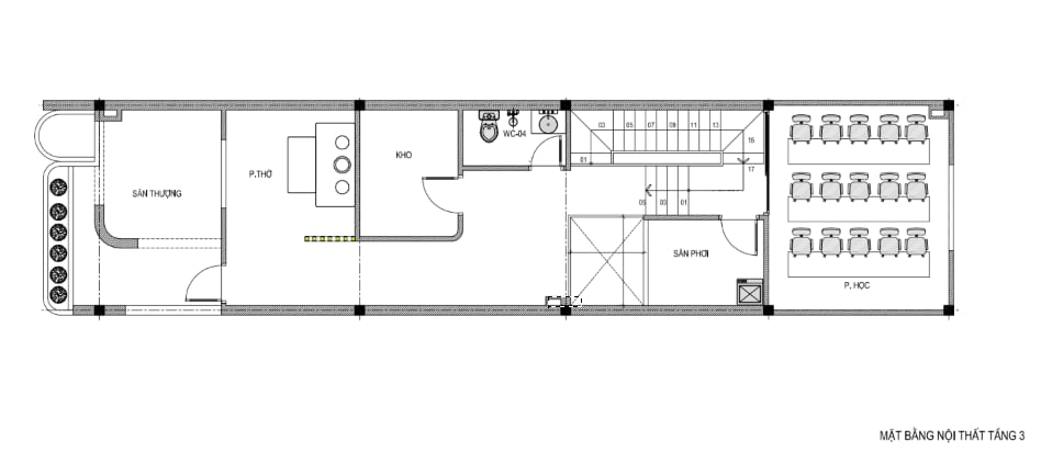
2.3. Tầng 3
Tầng 3: Phòng thờ + Phòng học + Kho + WC
.png?459)
