Ngắm nhìn mẫu 2 tầng mái thái 5 phòng ngủ đẹp mắt - Chủ đầu tư: Anh Bằng, Hải Phòng
1. Phối cảnh 3D mặt tiền
- Chủ đầu tư: Anh Bằng
- Địa điểm xây dựng: Hải Phòng
- Tên công trình: Biệt thự 2 tầng mái Thái
- Công năng sử dụng:
+ Tầng 1: Phòng khách + Phòng bếp ăn + 1 Phòng ngủ + 1 WC
+ Tầng 2: Khu vực SHC + 1 Phòng ngủ master + 3 Phòng ngủ thường + WC

Ngay từ ánh nhìn đầu tiên, mặt tiền rộng rãi tạo ấn tượng mạnh mẽ với gam màu trắng – xanh chủ đạo, tôn lên vẻ đẹp hiện đại và thanh lịch. Hệ mái Thái màu xanh than trầm sang trọng, dáng mái xuôi đa chiều không chỉ tôn lên vẻ thanh lịch mà còn mang lại hiệu quả chống nóng, thoát nước tối ưu – một giải pháp lý tưởng cho khí hậu Việt Nam.
Các ô cửa sổ, được thiết kế tối đa bằng kính vừa mang đến vẻ đẹp sang trọng, hiện đại, vừa tăng độ bền chắc theo thời gian. Nhờ chất liệu kính trong suốt, không gian bên trong luôn tràn ngập ánh sáng tự nhiên và đón nhận làn gió mát, tạo sự thông thoáng, dễ chịu cho ngôi nhà.
Các kiến trúc sư khéo léo bố trí những chậu tiểu cảnh và bồn hoa gọn gàng quanh nhà cũng như trên ban công, tạo nên không gian xanh tươi mát, giúp con người như được hòa mình với thiên nhiên. Sự kết hợp hài hòa giữa kiến trúc và cảnh quan không chỉ nâng tầm thẩm mỹ mà còn mang lại bầu không khí trong lành, thư giãn cho gia đình.
.jpg?567)
2. Bố trí công năng
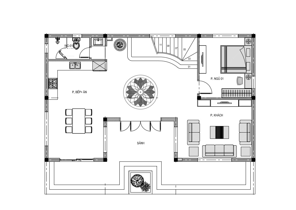
2.1. Bố trí công năng tầng 1
Phòng khách + Phòng bếp ăn + 1 Phòng ngủ + 1 WC
.png?957)
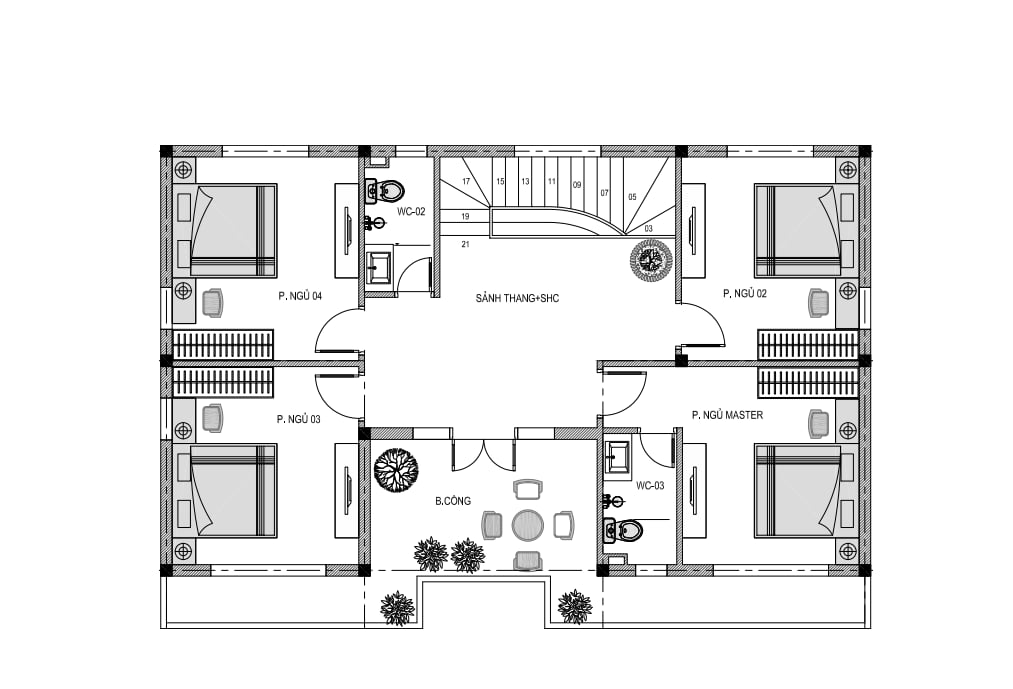
2.2. Bố trí công năng tầng 2
Khu vực SHC + 1 Phòng ngủ master + 3 Phòng ngủ thường + WC
.png?519)
