Nét đẹp tinh tế, hiện đại - Nhà phố 2.5 tầng anh Khanh, Hà Nội
Sở hữu lô đất mặt tiền 5m, anh Khanh sau khi được tư vấn đã quyết định lựa chọn xây dựng mẫu nhà phố. Thiết kế theo phong cách hiện đại vừa trẻ trung, phóng khoáng, vừa cân bằng kinh phí.
1. Phối cảnh mặt tiền
Với tiêu chí nhẹ nhàng, đơn giản nhưng vẫn đảm bảo công năng sử dụng, kiến trúc sư Việt Home đã thiết kế cho anh mẫu nhà dưới đây:


2. Bố trí công năng các phòng
2.1. Bố trí công năng tầng 1
Tầng 1: Phòng khách + Bếp + 1 Phòng ngủ + 2 WC

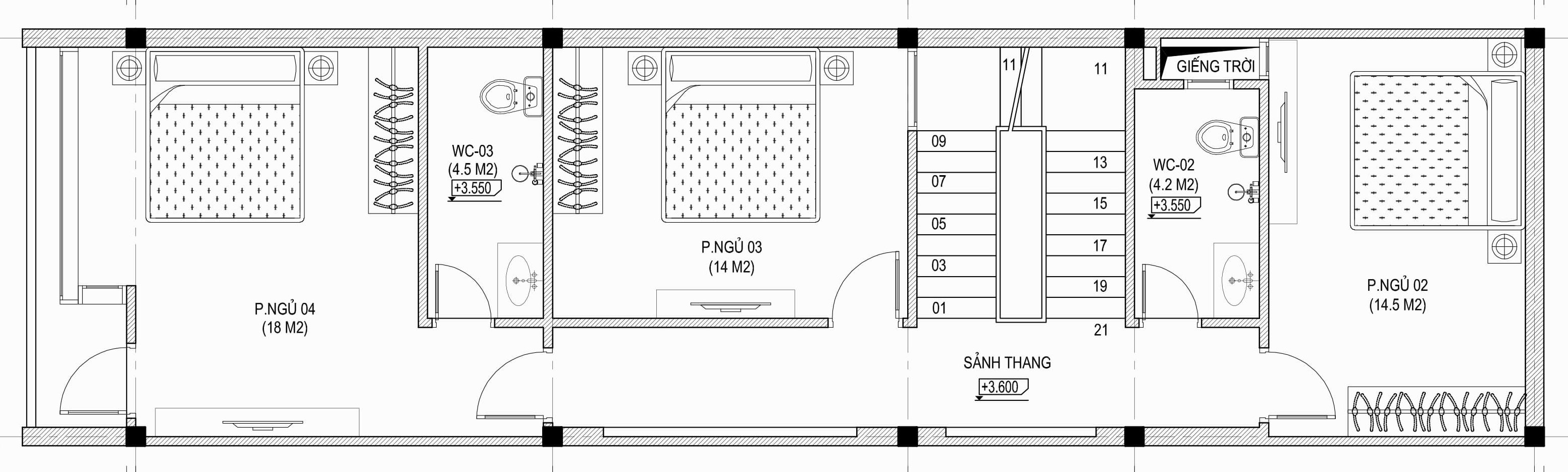
2.2. Bố trí công năng tầng 2
Tầng 2: 3 Phòng ngủ + 2 WC

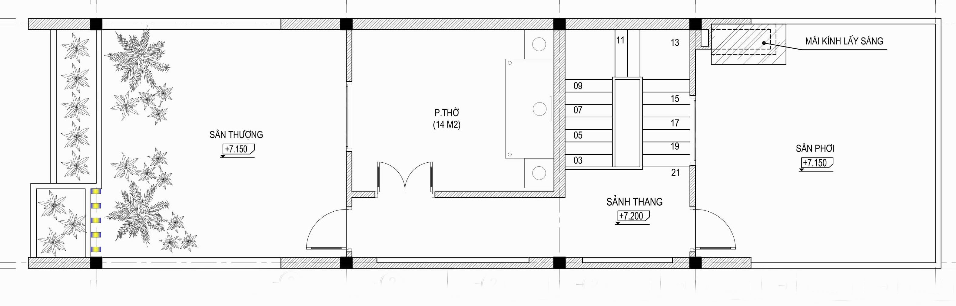
2.3. Bố trí công năng tầng tum
Tầng tum: Phòng thờ + Sân phơi

Bạn đang cần tư vấn và hỗ trợ thiết kế, liên hệ ngay chúng tôi qua hotline: 0912301185 để nhận tư vấn phù hợp nhất.
