Mẫu thiết kế nhà vườn mái thái - Anh Đạt, Nam Định
Anh Đạt là khách hàng trao đổi 1 thời gian dài với Việt Home. Anh là người kỹ lưỡng, tìm hiểu kỹ lưỡng mẫu nhà, chất lượng cũng như uy tín của các đơn vị thiết kế. Sau quá trình trao đổi, kiến trúc sư đã hoàn toàn thuyết phục để anh yên tâm giao lại thiết kế tổ ấm tương lại.
Cùng tìm hiểu kết quả thiết kế Việt Home hoàn thiện cho gia đình anh Đạt trong bài viết dưới đây nhé! cv
1. Phối cảnh 3D mặt tiền
- Chủ đầu tư: Anh Đạt
- Địa điểm xây dựng: Nam Định
- Tên công trình: Nhà vườn 1 tầng mái thái

Xây dựng trên khuôn đất rộng, anh Đạt lựa chọn mẫu nhà vườn mái thái. Đây là mẫu nhà được nhiều gia chủ tại ngoại thành lựa chọn bởi vẻ đẹp giản dị, thoáng mát lại phù hợp với điều kiện khí hậu tại nước ta.

Bậc tam cấp chuyển thành 5 bậc giúp tôn nền nhà mang đến sự cao ráo, sạch sẽ. Ngôi nhà còn 1 sảnh phụ vừa đảm bảo về phong thủy, vừa đem tới sự thông thoáng bên trong.

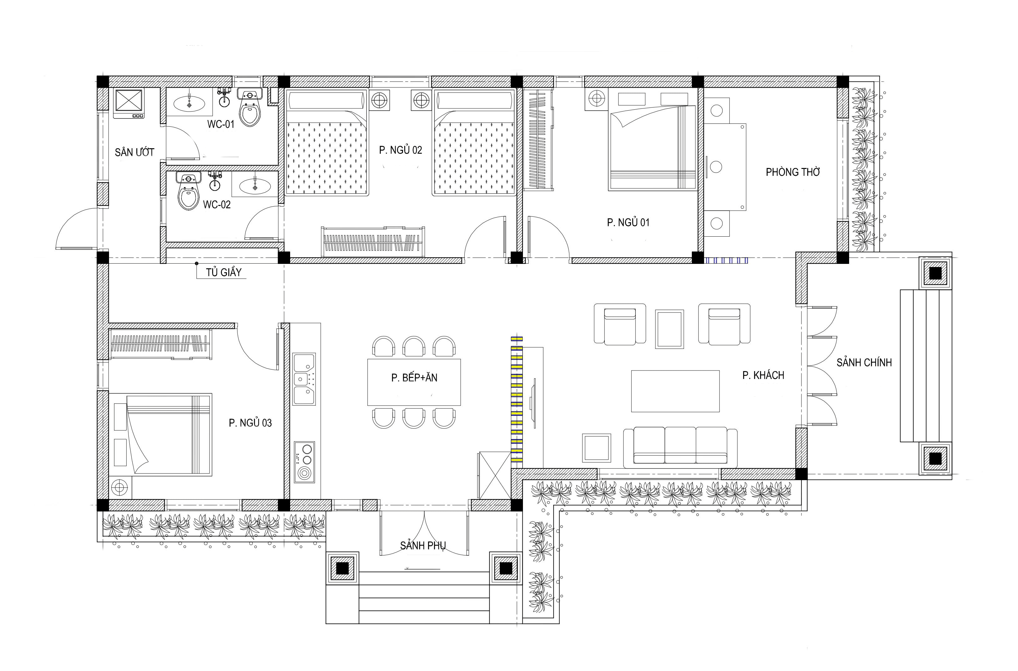
2. Bố trí công năng
Công năng: Phòng khách + Phòng thờ + Bếp + 3 Phòng ngủ + WC

Với nhiều kinh nghiệm trong lĩnh vực thiết kế và thi công nhà ở. Việt Home tự hào là đơn vị sở hữu nhiều công trình dân dụng mang tính thẩm mỹ và sử dụng cao. Bạn đang cần tìm đơn vị triển khai xây dựng mẫu nhà tương lai? Liên hệ ngay chúng tôi để được tư vấn phù hợp nhất.
