Mẫu Nhà Phố Kết Hợp Kinh Doanh Hiện Đại - CĐT: Anh Tú, Hưng Yên
1. Phối cảnh 3D mặt tiền
- Chủ đầu tư: Anh Tú
- Địa điểm xây dựng: Hưng Yên
- Công năng sử dụng:
Tầng 1: Khu vực kinh doanh + bếp + WC
Tầng 2: 1 Phòng ngủ khép kín + 2 Ngủ thường + 1 WC
Tầng 3: Phòng thờ + 1 Phòng ngủ + Sân phơi

Mẫu nhà phố kết hợp kinh doanh gây ấn tượng với hình khối rõ ràng, mái dốc cách điệu trẻ trung, phù hợp xu hướng kiến trúc đô thị hiện nay. Thiết kế mặt tiền gọn gàng nhưng vẫn nổi bật nhờ sự kết hợp hài hòa giữa màu trắng – xám – vật liệu gỗ trang trí, mang lại cảm giác sang trọng và chuyên nghiệp cho hoạt động kinh doanh.
Tầng 1 sử dụng hệ cửa cuốn kết hợp kính lớn, giúp không gian bên trong thông thoáng, dễ trưng bày sản phẩm và thu hút khách hàng.
Tầng 2 được bố trí không gian ở tách biệt hoàn toàn với khu kinh doanh phía dưới, đảm bảo sự riêng tư và yên tĩnh cho gia đình. Ban công rộng kết hợp lan can sắt nghệ thuật và mảng xanh tạo điểm nhấn, đồng thời giúp ngôi nhà luôn thông thoáng, đón nắng gió tự nhiên.

2. Công năng sử dụng
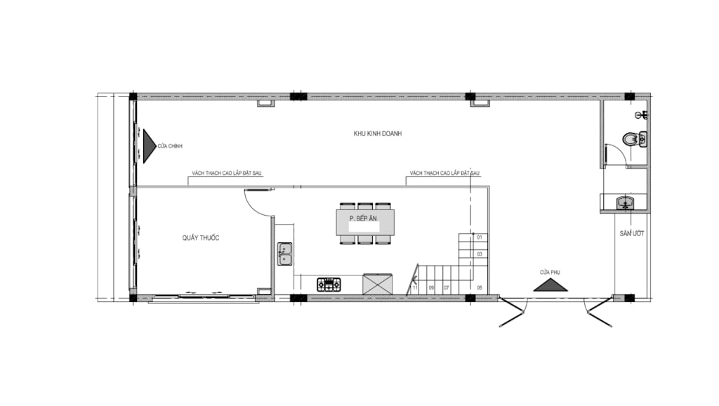
2.1. Tầng 1
Tầng 1: Khu vực kinh doanh + bếp + WC
.png?213)
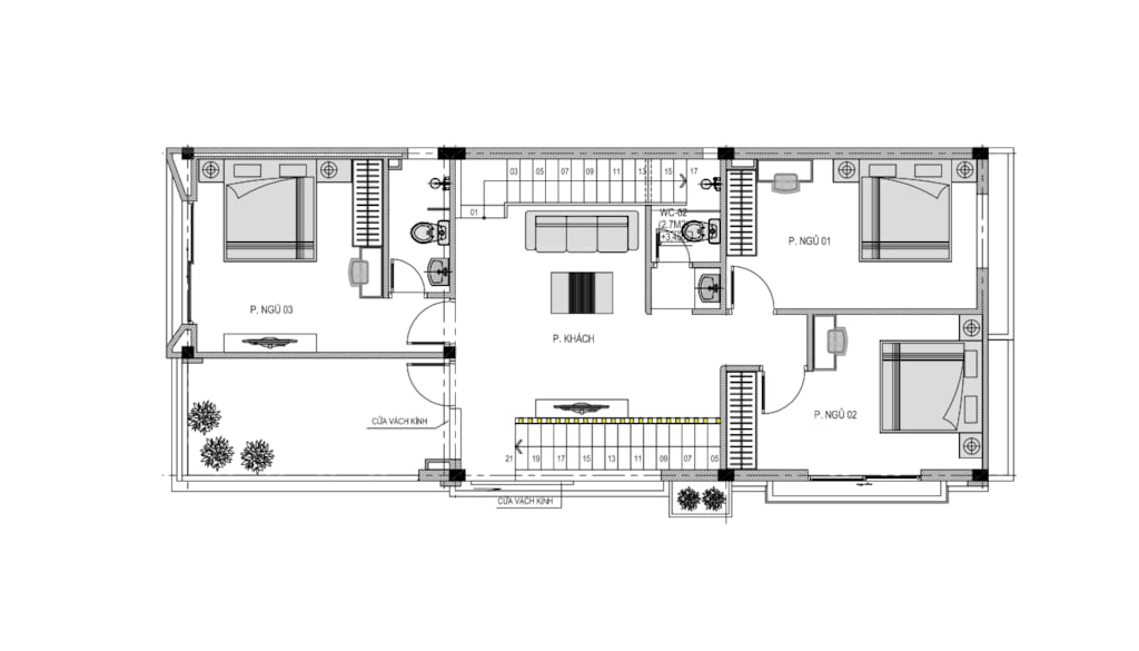
2.2. Tầng 2
Tầng 2: 1 Phòng ngủ khép kín + 2 Ngủ thường + 1 WC
.png?378)
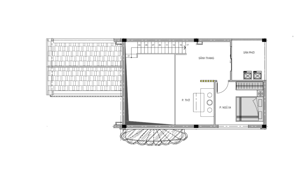
2.3. Tầng 3
Tầng 3: Phòng thờ + 1 Phòng ngủ + Sân phơi
.png?890)
