Mẫu Nhà Phố Hiện Đại Mặt Tiền 4 Tầng - Giải Pháp Không Gian Sống Đẳng Cấp Tại Đô Thị - CĐT: Mr. Ninh - Hà Nội
1. Phối cảnh 3D mặt tiền
- Chủ đầu tư: Mr Ninh
- Địa điểm xây dựng: Hà Nội
- Công năng sử dụng:
+ Tầng 1: Gara + Bếp ăn + WC
+ Tầng 2: Phòng khách + phòng ngủ + WC
+ Tầng 3: 2 Phòng ngủ + WC
+ Tầng 4: phòng thờ + Sân phơi

Mặt tiền ngôi nhà được thiết kế theo phong cách hiện đại với bố cục hình khối rõ ràng nhưng được làm mềm bằng các đường cong uyển chuyển, tạo nên dấu ấn kiến trúc khác biệt so với những mẫu nhà ống thông thường. Tổng thể công trình sử dụng gam màu trắng sáng làm chủ đạo, mang lại cảm giác tinh tế, thanh lịch và giúp ngôi nhà trông cao ráo, thoáng đãng hơn trên khu đất mặt tiền hẹp. Trên nền trắng ấy, kiến trúc sư khéo léo nhấn mạnh bằng các mảng tường ốp gạch tối màu vân đá, chạy dọc theo chiều cao công trình, vừa tạo điểm nhấn thị giác mạnh mẽ vừa tăng cảm giác chắc chắn, bền vững cho mặt đứng.
Điểm đặc biệt thu hút ánh nhìn nằm ở hệ ban công bo cong mềm mại, được xử lý tinh tế ở từng tầng, giúp mặt tiền trở nên uyển chuyển, giảm cảm giác khô cứng của kiến trúc nhà ống cao tầng. Các ban công được kết hợp với lan can gỗ nhựa màu nâu trầm và bồn cây xanh, tạo sự tương phản hài hòa về màu sắc, đồng thời mang thiên nhiên len lỏi vào từng không gian sống. Hệ cửa sổ và cửa ban công dạng vòm, khung kim loại sơn đen vừa mang hơi hướng nghệ thuật, vừa giúp tối ưu ánh sáng tự nhiên và khả năng thông gió cho ngôi nhà.

Phần tầng trệt được thiết kế vững chãi với cửa chính gỗ kết hợp kim loại, tạo cảm giác an toàn, sang trọng và bề thế. Khu vực này còn được nhấn nhá bằng đá ốp tối màu và hệ đèn hắt tường, giúp mặt tiền trở nên nổi bật và ấm cúng vào buổi tối. Trên cao, khu vực sân thượng được thiết kế mở, sử dụng lan can đơn giản, kết hợp trồng cây xanh, mang lại không gian thư giãn và cân bằng cho tổng thể kiến trúc. Nhìn chung, mặt tiền ngôi nhà là sự kết hợp hài hòa giữa đường nét hiện đại – vật liệu cao cấp – cây xanh và ánh sáng, thể hiện gu thẩm mỹ tinh tế, cá tính riêng của gia chủ, đồng thời đáp ứng tốt yêu cầu thẩm mỹ và công năng trong điều kiện đô thị chật hẹp.
2. Công năng sử dụng
2.1. Tầng 1
+ Tầng 1: Gara + Bếp ăn + WC
.png?248)
2.2. Tầng 2
+ Tầng 2: Phòng khách + phòng ngủ + WC
.png?757)
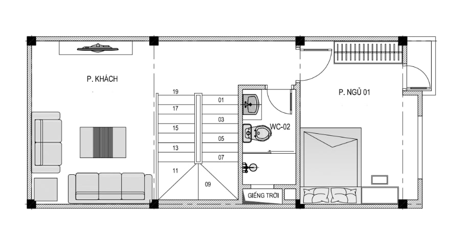
2.3. Tầng 3
+ Tầng 3: 2 Phòng ngủ + WC
.png?110)
2.4. Tầng 4
+ Tầng 4: phòng thờ + Sân phơi
.png?489)
