Mẫu nhà phố hiện đại ấn tượng tại Ninh Bình - Chủ đầu tư: Chị Huyền
1. Phối cảnh 3D mặt tiền
Chủ đầu tư: Chị Huyền
Địa điểm xây dựng: Ninh Bình
Công năng sử dụng:
+ Tầng 1: Gara + Phòng khách + Bếp + WC
+ Tầng 2: Khu vực SHC + 2 Phòng ngủ master
+ Tầng 3: Phòng thờ + 2 Phòng ngủ + WC
Công trình sở hữu mặt tiền rộng thoáng, đường nét kiến trúc được tổ chức gọn gàng, vuông vức và mạnh mẽ. Màu trắng chủ đạo kết hợp cùng các vật liệu cao cấp như đá ốp, lam gỗ nhựa và kính tạo nên tổng thể sang trọng, trẻ trung và bền vững theo thời gian.
Đặc biệt, thiết kế gara tại tầng 1 giúp gia chủ thuận tiện trong việc để xe và mở rộng không gian sinh hoạt.
.jpg?627)
Tầng 2 và tầng 3 đều có ban công rộng, sử dụng hệ cửa kính cong tinh tế – chi tiết khiến ngôi nhà trở nên khác biệt và mềm mại hơn.
Khối lam gỗ bao quanh không gian tầng 3 vừa tạo điểm nhấn độc đáo, vừa giúp che nắng, tăng sự riêng tư và cải thiện vi khí hậu cho khu vực phòng ngủ hoặc phòng sinh hoạt.
Với ngân sách đầu tư hợp lý, thiết kế đảm bảo hài hòa giữa tính thẩm mỹ và công năng, đây là lựa chọn hoàn hảo cho khách hàng tìm kiếm một tổ ấm hiện đại và tiện nghi.
2. Hình ảnh bố trí công năng
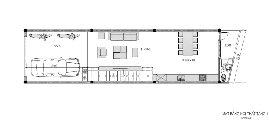
2.1. Tầng 1
Tầng 1: Gara + Phòng khách + Bếp + WC
.png?618)
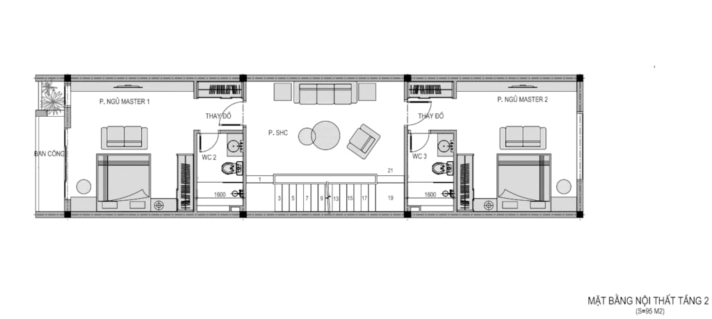
2.2. Tầng 2
Khu vực SHC + 2 Phòng ngủ master
.png?237)
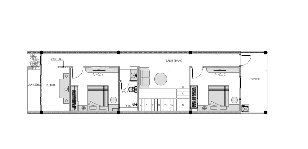
2.3. Tầng 3
Phòng thờ + 2 Phòng ngủ + WC
.png?219)
3. Hình ảnh thi công




Mẫu nhà ống 3 tầng phong cách hiện đại tại Ninh Bình không chỉ đẹp về thẩm mỹ mà còn mang đến sự tiện nghi, sang trọng và phù hợp với xu hướng kiến trúc hiện nay. Nếu bạn đang tìm kiếm một thiết kế tương tự hoặc muốn có phương án phù hợp với diện tích đất thực tế của mình, Việt Home sẵn sàng hỗ trợ.
