Mẫu Nhà Phố 4 Tầng Tân Cổ Điển Đẹp – Giải Pháp Hoàn Hảo Cho Đô Thị Hà Nội - CĐT: Mr. Vinh - Hà Nội
1. Phối cảnh 3D mặt tiền
- Chủ đầu tư: Anh Vinh
- Địa điểm xây dựng: Hà Nội
- Tên công trình: Nhà phố 4 tầng tân cổ điển
- Công năng sử dụng:
+ Tầng 1: Phòng khách + Bếp + WC
+ Tầng 2: 2 Phòng ngủ + WC
+ Tầng 3: 2 Phòng ngủ + WC
+ Tầng 4: Phòng thờ + San phơi + Sân thượng

Mặt tiền của ngôi nhà phố tân cổ điển 4 tầng gây ấn tượng mạnh ngay từ cái nhìn đầu tiên bởi vẻ đẹp thanh lịch, sang trọng nhưng không phô trương. Tổng thể công trình sử dụng gam màu trắng chủ đạo – màu sắc đặc trưng của phong cách tân cổ điển – giúp ngôi nhà nổi bật giữa dãy phố đô thị, đồng thời mang lại cảm giác tinh khôi và bền vững theo thời gian. Các chi tiết phào chỉ được thiết kế tinh giản, chạy dọc theo các tầng một cách cân đối, tạo nên nhịp điệu kiến trúc hài hòa, vừa đủ để tôn lên vẻ đẹp cổ điển mà không gây rối mắt. Hệ cột giả vuông vức, khỏe khoắn kết hợp cùng các mảng tường giật cấp nhẹ giúp mặt tiền trở nên cao ráo, bề thế hơn so với diện tích thực.

Mỗi tầng đều được bố trí ban công thoáng đãng với lan can sắt mỹ thuật hoa văn mềm mại, sơn đen nổi bật trên nền trắng, tạo điểm nhấn tương phản đầy tinh tế. Cửa kính khung tối màu được thiết kế rộng, không chỉ tăng khả năng đón ánh sáng tự nhiên mà còn mang lại nét hiện đại, cân bằng hoàn hảo với tinh thần tân cổ điển của công trình. Đặc biệt, việc bố trí cây xanh tại các ban công giúp mặt tiền trở nên sinh động, gần gũi với thiên nhiên, làm mềm đi các đường nét kiến trúc cứng cáp. Phần tầng trệt được ốp đá màu tối sang trọng, tạo cảm giác vững chãi và nâng tầm đẳng cấp cho toàn bộ ngôi nhà. Tất cả các yếu tố này hòa quyện lại, tạo nên một mặt tiền nhà phố tân cổ điển đẹp tinh tế, trang nhã và đầy cuốn hút, thể hiện rõ gu thẩm mỹ và vị thế của gia chủ giữa lòng đô thị hiện đại.
2. Hình ảnh bố trí công năng
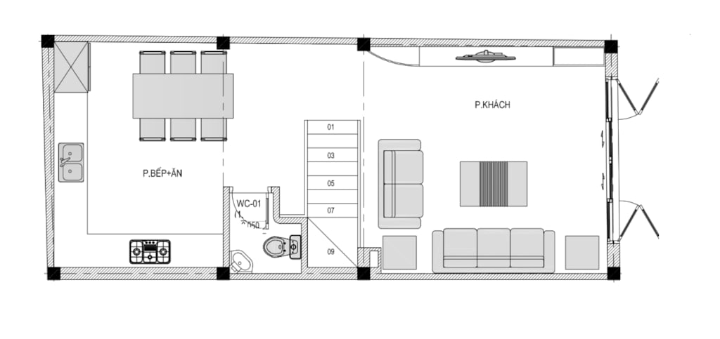
2.1. Tầng 1
+ Tầng 1: Phòng khách + Bếp + WC
.png?981)
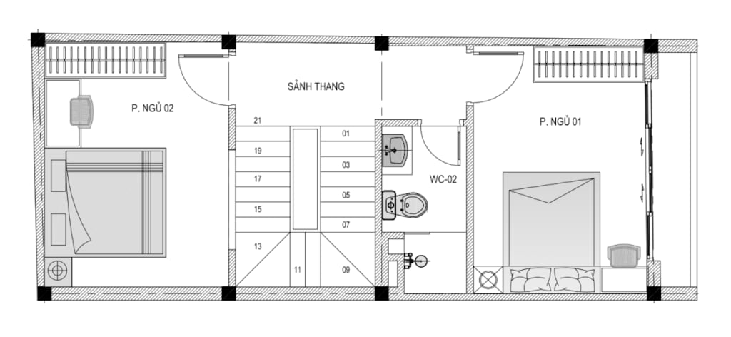
2.2. Tầng 2
+ Tầng 2: 2 Phòng ngủ + WC
.png?384)
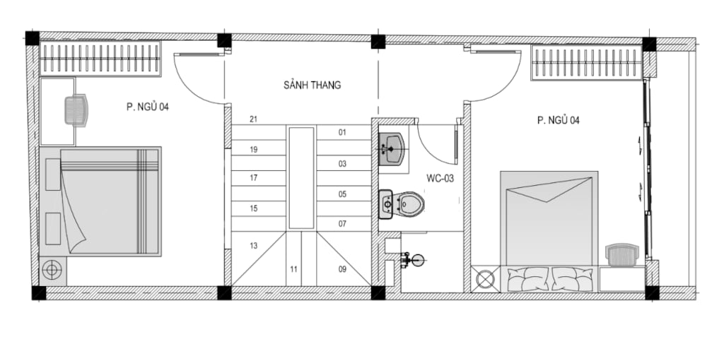
2.3. Tầng 3
+ Tầng 3: 2 Phòng ngủ + WC
.png?752)
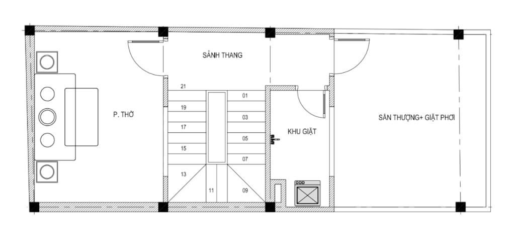
2.4. Tầng 4
+ Tầng 4: Phòng thờ + San phơi + Sân thượng
.png?662)
