Mẫu nhà phố 4 tầng hiện đại, giải pháp tối ưu cho đô thị Hà Nội - Chủ đầu tư: Anh Tuấn Anh
1. Phối cảnh 3D mặt tiền
Chủ đầu tư: Anh Tuấn Anh
Địa điểm xây dựng: Hà Đông, Hà Nội.
Công năng sử dụng:
+ Tầng 1: Phòng khách chung thờ + Phòng bếp + WC
+ Tầng 2, 3: 2 Phòng ngủ + WC
+ Tầng 4: Phòng ngủ + sân phơi

Ngôi nhà được thiết kế theo phong cách tối giản (Minimalist), sử dụng các đường nét thẳng, mảng khối vuông vắn và bố cục mặt tiền gọn gàng. Sự kết hợp giữa gam màu trắng chủ đạo – nhấn nhá bằng lam gỗ và hệ cửa kính khung đen đã tạo nên vẻ đẹp thời thượng, bền vững. Điểm nổi bật của thiết kế là sự cân đối hình khối, dù mặt tiền hẹp nhưng tổng thể vẫn thanh thoát, không gây cảm giác bí bách.
Các tầng sử dụng cửa kính cường lực khung nhôm đen, vừa hiện đại vừa giúp không gian bên trong luôn sáng và thoáng. Giải pháp này đặc biệt phù hợp với nhà phố mặt tiền nhỏ.
2. Hình ảnh bố trí công năng
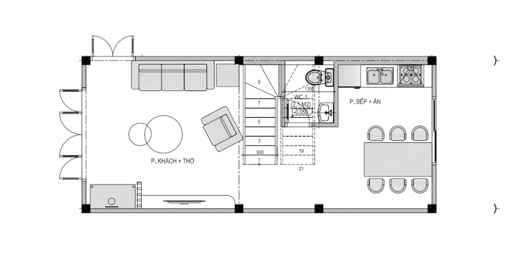
2.1. Tầng 1
Phòng khách chung thờ + Phòng bếp + WC
.png?384)
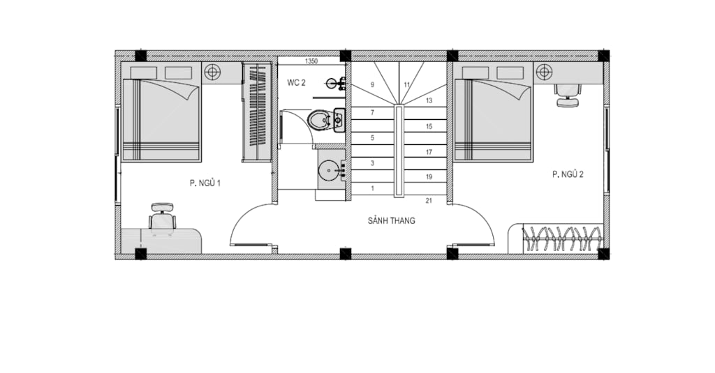
2.2. Tầng 2, 3
2 Phòng ngủ + WC
.png?109)
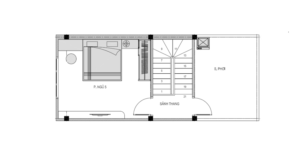
2.3. Tầng 4
Phòng ngủ + sân phơi
.png?570)
Nếu bạn đang tìm ý tưởng cho ngôi nhà tương lai hoặc cần tư vấn thiết kế theo diện tích thực tế, Việt Home luôn sẵn sàng hỗ trợ.
