Mẫu Nhà Phố 3 Tầng Hiện Đại Với Thiết Kế Đẹp, Thoáng Và Tiện Nghi -CĐT: Mr Dũng - Bắc Giang
1. Phối cảnh 3D mặt tiền
Chủ đầu tư: Mr Dũng
Địa điểm xây dựng: Bắc Giang
Công năng sử dụng:
+ Tầng 1: Nhà để xe + Phòng khách + Bếp + WC
+ Tầng 2: Phòng ngủ master + Phòng ngủ khép kín
+ Tầng 3: Phòng thờ + Phòng ngủ + Sân Phơi + WC

Mặt tiền của mẫu nhà phố này được thiết kế theo phong cách hiện đại với bố cục hình khối vuông vức, tối giản nhưng vẫn toát lên vẻ sang trọng và tinh tế. Toàn bộ công trình nổi bật với gam màu trắng chủ đạo kết hợp các mảng ốp màu xám và trần ốp gỗ tạo điểm nhấn ấm áp. Tầng trệt sử dụng cửa cổng sắt nan dọc chắc chắn, vừa đảm bảo an ninh vừa tạo cảm giác thông thoáng, phía trên là ban công tầng hai được thiết kế rộng rãi với lan can kính trong suốt giúp mở rộng tầm nhìn và tăng tính thẩm mỹ cho mặt tiền. Khu vực ban công được bố trí bộ bàn ghế nhỏ cùng nhiều chậu cây xanh, mang lại cảm giác gần gũi với thiên nhiên và tạo không gian thư giãn lý tưởng cho gia chủ. Hệ cửa kính lớn khung tối màu được sử dụng xuyên suốt các tầng giúp tận dụng tối đa ánh sáng tự nhiên, đồng thời làm nổi bật phong cách kiến trúc hiện đại của ngôi nhà.

Phần trần ban công được ốp gỗ kết hợp hệ đèn LED âm trần tạo hiệu ứng ánh sáng ấm áp vào buổi tối, làm cho mặt tiền trở nên nổi bật và cuốn hút hơn. Lên đến tầng trên cùng, kiến trúc sư bố trí thêm một lớp lam che nắng dạng thanh ngang vừa có tác dụng trang trí, vừa giúp giảm bức xạ nhiệt và tăng sự thông thoáng cho khu vực sân thượng. Tổng thể mặt tiền mang đến cảm giác cân đối, thanh thoát và hiện đại, đồng thời vẫn giữ được sự gần gũi nhờ các mảng cây xanh được bố trí hợp lý ở ban công các tầng, tạo nên một không gian sống hài hòa, thoáng mát giữa khu phố đô thị.
2. Hình ảnh bố trí công năng
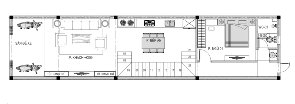
2.1. Tầng 1
+ Tầng 1: Nhà để xe + Phòng khách + Bếp + WC
.png?122)
2.2. Tầng 2
+ Tầng 2: Phòng ngủ master + Phòng ngủ khép kín
.png?486)
2.3. Tầng 3
+ Tầng 3: Phòng thờ + Phòng ngủ + Sân Phơi + WC
.png?810)
