Mẫu nhà phố 3 tầng hiện đại tại Bắc Giang - Chủ đầu tư: Anh Dũng
1. Phối cảnh 3D mặt tiền
Chủ đầu tư: Anh Dũng
- Địa điểm xây dựng: Bắc Giang
- Công năng sử dụng:
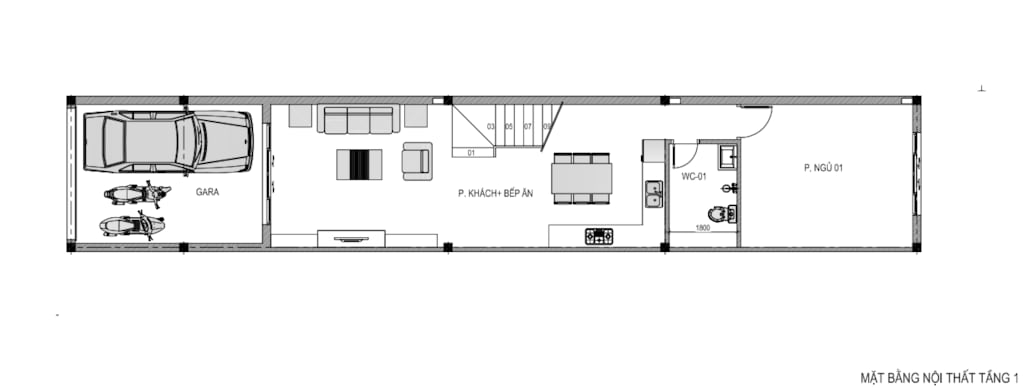
+ Tầng 1: Gara + Phòng khách + Phòng bếp + 1 Phòng ngủ + WC
+ Tầng 2: 2 Phòng ngủ master
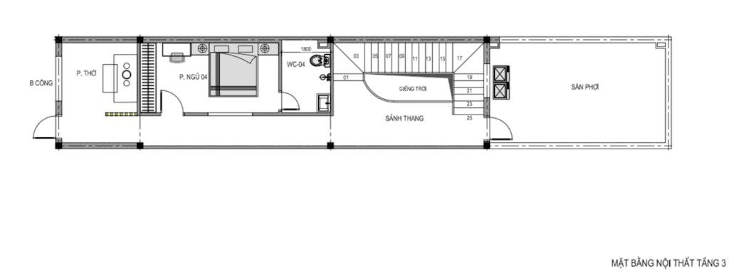
+ Tầng 3: Phòng thờ + 1 Phòng ngủ master + Sân phơi

Hệ cửa cuốn hiện đại được bố trí tinh tế tại tầng 1 mang lại vẻ đẹp sang trọng, đồng thời đảm bảo an ninh tối đa cho ngôi nhà ống mặt tiền 4m. Với khả năng vận hành êm ái, dễ dàng đóng mở bằng điều khiển từ xa, cửa cuốn giúp tiết kiệm diện tích, tối ưu công năng cho không gian vốn có giới hạn. Giải pháp này không chỉ nâng tầm tính thẩm mỹ mà còn mang lại sự tiện nghi, an toàn và thoải mái cho gia chủ trong sinh hoạt hằng ngày.
Một trong những ưu điểm lớn của mẫu nhà phố 3 tầng chính là hệ thống cửa kính khung nhôm cao cấp. Nhờ đó mà ánh sáng tự nhiên và gió trời được tận dụng tối đa, mang lại không gian sống thoáng đãng và tiết kiệm năng lượng. Những tấm kính lớn còn giúp mặt tiền ngôi nhà phố trở nên hiện đại, phản chiếu ánh sáng lung linh, tạo cảm giác rộng rãi hơn cho công trình vốn có diện tích mặt tiền hạn chế.

2. Công năng sử dụng
2.1. Tầng 1
Sân để xe + Phòng khách + Bếp + 1 Phòng ngủ + 1 WC
.png?217)
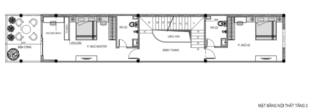
2.2. Tầng 2
2 Phòng ngủ master
.png?347)
2.3. Tầng 3
Phòng thờ + 1 Phòng ngủ master + Sân chơi
.png?246)
Sản phẩm của Việt Home được thiết kế theo định hướng công năng sử dụng, thẩm mỹ và chất lượng cao.
Đến với Việt Home, quý khách hàng luôn có được những sản phẩm và dịch vụ với chất lượng tốt nhất. Việt Home cam kết:
- Chất lượng sản phẩm ổn định nhất
- Giá thành hợp lý nhất
- Dịch vụ đầy đủ nhất
Việt Home tin rằng việc tạo dựng uy tín thông qua chất lượng sản phẩm, dịch vụ, đáp ứng được nhu cầu của khách hàng sẽ là nền tảng vững chắc cho sự phát triển của thương hiệu của mình.
Hãy đến với Việt Home để có được một không gian sống tuyệt vời nhất. Chúng tôi luôn sẵn sàng đáp ứng nhu cầu của bạn.
