Mẫu Nhà Phố 2 Tầng Hiện Đại - Thiết Kế Tối Giản, Sang Trọng Và Gần Gũi Thiên Nhiên - CĐT: Mr Quyền , Ninh Bình
1. Phối cảnh 3D mặt tiền
Chủ đầu tư: Anh Quyền
Địa điểm xây dựng: Ninh Bình
Công năng sử dụng:
+ Tầng 1: Phòng khách + Phòng bếp + 1 Phòng ngủ + wc
+ Tầng 2: Phòng thờ + Phòng chờ + Phòng ngủ thường + 1 WC

Mặt tiền của mẫu nhà phố 2 tầng này gây ấn tượng mạnh với phong cách kiến trúc hiện đại kết hợp những đường nét mềm mại đầy tinh tế. Tổng thể công trình sử dụng tông màu trắng chủ đạo, mang lại cảm giác thanh lịch, sạch sẽ và giúp ngôi nhà nổi bật giữa không gian xung quanh. Điểm nhấn đặc biệt nằm ở khối tường cong lớn ở tầng hai, được thiết kế bo tròn mềm mại thay vì các đường thẳng cứng nhắc, tạo nên vẻ đẹp độc đáo và nghệ thuật cho mặt tiền. Trên bề mặt khối cong còn được tạo hình những chi tiết trang trí nhẹ nhàng giống hình cánh lá, vừa mang tính thẩm mỹ vừa làm tăng chiều sâu cho công trình. Ban công phía trước được thiết kế rộng rãi với lan can kính hiện đại, kết hợp cùng hệ cây xanh và tiểu cảnh treo rủ xuống tự nhiên, tạo cảm giác tươi mát và gần gũi với thiên nhiên. Phía trên ban công là mái che nhỏ ốp gỗ với hệ đèn âm trần, vừa giúp che nắng mưa vừa tạo điểm nhấn ấm áp khi lên đèn vào buổi tối.

Hệ cửa kính lớn khung kim loại màu tối được bố trí hợp lý giúp tận dụng tối đa ánh sáng tự nhiên, đồng thời tạo sự thông thoáng cho không gian bên trong. Tầng một nổi bật với hệ cửa chính hai cánh sang trọng kết hợp kính và các chi tiết kim loại trang trí tinh xảo, phía trước là bậc tam cấp ốp đá tối màu tạo cảm giác vững chãi và bề thế. Hai bên tường mặt tiền được lắp đặt đèn trang trí kiểu cổ điển, khi bật sáng sẽ tạo nên hiệu ứng ánh sáng ấm áp làm tôn lên vẻ sang trọng của toàn bộ công trình. Tổng thể mặt tiền là sự kết hợp hài hòa giữa hình khối hiện đại, vật liệu kính, kim loại và mảng xanh thiên nhiên, tạo nên một không gian sống vừa tinh tế, sang trọng vừa gần gũi và đầy sức sống
2. Hình ảnh bố trí công năng
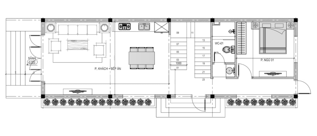
2.1. Tầng 1
+ Tầng 1: Phòng khách + Phòng bếp + 1 Phòng ngủ + wc
.png?128)
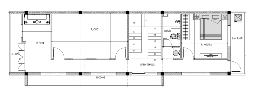
2.2. Tầng 2
+ Tầng 2: Phòng thờ + Phòng chờ + Phòng ngủ thường + 1 WC
.png?497)
