Mẫu nhà chung cư mini 5 tầng hiện đại - Chủ đầu tư: Anh Thắng, Hà Nội
1. Phối cảnh 3D mặt tiền
Chủ đầu tư: Anh Thắng
Địa điểm xây dựng: An Khánh, Hà Nội
Công năng sử dụng:
+ Tầng 1: Để xe
+ Tầng 2 - 4: 3 Phòng ngủ khép kín
+ Tầng 5: Phòng thờ + sân phơi

Mẫu nhà phố hiện đại 5 tầng nổi bật với dáng đứng thanh thoát, mặt tiền được xử lý tối giản nhưng cực kỳ sang trọng. Tổng thể công trình mang phong cách kiến trúc đường nét thẳng mạnh mẽ.
Điểm gây ấn tượng đầu tiên chính là hệ mặt tiền đối xứng, sử dụng mảng tường trắng tinh tế kết hợp ốp gỗ nhựa tạo chiều sâu và cảm giác ấm áp. Hệ cửa kính lớn được bố trí trải dọc các tầng giúp không gian bên trong đón sáng tự nhiên, tiết kiệm năng lượng và tạo cảm giác thông thoáng hơn cho ngôi nhà cao tầng.
Tầng 1 được thiết kế cửa cuốn và cao độ trần rộng rãi, cực kỳ phù hợp để làm gara ô tô, kho hàng, văn phòng hoặc mặt bằng kinh doanh.

Với thiết kế tối ưu, mặt tiền đẹp, hình khối rõ ràng, mẫu nhà này không chỉ mang vẻ đẹp trẻ trung – sang trọng – hiện đại, mà còn đáp ứng hoàn hảo mọi nhu cầu sử dụng thực tế: từ kinh doanh, cho thuê đến sinh hoạt gia đình.
2. Hình ảnh bố trí công năng
2.1. Tầng 1
Để xe
.png?833)
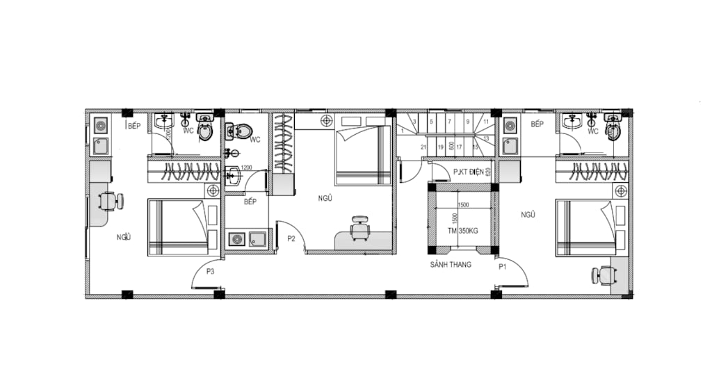
2.2. Tầng 2 - 4
3 Phòng ngủ khép kín
.png?986)
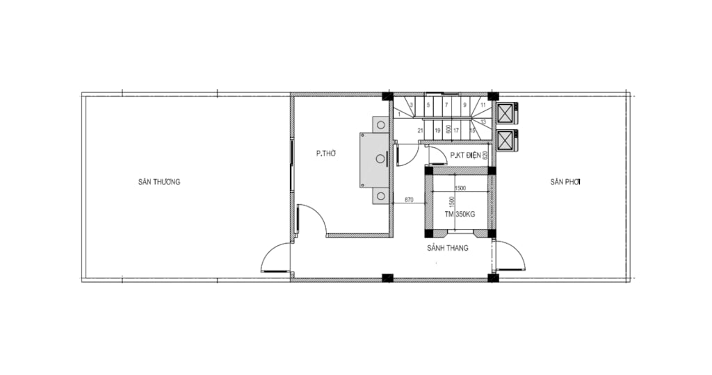
2.3. Tầng 5
Phòng thờ + sân phơi
.png?353)
