Mẫu Nhà biệt thự 2 tầng mái Nhật hiện đại – Vẻ đẹp sang trọng và bền vững theo thời gian - CĐT: Mr. Huy - Phú Thọ
1. Phối cảnh 3D mặt tiền
Chủ đầu tư: Mr. Huy
Địa điểm xây dựng: Phú Thọ
Công năng sử dụng:
+ Tầng 1: Phòng khách + Bếp ăn + 2 Phòng ngủ + WC
+Tầng 2: Phòng thờ + 3 Phòng ngủ + WC

Mặt tiền của mẫu nhà biệt thự 2 tầng mái Nhật hiện đại trong hình toát lên vẻ đẹp sang trọng, vững chãi nhưng vẫn rất thanh thoát và gần gũi. Tổng thể công trình được thiết kế theo bố cục cân đối, các khối kiến trúc xếp lớp rõ ràng, tạo chiều sâu cho mặt đứng và mang lại cảm giác bề thế ngay từ cái nhìn đầu tiên. Điểm nổi bật nhất là hệ mái Nhật với độ dốc vừa phải, các lớp mái xếp chồng tinh tế, lợp ngói màu xanh ghi trang nhã, không chỉ nâng cao giá trị thẩm mỹ mà còn giúp thoát nước nhanh, chống nóng hiệu quả và phù hợp với điều kiện khí hậu Việt Nam. Phần mái đua rộng kết hợp trần ốp gỗ và hệ đèn âm trần tạo nên vẻ đẹp hiện đại, đồng thời tăng khả năng che nắng mưa cho các không gian bên dưới.
Khu vực sảnh chính được thiết kế nổi bật với bậc tam cấp rộng rãi, dẫn lối lên hệ cửa gỗ tự nhiên kích thước lớn, chạm khắc hoa văn tinh xảo, mang lại cảm giác sang trọng và thể hiện vị thế của gia chủ. Hai bên sảnh là hệ cột vuông chắc khỏe, phần chân cột được ốp đá tự nhiên màu xám đậm, tạo sự tương phản tinh tế với mảng tường sơn trắng – xanh ghi chủ đạo. Cách phối màu này không chỉ giúp mặt tiền trở nên hiện đại, thanh lịch mà còn giữ được vẻ bền đẹp theo thời gian, hạn chế cảm giác lỗi mốt.

Hệ cửa sổ và cửa ban công kính khung nhôm được bố trí hợp lý ở cả hai tầng, vừa đảm bảo tính thẩm mỹ vừa tối ưu khả năng lấy sáng và thông gió tự nhiên cho không gian nội thất. Ban công tầng hai được thiết kế gọn gàng, kết hợp lan can đặc và chậu cây xanh, tạo điểm nhấn mềm mại, đồng thời mang thiên nhiên đến gần hơn với không gian sống. Phía trước ngôi nhà là khoảng sân lát gạch rộng rãi, kết hợp bồn cây và tiểu cảnh hai bên, giúp tổng thể mặt tiền thêm hài hòa, thoáng đãng và tăng tính kết nối giữa công trình với cảnh quan xung quanh. Tất cả các chi tiết từ hình khối, vật liệu đến màu sắc đều được xử lý khéo léo, tạo nên một mặt tiền biệt thự 2 tầng mái Nhật vừa hiện đại, sang trọng, vừa bền vững và phù hợp với xu hướng kiến trúc nhà ở hiện nay.
2. Hình ảnh bố trí công năng
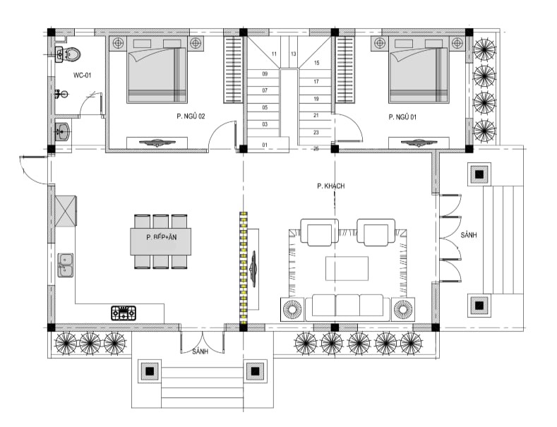
2.1. Tầng 1
+ Tầng 1: Phòng khách + Bếp ăn + 2 Phòng ngủ + WC
.png?800)
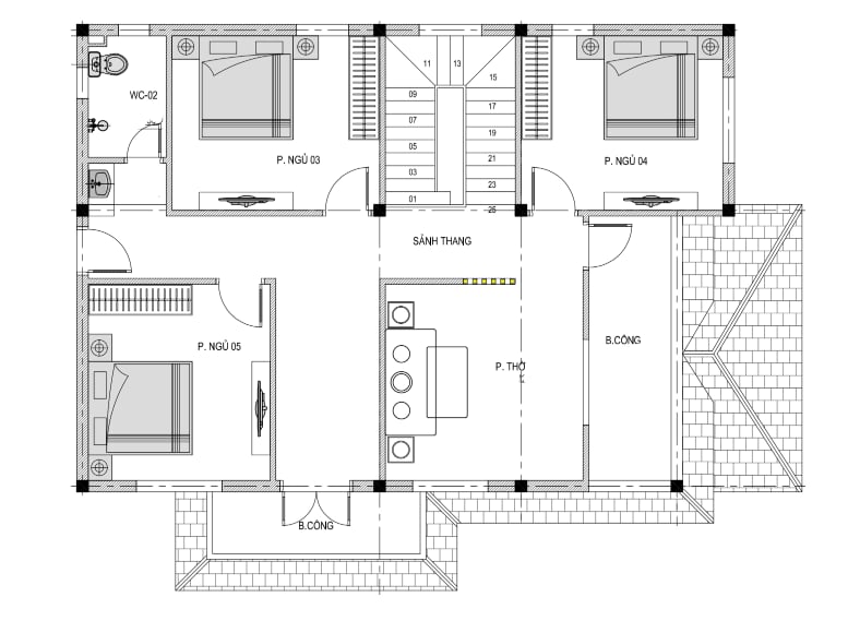
2.2. Tầng 2
+Tầng 2: Phòng thờ + 3 Phòng ngủ + WC
.png?27)
