Mẫu Nhà 3 Tầng Hiện Đại Đẹp - Thiết Kế Sang Trọng, Công Năng Tối Ưu - CĐT: Mr Tấn - Hà Nội
1. Phối cảnh 3D mặt tiền
Chủ đầu tư: Mr. Tấn
Địa điểm xây dựng: Hà Nội
Công năng sử dụng:
+ Tầng 1: Khách + Bếp ăn + WC
+ Tầng 2: Phòng ngủ master + 2 Phòng ngủ + WC
+ Tầng 3: Phòng thờ + Phòng ngủ + WC + Sân thượng

Mặt tiền của mẫu nhà 3 tầng hiện đại này được thiết kế với sự chăm chút tỉ mỉ đến từng chi tiết, thể hiện rõ tinh thần kiến trúc đương đại sang trọng và đẳng cấp. Tổng thể công trình nổi bật với các khối hình học vuông vắn, xếp lớp rõ ràng, tạo nên cảm giác vững chãi nhưng vẫn thanh thoát nhờ cách giật cấp thông minh giữa các tầng. Gam màu chủ đạo trắng – ghi sáng được phối hợp khéo léo với các mảng ốp đá tự nhiên tông xám đậm, vừa mang lại chiều sâu cho mặt tiền vừa tạo điểm nhấn mạnh mẽ, giúp công trình trở nên nổi bật giữa khu phố. Hệ cửa kính lớn khung nhôm cao cấp được bố trí xuyên suốt từ tầng 1 đến tầng 3, không chỉ mở rộng tầm nhìn mà còn giúp ngôi nhà tận dụng tối đa ánh sáng tự nhiên, làm nổi bật vẻ đẹp hiện đại, tinh tế của kiến trúc.

Phần ban công được thiết kế rộng rãi, lan can kính hoặc khung kim loại thanh mảnh kết hợp với bồn cây xanh, tạo sự cân bằng hài hòa giữa vật liệu cứng và yếu tố thiên nhiên mềm mại. Các chi tiết phào chỉ, đường viền ngang được tiết chế vừa đủ, chạy dọc theo mặt tiền, giúp công trình trông gọn gàng, sang trọng mà không rườm rà. Đặc biệt, khu vực sân thượng được xử lý khéo léo với mái che lam hiện đại và không gian mở, vừa đảm bảo công năng che nắng mưa vừa tạo điểm nhấn kiến trúc độc đáo, góp phần hoàn thiện vẻ đẹp tổng thể cho mặt tiền ngôi nhà – một vẻ đẹp hiện đại, thời thượng và bền vững theo thời gian.
2. Hình ảnh bố trí công năng
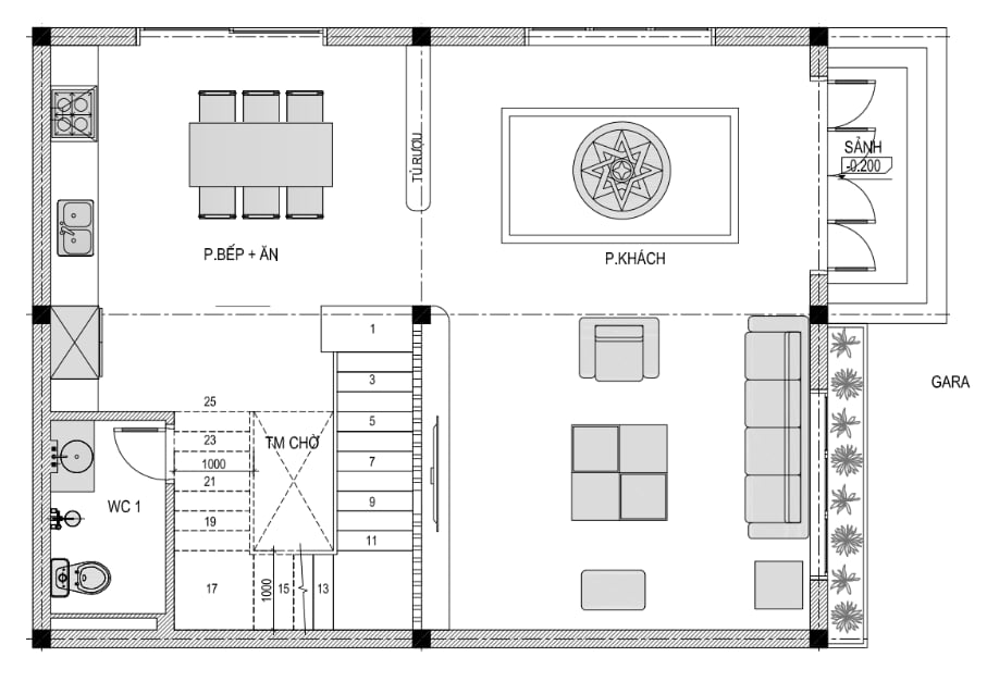
2.1. Tầng 1
+ Tầng 1: Khách + Bếp ăn + WC
.png?581)
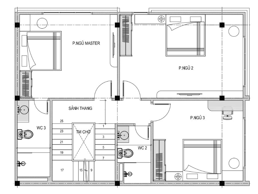
2.2. Tầng 2
+ Tầng 2: Phòng ngủ master + 2 Phòng ngủ + WC
.png?971)
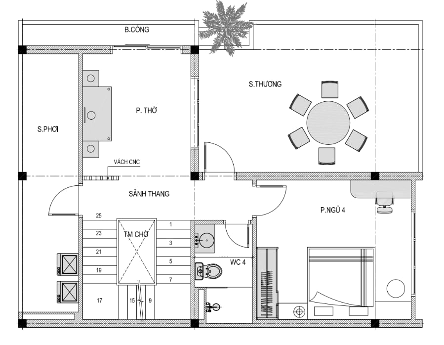
2.3. Tầng 3
+ Tầng 3: Phòng thờ + Phòng ngủ + WC + Sân thượng
.png?483)
