Mẫu Nhà 2 Tầng Mái Nhật Sang Trọng -Giải Pháp Không Gian Sống Đẳng Cấp Cho Gia Đình Việt - CĐT: Mr. Minh - Hưng Yên
1. Phối cảnh 3D mặt tiền
- Chủ đầu tư: Anh Minh
- Địa điểm xây dựng: Hưng Yên
- Tên công trình: Nhà 2 tầng mái nhật
- Công năng sử dụng:
+ Tầng 1: Phòng thờ + Phòng khách + Bếp ăn+ Phòng ngủ khép kín + 1 WC
+ Tầng 2: Phòng ngủ Master + 2 Phòng ngủ + WC + Sân phơi

Mặt tiền ngôi nhà được thiết kế với mức độ hoàn thiện cao, thể hiện rõ vẻ đẹp sang trọng, bề thế và đẳng cấp vượt trội ngay từ ánh nhìn đầu tiên. Tổng thể công trình gây ấn tượng bởi bố cục cân đối, mạch lạc, các khối kiến trúc được sắp xếp hài hòa, tạo cảm giác vững chãi nhưng vẫn thanh thoát. Gam màu trắng chủ đạo bao phủ toàn bộ mặt tiền không chỉ mang lại sự tinh khôi, hiện đại mà còn giúp tôn lên các chi tiết trang trí và vật liệu cao cấp. Nổi bật phía trên là hệ mái Nhật màu xanh đậm, thiết kế dốc nhẹ, đua rộng, vừa tăng giá trị thẩm mỹ vừa giúp công trình chống nóng, thoát nước hiệu quả, tạo nên dáng vẻ sang trọng và bền vững theo thời gian.

Hệ cột trụ lớn xuyên suốt hai tầng được xử lý vuông vức, mạnh mẽ, phần chân cột ốp đá màu tối tạo điểm nhấn chắc chắn, trong khi phần đầu cột được nhấn bằng phào chỉ tinh tế mang hơi hướng tân cổ điển, giúp mặt tiền vừa uy nghi vừa mềm mại. Khu vực ban công tầng 2 trở thành điểm nhấn đắt giá với lan can sắt mỹ thuật hoa văn uốn lượn tinh xảo, phủ sắc vàng sang trọng, góp phần nâng tầm giá trị thẩm mỹ và thể hiện rõ gu thẩm mỹ tinh tế của gia chủ. Hệ cửa kính lớn khung nhôm cao cấp được bố trí hợp lý, không chỉ giúp ngôi nhà luôn tràn ngập ánh sáng tự nhiên mà còn tạo chiều sâu, sự thông thoáng và kết nối hài hòa giữa không gian nội thất với cảnh quan bên ngoài.
Bên cạnh đó, các chi tiết phụ trợ như đèn trang trí gắn tường, trần sảnh, bậc tam cấp và đường gờ phào đều được thiết kế đồng bộ, tỉ mỉ đến từng chi tiết, góp phần hoàn thiện một mặt tiền đẹp toàn diện, sang trọng và đầy khí chất. Tổng thể mặt tiền không chỉ là điểm nhấn kiến trúc mà còn khẳng định vị thế, phong cách sống và đẳng cấp của gia chủ trong từng đường nét.
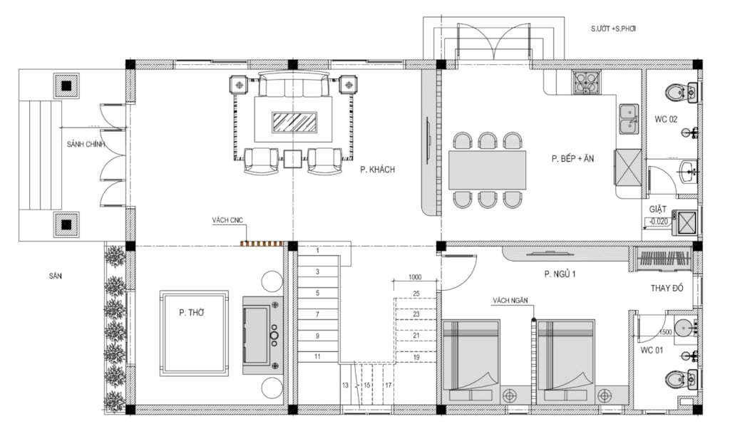
2. Hình ảnh bố trí công năng
2.1. Tầng 1
+ Tầng 1: Phòng thờ + Phòng khách + Bếp ăn+ Phòng ngủ khép kín + 1 WC
.png?618)
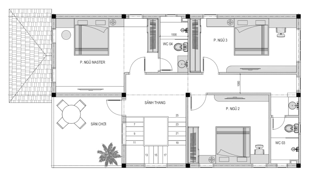
2.2. Tầng 2
+ Tầng 2: Phòng ngủ Master + 2 Phòng ngủ + WC + Sân phơi
.png?689)
