Mẫu Nhà 2 Tầng Mái Nhật Hiện Đại Đẹp Tại Hải Phòng - CĐT: Anh Vũ
1. Phối cảnh 3D mặt tiền
- Chủ đầu tư: Anh Vũ
- Địa điểm xây dựng: Hải Phòng
- Tên công trình: Biệt thự 2 tầng mái nhật
- Công năng sử dụng:
+ Tầng 1: Phòng khách + Bếp ăn+ 1 Phòng ngủ + 1 WC
+ Tầng 2: Phòng thờ + 2 Phòng ngủ + WC + Sân phơi
Mẫu nhà 2 tầng mái Nhật hiện đại tại Hải Phòng là lựa chọn lý tưởng cho những gia đình yêu thích phong cách kiến trúc tinh tế, trẻ trung nhưng vẫn đảm bảo sự bề thế và sang trọng.
.jpg?701)
Công trình nổi bật với hệ mái Nhật màu xanh ghi thanh lịch, độ dốc vừa phải giúp thoát nước tốt và chống nóng hiệu quả – đặc biệt phù hợp với điều kiện khí hậu miền Bắc.
Mặt tiền ngôi nhà được bố cục cân xứng với hệ cột vuông khỏe khoắn, kết hợp ốp đá chân cột tạo điểm nhấn sang trọng. Sảnh chính được thiết kế rộng rãi, bậc tam cấp cao ráo, mang lại cảm giác bề thế cho công trình.
Ban công tầng 2 sử dụng lan can kính cường lực vừa đảm bảo an toàn, vừa tăng sự thanh thoát cho tổng thể kiến trúc. Các chi tiết được tối giản nhưng vẫn đủ tạo điểm nhấn, phù hợp với xu hướng thiết kế nhà ở hiện nay.

2. Hình ảnh bố trí công năng
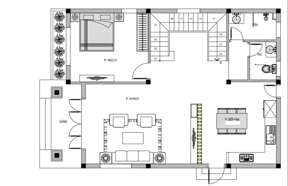
2.1. Tầng 1
Tầng 1: Phòng khách + Bếp ăn+ 1 Phòng ngủ + 1 WC
.png?707)
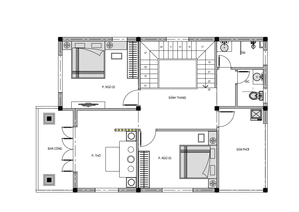
2.2. Tầng 2
Phòng thờ + 2 Phòng ngủ + WC + Sân phơi
.png?416)
