Mẫu Nhà 2 Tầng Mái Nhật Hiện Đại - Chủ đầu tư: Anh Quang, Bắc Ninh
1. Phối cảnh 3D mặt tiền
- Chủ đầu tư: Anh Quang
- Địa điểm xây dựng: Bắc Ninh
- Tên công trình: Biệt thự 2 tầng mái nhật
- Công năng sử dụng:
+ Tầng 1: Phòng khách + Bếp ăn+ Phòng ngủ khép kín + 1 WC
+ Tầng 2: Phòng thờ + 1 Phòng ngủ Master + 3 Phòng ngủ + WC + Sân phơi

Mẫu nhà 2 tầng mái Nhật phong cách tân cổ điển hiện đại tại Gia Bình, Bắc Ninh là lựa chọn lý tưởng cho những gia đình yêu thích vẻ đẹp sang trọng nhưng không quá cầu kỳ. Công trình nổi bật với hệ mái Nhật màu ghi đen thanh lịch, có độ dốc vừa phải giúp thoát nước tốt và chống nóng hiệu quả, rất phù hợp với điều kiện khí hậu Việt Nam.
Tổng thể mặt tiền sử dụng gam màu trắng – xám trung tính kết hợp cùng hệ cửa kính khung nhôm cao cấp, tạo nên vẻ đẹp tinh tế, thông thoáng và tràn ngập ánh sáng tự nhiên. Sảnh chính được thiết kế bề thế với hệ cột vuông chắc khỏe, cửa gỗ tự nhiên 4 cánh sang trọng cùng bậc tam cấp ốp đá tăng thêm sự đẳng cấp cho công trình.
.jpg?677)
Với thiết kế hài hòa, chi phí xây dựng hợp lý và tính thẩm mỹ bền vững theo thời gian, mẫu nhà 2 tầng mái Nhật tân cổ điển đang trở thành xu hướng được nhiều gia chủ lựa chọn khi xây dựng nhà ở hiện nay.
2. Hình ảnh bố trí công năng
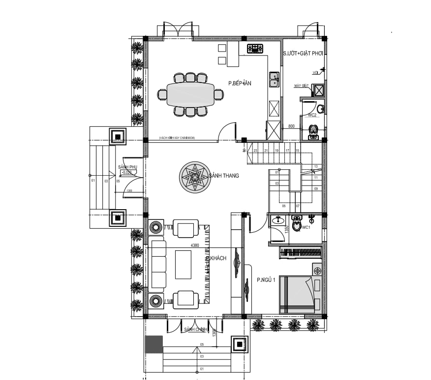
2.1. Tầng 1
Phòng khách + Bếp ăn+ Phòng ngủ khép kín + 1 WC
.png?478)
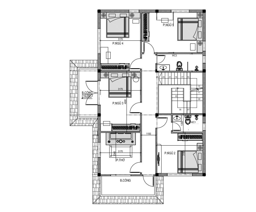
2.2. Tầng 2
Phòng thờ + 1 Phòng ngủ Master + 3 Phòng ngủ + WC + Sân phơi
.png?520)
Mẫu nhà 2 tầng mái Nhật tại Gia Bình – Bắc Ninh là sự kết hợp hoàn hảo giữa vẻ đẹp sang trọng và công năng tiện nghi. Nếu anh/chị đang tìm kiếm một mẫu nhà đẹp, bền vững và phù hợp xu hướng, đây chắc chắn là lựa chọn đáng tham khảo.
