Mẫu Nhà 2 Tầng Hiện Đại, Sang Trọng - Chủ đầu tư: Anh Dũng, Hòa Bình
1. Phối cảnh 3D mặt tiền
Chủ đầu tư: Anh Dũng
Địa điểm xây dựng: Hòa Bình
Công năng sử dụng:
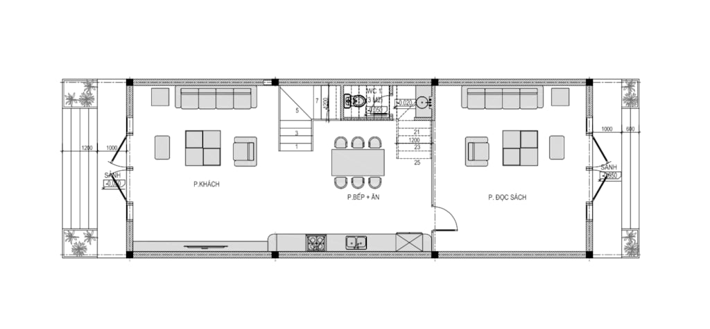
+ Tầng 1: Phòng khách + Phòng bếp + Phòng đọc sách + wc
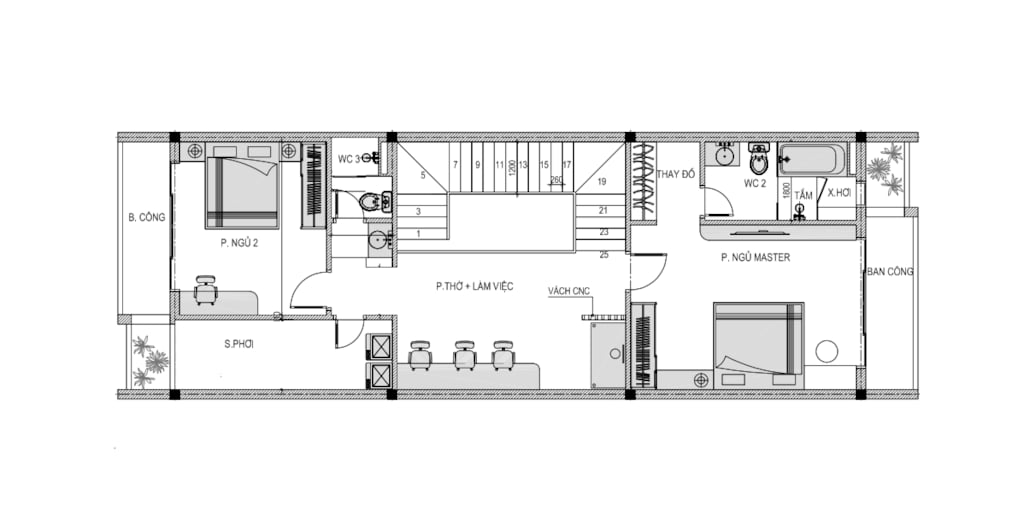
+ Tầng 2: Phòng thờ + 1 Phòng ngủ master + 1 Phòng ngủ thường + 1 WC

Ngôi nhà sở hữu mặt tiền ấn tượng với hình khối kiến trúc kiên cố, đường nét thiết kế khoẻ khoắn, thời thượng đặc trưng của phong cách hiện đại. Việc giản lược những chi tiết trang trí rườm rà đã mang đến cho ngôi nhà này một vẻ đẹp vô cùng sang trọng và tinh tế
Tổng thể công trình sử dụng gam màu trắng sáng làm chủ đạo, mang lại cảm giác tinh tế, thanh lịch và giúp ngôi nhà trông cao ráo, thoáng đãng hơn trên khu đất mặt tiền hẹp. Trên nền trắng ấy, kiến trúc sư khéo léo nhấn mạnh bằng các mảng tường ốp gạch tối màu vân đá, chạy dọc theo chiều cao công trình, vừa tạo điểm nhấn thị giác mạnh mẽ vừa tăng cảm giác chắc chắn, bền vững cho mặt đứng.

2. Hình ảnh bố trí công năng
2.1. Tầng 1
Phòng khách + Phòng bếp + Phòng đọc sách + wc
.png?743)
2.2. Tầng 2
Phòng thờ + 1 Phòng ngủ master + 1 Phòng ngủ thường + 1 WC
.png?111)
