Mẫu biệt thự phố 2 tầng 1 tum nhà anh Chung - Kim Động, Hưng Yên
Mẫu nhà 2 tầng 1 tum đang là xu hướng xây dựng nhà hiện nay. Thiết kế thêm 1 tum nhằm tăng thêm diện tích sử dụng nhưng chi phí phát sinh cũng tăng không đáng kể so với việc xây nhà 3 tầng. Chính vì thế nhiều gia chủ lựa chọn xây dựng 1 tum thay vì lên thêm tầng 3. Dưới đây là những mẫu thiết kế đẹp mà Việt Home muốn giới thiệu với mọi người.
1. Phối cảnh 3D mặt tiền
- Chủ đầu tư: Anh Chung
- Địa điểm xây dựng: Kim Động - Hưng Yên.
- Tên công trình: Nhà phố 2 tầng 1 tum hiện đại
- Công năng sử dụng:
+ Tầng 1: Phòng Khách + Bếp + 1 Phòng ngủ + 1 WC
+ Tầng 2: Phòng thờ + 3 Phòng ngủ + + 1 sân phơi + 1 WC

Thiết kế hiện đại và tiết kiệm chi phí, mẫu nhà phố đang được rất nhiều gia chủ ưa chuộng. Bố trí nhiều khu vực trồng cây xanh tạo cảm giác thoáng mát dễ chịu. Sự kết hợp giữa gam màu trầm và trắng mang đến sự trẻ trung cho căn nhà. Đường nét thiết kế độc đáo và hiện đại cũng là điểm nhấn đáng chú ý. Đây chính là mẫu nhà phù hợp cho những gia đình trẻ
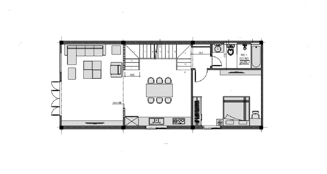
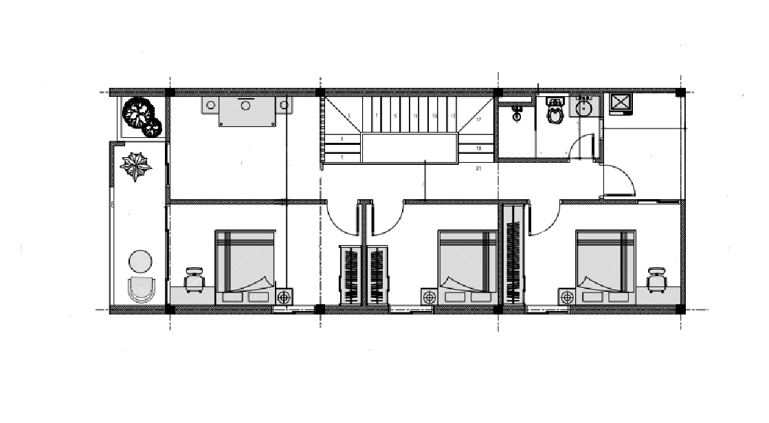
2. Bố trí công năng
2.1 Tầng 1
Tầng 1: Phòng Khách + Bếp + 1 Phòng ngủ + 1 WC

2.2 Tầng 2
Tầng 2: Phòng thờ + 3 Phòng ngủ + + 1 sân phơi + 1 WC

3. Hình ảnh giám sát thi công


