Mẫu biệt thự 3 tầng hiện đại tại Bắc Ninh - Chủ đầu tư: Anh Hoàn
1. Phối cảnh 3D mặt tiền
- Chủ đầu tư: Anh Hoàn
- Địa điểm xây dựng: Bắc Ninh
- Tên công trình: Biệt thự 3 tầng hiện đại
- Công năng sử dụng:
+ Tầng 1: Phòng khách và thờ + Bếp ăn + 1 Phòng ngủ khép kín + 1 WC
+ Tầng 2: Phòng SHC+ 1 Phòng ngủ khép kín + 2 Phòng ngủ thường + 1 WC
+ Tầng 3: 1 Phòng ngủ khép kín + 1 Phòng ngủ thường + Kho + Sân phơi

Nhìn từ bên ngoài không gian ngoại thất phối cảnh 3D mẫu thiết kế biệt thự hiện đại có thể thấy, điểm nổi bật của ngôi nhà này là mặt tiền mang lại sự riêng tư cần thiết nhưng vẫn thoáng mát. Công trình được các chủ đầu tư và giới chuyên môn đánh giá là một trong những mẫu thiết kế nhà phố đẹp nhất hiện nay, được xây dựng hoàn hảo cho việc ở kết hợp kinh doanh ở các đô thị.

2. Hình ảnh bố trí công năng
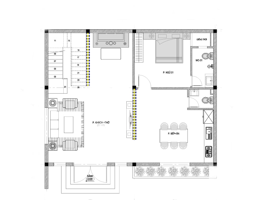
2.1. Tầng 1
Phòng khách và thờ + Bếp ăn + 1 Phòng ngủ khép kín + 1 WC
.png?593)

2.2. Tầng 2
Phòng SHC+ 1 Phòng ngủ khép kín + 2 Phòng ngủ thường + 1 WC
.png?91)
2.3. Tầng 3
1 Phòng ngủ khép kín + 1 Phòng ngủ thường + Kho + Sân phơi
.png?226)
Bản vẽ chi tiết kiến trúc và phối cảnh ngoại thất 3D
Bản vẽ chi tiết kiến trúc
Bản vẽ kết cấu công trình
Bản vẽ hệ thống ME (Điện – Nước – Điều hòa – Thông gió – An ninh…)
Dự toán công trình: chi tiết chi phí xây dựng – Tổng mức đầu tư
Toàn bộ hồ sơ thiết kế công năng các phòng và kiến trúc đều được tư vấn hợp theo Phong thủy và tuổi của chủ đầu tư. Kích thước các phòng, chiều cao nhà và kích thước cửa đều theo kích thước phong thủy.
Bạn đang dự định xây nhà. Liên hệ ngay Việt Home để được tư vấn nhé!
