Mẫu 3 tầng hiện đại đẹp và thoáng - Chủ đầu tư: Anh Chúc, Hưng Yên
1. Phối cảnh 3D mặt tiền
Chủ đầu tư: Anh Chúc
Địa điểm xây dựng: Hưng Yên
Công năng sử dụng:
+ Tầng 1: Phòng khách + Bếp ăn + WC
+ Tầng 2: 2 Phòng ngủ + WC
+ Tầng 3: Phòng thờ + Phòng ngủ + WC + Sân phơi
.png?511)
Ngôi nhà 3 tầng mang phong cách hiện đại nổi bật với thiết kế mặt tiền tối giản nhưng đầy tinh tế, sử dụng gam màu trung tính kết hợp vật liệu kính và gỗ tạo nên vẻ đẹp sang trọng, ấm cúng. Các tầng đều được bố trí ban công rộng rãi với lan can kính trong suốt, giúp mở rộng không gian và tận dụng tối đa ánh sáng tự nhiên.
Điểm nhấn đặc biệt của ngôi nhà nằm ở khu vực sân thượng được thiết kế như một khu vườn xanh thu nhỏ, vừa tạo không gian thư giãn, vừa mang lại sự gần gũi với thiên nhiên giữa lòng đô thị.
Tổng thể công trình không chỉ đảm bảo tính thẩm mỹ mà còn tối ưu công năng sử dụng, mang đến một không gian sống thoáng đãng, tiện nghi và phù hợp với xu hướng nhà phố hiện nay.
.png?458)
2. Hình ảnh bố trí công năng
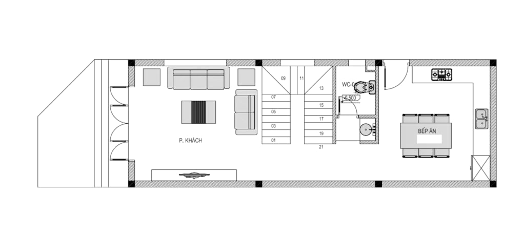
2.1. Tầng 1
Phòng khách + Bếp ăn + WC
.png?20)
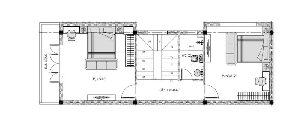
2.2. Tầng 2
2 Phòng ngủ + WC
.png?975)
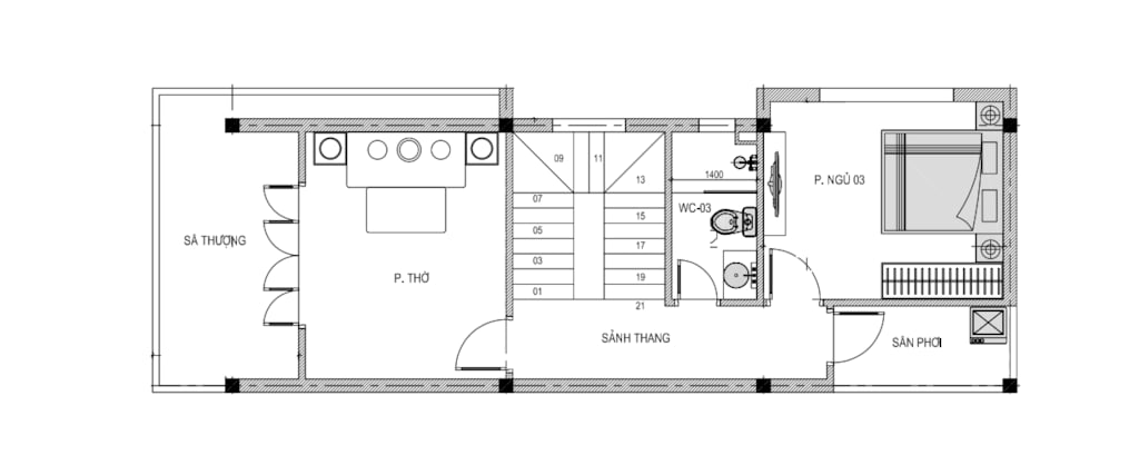
2.3. Tầng 3
Phòng thờ + Phòng ngủ + WC + Sân phơi
.png?941)
Mẫu nhà 3 tầng hiện đại có sân thượng xanh là lựa chọn hoàn hảo cho nhà phố hiện nay. Không chỉ đảm bảo thẩm mỹ, công năng mà còn mang lại không gian sống trong lành, thoải mái cho gia đình.
3. Hình ảnh thi công thực tế
.png?332)
.png?550)
.png?354)
.png?385)
.png?189)
Liên hệ ngay để được tư vấn thiết kế và thi công trọn gói – biến ngôi nhà mơ ước của bạn thành hiện thực cùng Việt Home!
