Kiến trúc hiện đại, tối ưu thẩm mỹ cùng mẫu biệt thự 3 tầng của Chủ đầu tư: Mr Duy tại Quốc Oai, Hà Nội
1. Phối cảnh 3D mặt tiền
- Chủ đầu tư: Mr Duy
- Địa điểm xây dựng: Hà Nội
- Công năng sử dụng:
+ Tầng 1: Phòng khách + Bếp ăn + 2 Phòng ngủ + 2 WC
+ Tầng 2: Phòng ngủ Master + 2 phòng ngủ + Phòng làm việc + WC
+ Tầng 3: Phòng thờ + Phòng ngủ Master + Khu uống trà + Khu giặt sấy

Ngôi nhà gây ấn tượng mạnh ngay từ cái nhìn đầu tiên bởi mặt tiền được thiết kế công phu, thể hiện rõ tinh thần kiến trúc hiện đại cao cấp và sự đầu tư kỹ lưỡng trong từng chi tiết. Tổng thể công trình là sự kết hợp hài hòa giữa các khối hình học vuông vắn, bố trí so le theo chiều đứng và chiều ngang, tạo nên nhịp điệu kiến trúc sinh động, tránh cảm giác cứng nhắc thường thấy ở những mẫu nhà phố thông thường. Gam màu trắng chủ đạo bao phủ toàn bộ mặt tiền giúp ngôi nhà trở nên thanh thoát, nổi bật và làm nền hoàn hảo cho các chi tiết trang trí tinh tế như khung cửa, lan can, hệ đèn âm trần và mảng ốp tối màu, từ đó tôn lên vẻ sang trọng, hiện đại.
Hệ thống cửa kính lớn được bố trí xuyên suốt các tầng không chỉ mở rộng tầm nhìn mà còn giúp tối ưu ánh sáng tự nhiên, khiến mặt tiền luôn tràn đầy sinh khí và tạo cảm giác không gian bên trong rộng rãi hơn thực tế. Các ban công được thiết kế rộng, nhô ra hợp lý, kết hợp lan can kính và kim loại thanh mảnh, vừa đảm bảo an toàn vừa giữ được sự thông thoáng, nhẹ nhàng cho tổng thể kiến trúc. Đặc biệt, việc bố trí nhiều cây xanh, chậu cảnh và tiểu cảnh nhỏ tại các ban công đã khéo léo đưa yếu tố thiên nhiên vào mặt tiền, làm mềm các đường nét kiến trúc cứng cáp và mang đến vẻ đẹp xanh mát, thư giãn như một khu nghỉ dưỡng thu nhỏ giữa đô thị.

Phần mái dốc cách điệu là điểm nhấn quan trọng, giúp công trình trở nên bề thế và cân đối hơn khi nhìn từ xa, đồng thời đáp ứng tốt yêu cầu thoát nước và chống nóng, phù hợp với điều kiện khí hậu nhiệt đới. Khu vực sảnh chính được thiết kế trang trọng với bậc tam cấp ốp đá cao cấp, hệ cửa lớn chắc chắn cùng ánh sáng chiếu sáng được bố trí tinh tế, làm nổi bật chiều sâu và sự sang trọng của mặt tiền vào cả ban ngày lẫn ban đêm. Tất cả các yếu tố từ hình khối, màu sắc, vật liệu cho đến ánh sáng và cây xanh đều được kết hợp chặt chẽ, tạo nên một mặt tiền không chỉ đẹp về hình thức mà còn thể hiện rõ đẳng cấp, gu thẩm mỹ tinh tế và phong cách sống hiện đại của gia chủ.
2. Công năng sử dụng
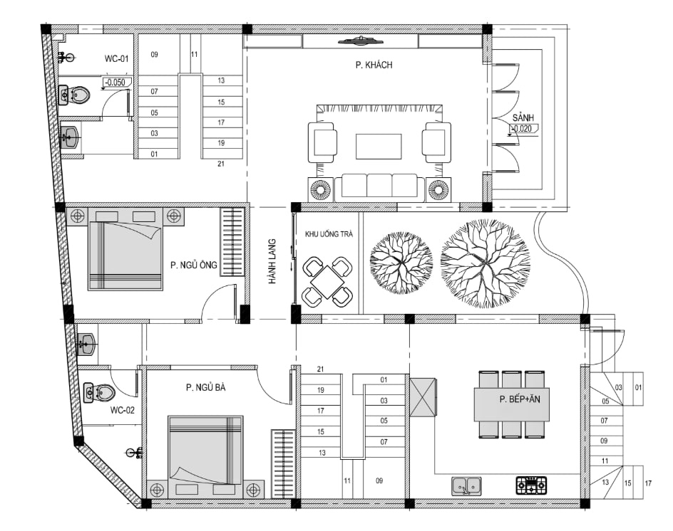
2.1. Tầng 1
+ Tầng 1: Phòng khách + Bếp ăn + 2 Phòng ngủ + 2 WC
.png?978)
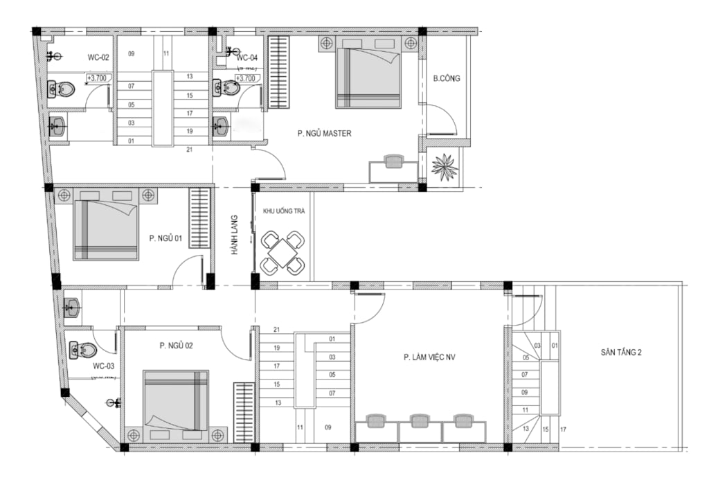
2.2. Tầng 2
+ Tầng 2: Phòng ngủ Master + 2 phòng ngủ + Phòng làm việc + WC
.png?125)
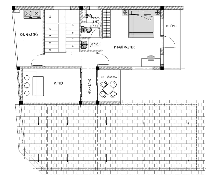
2.3. Tầng 3
+ Tầng 3: Phòng thờ + Phòng ngủ Master + Khu uống trà + Khu giặt sấy
.png?185)
