Khám phá ngôi nhà 3 tầng hiện đại, sang trọng - Chủ đầu tư: Anh Thắng, Hải Dương.
Mẫu nhà phố với mặt tiền 5m dưới đây được nhiều chủ đầu tư yêu thích nhờ sự đơn giản nhưng mang lại cảm giác tinh tế. Đặc biệt là ở cách phối màu sắc tương phản sáng và tối. Cùng với đó là kiến trúc hình khối chắc chắn, kết hợp cùng tiểu cảnh cây xanh đánh trực tiếp vào thị giác chính, qua đó thu hút bất kỳ ánh nhìn nào về phía ngôi nhà.
Các kiến trúc sư tại Việt Home đã lắng nghe ý kiến và ý tưởng của anh Thắng để tạo nên một không gian sống hiện đại và sang trọng.
1. Phối cảnh 3D mặt tiền
Chủ đầu tư: Anh Thắng
Kích Thước: 5x20m
Địa điểm xây dựng: Hải Dương.
Công năng sử dụng:
+ Tầng 1: Phòng Khách + Bếp Ăn + Phòng Ngủ Khép Kín + WC.
+ Tầng 2: 2 Phòng Ngủ Khép Kín.
+ Tầng 3: Phòng Thờ + Kho + Phòng Ngủ Khép Kín + Sân Chơi.

Thiết kế nhà phố 3 tầng mặt tiền 5m mái bằng vuông vức. Đây là kiểu mái khá được ưa chuộng vì sự đơn giản cũng như tiết kiệm chi phí đáng kể so với mái thái hay mái nhật. Kiểu dáng đơn giản với sự hạn chế về những họa tiết cầu kỳ giúp ngôi nhà thêm phần sang trọng. Phần ban công được thiết kế cùng phía, các cửa thi công là cửa kính nhôm. Thiết kế khỏe khoắn hiện đại ít chi tiết, kết hợp lam trang trí mặt tiền tạo nên diện mạo đơn giản nhưng không hề nhàm chán.
Giữa tone màu trung tính, hàng cây xanh được bố trí ở mỗi tầng trở nên nổi bật và mang đến cho căn nhà sức sống mới cũng như giúp cân bằng lại tổng thể mặt tiền.

Ngôi nhà được thiết kế hướng đến không gian mở sang trọng, thể hiện đẳng cấp của gia chủ thông qua việc sử dụng vật liệu kính cho cửa và ban công. Không gian bên ngoài được mở rộng mà không gặp bất kỳ rào cản nào. Đồng thời, có thể tận dụng nguồn sáng tự nhiên để có được tầm nhìn trực quan hơn. Qua khung kính, gia chủ có thể đưa mắt nhìn ra bên ngoài, cảm nhận được sự ồn ào và náo nhiệt bên ngoài phố thị.
Phối cảnh ngoại thất nổi bật với hình khối kiến trúc hiện đại, tập trung vào các đường nét thẳng, vuông góc điển hình được thiết kế cẩn thận. Không cần đến các chi tiết cầu kì nhưng vẫn đảm bảo sự tinh tế, nhằm tạo nên cảm giác chắc chắn, thể hiện sự vững chắc của tổ ấm gia đình.

2. Công năng sử dụng
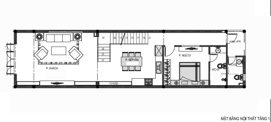
2.1. Tầng 1
+ Tầng 1: Phòng Khách + Bếp Ăn + Phòng Ngủ Khép Kín + WC.

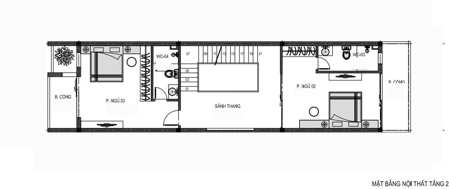
2.2. Tầng 2
+ Tầng 2: 2 Phòng Ngủ Khép Kín.

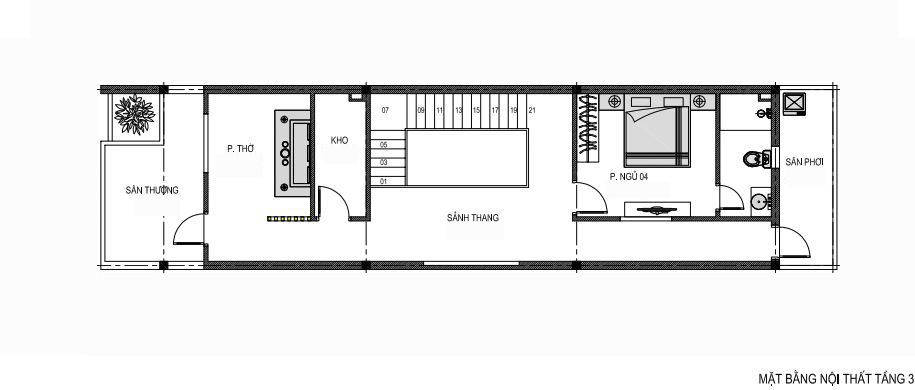
2.3. Tầng 3
+ Tầng 3: Phòng Thờ + Kho + Phòng Ngủ Khép Kín + Sân Chơi.

Nếu bạn thích mẫu nhà này đừng ngại để lại thông tin, Viet Home sẽ tư vấn cho bạn nhanh nhất!
