Khám phá mẫu nhà phố tân cổ điển 4 tầng 1 tum của chủ đầu tư anh Thuận tại Trần Cung, Hà Nội
1. Phối cảnh 3D mặt tiền
Chủ đầu tư: Anh Thuận
- Địa điểm xây dựng: Hà Nội
- Công năng sử dụng:
+ Tầng 1: Phòng khách + Bếp + WC
+ Tầng 2,3,4: 1 Phòng ngủ khép kín
+ Tầng tum: Phòng thờ + Sân phơi

Sở hữu phong cách tân cổ điển theo yêu cầu của anh Thuận. Việt Home đã thiết kế ngôi nhà với hình khối rõ ràng, chi tiết được tạo ra tối giản từ họa tiết tới màu sắc. Trong đó nhấn nhá với các phù điêu nhẹ nhàng, hệ cột giả 2 bên, hệ lan can sắt mỹ thuật và hệ cửa mái vòm làm cho mẫu nhà phố ấn tượng và nổi bật với các thiết kế xung quanh. Nhìn tổng thể có thể thấy mẫu nhà phố đẹp hiện lên với dáng vẻ khỏe khoắn mặc dù chiều cao nhà khá lớn. Các KTS của Việt Home đã khéo léo tạo ra các thiết kế đảm bảo hình khối cân xứng với chiều cao với những tính toán tỉ mỉ, kỹ càng về tính an toàn, chi phí xây dựng và tính thẩm mỹ công trình.
Cái nhìn đầu tiền về ngôi nhà của anh chị là tone màu trắng của phần sơn ngoại thất với sự kết hợp của các đường nét hoa văn trang trí cực kỳ tinh xảo, đẹp mắt và thu hút người nhìn. Những đường phào chỉ được thiết kế tinh tế khiến cho ngôi nhà thêm chắc chắn, vững chãi, nhưng vẫn rất thanh thoát.

Với diện tích mặt tiền nhỏ hẹp, toàn bộ mặt tiền mẫu nhà phố đẹp được sử dụng ô cửa kính thay thế cho các bức tường lớn. Hệ cửa vừa có tác dụng lấy sáng lại mang tới không gian mở mang đến hiệu ứng đẹp mắt, sự rộng rãi thoáng mát tới nội thất bên trong. Hệ cửa kính được sử dụng còn có tác dụng cản bụi tốt lại dễ vệ sinh được sử dụng rất nhiều hiện nay.
Điểm nhấn độc đáo ở tầng 1 là lớp gạch ốp gạch vàng nâu nhẹ, vừa mang đến cho ngôi nhà vẻ đẹp vô cùng sang trọng, đẩm bảo tính thẩm mỹ cao mà lại tiết kiệm chi phí. Hệ cửa đường và lan can các tang được sử dụng chất liệu sắt và bố trí thưa với tone màu đen sang trọng và quý phái, hài hòa với tone trắng của tổng thể ngôi nhà và màu vàng nâu của phần ốp gạch tầng 1, khiến người qua đường có thể ngắm nhìn được nội thất bên trong.
2. Công năng sử dụng
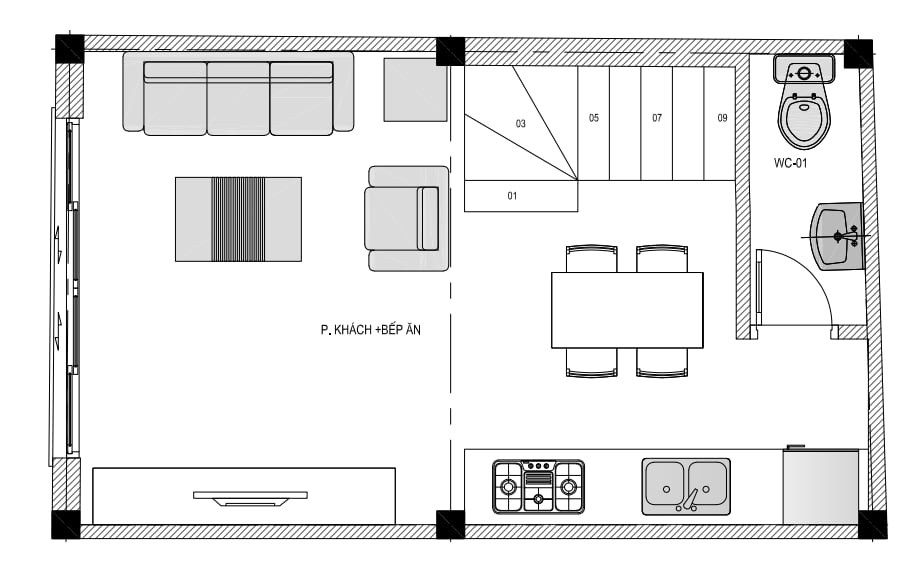
2.1. Tầng 1
+ Tầng 1: Phòng khách + Bếp + WC
.png?45)
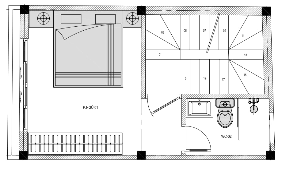
2.2. Tầng 2
+ Tầng 2,3,4: 1 Phòng ngủ khép kín

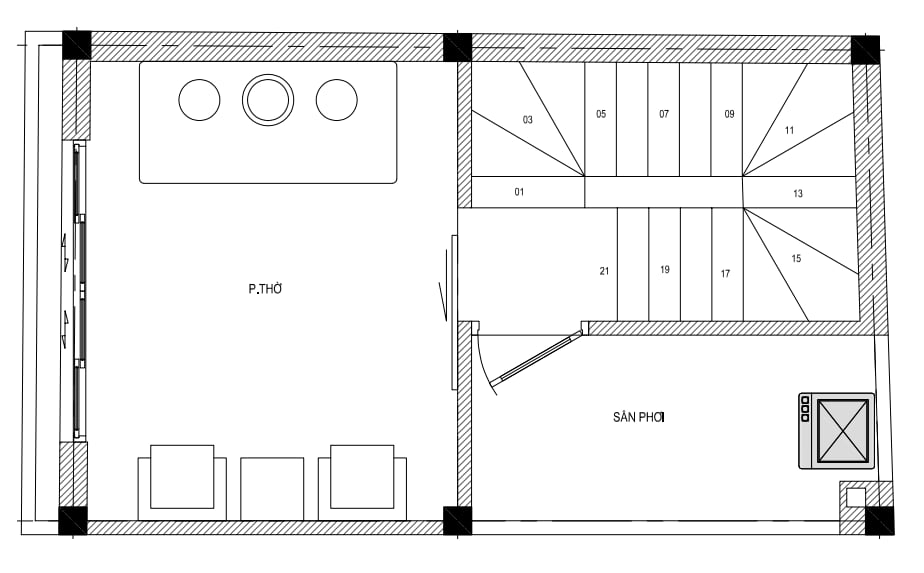
2.3. Tầng 3
+ Tầng tum: Phòng thờ + Sân phơi

