Khám phá mẫu nhà phố 3 tầng 4 phòng ngủ đẹp mắt - Chủ đầu tư: Anh Ngọc, Thanh Hóa
1. Phối cảnh 3D mặt tiền
Chủ đầu tư: Anh Ngọc
- Địa điểm xây dựng: Thanh Hóa
- Công năng sử dụng:
+ Tầng 1: Phòng khách + Bếp + 1 Phòng ngủ + WC
+ Tầng 2: 3 Phòng ngủ + WC
+ Tầng 3: Phòng thờ + Sân phơi
.jpg?225)
Ngôi nhà 3 tầng mái bằng hiện đại trong hình khoác lên mình diện mạo sang trọng, tinh tế và đầy ấn tượng. Nổi bật nhất là thiết kế bo góc mềm mại, vừa tạo sự uyển chuyển, vừa phá vỡ cảm giác khô cứng thường thấy ở phong cách hiện đại. Bên cạnh đó, sự kết hợp hài hòa giữa các mảng tường ốp đá giả gỗ ấm áp và gạch thẻ sáng màu trẻ trung đã mang đến hiệu ứng thị giác độc đáo, giúp công trình trở nên cuốn hút và khác biệt giữa không gian xung quanh.

Ngôi nhà được thiết kế với gam màu trắng làm chủ đạo, mang lại cảm giác tinh khôi và trang nhã. Điểm nhấn được tạo nên từ những chi tiết màu nâu và đen, giúp tổng thể trở nên hài hòa nhưng vẫn tạo nên sự tương phản rõ nét. Sự kết hợp khéo léo này không chỉ tôn lên vẻ đẹp hiện đại, tinh tế mà còn đem đến sức hút riêng biệt, làm nổi bật kiến trúc sang trọng và cuốn hút ngay từ cái nhìn đầu tiên.
2. Công năng sử dụng
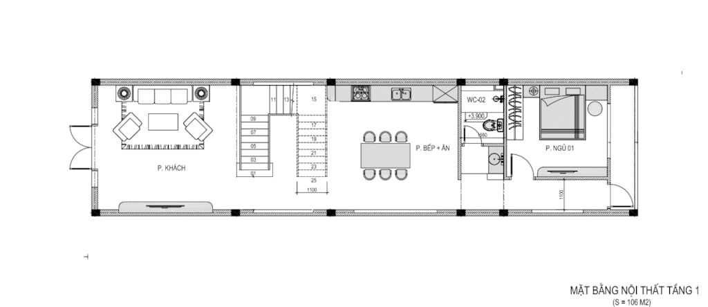
2.1. Tầng 1
Phòng khách + Bếp + 1 Phòng ngủ + WC
.png?556)
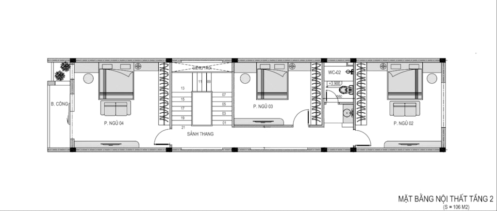
2.2. Tầng 2
3 Phòng ngủ + WC
.png?534)
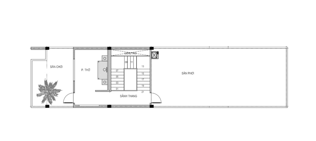
2.3. Tầng 3
Phòng thờ + Sân phơi
.png?558)
